レジディア門前仲町プレイス 8階/東京都江東区佐賀1丁目(門前仲町駅)の賃貸物件詳細
-
空室状況を
聞いてみる -
電話でお問合せ
03-5641-5535
- お部屋の状況を確認する(無料)
-
電話でお問合せ
03-5641-5535
保証金 --/--
償却 1ヶ月/--
半蔵門線 / 水天宮前駅 徒歩10分
京葉線 / 越中島駅 徒歩18分
日比谷線 / 茅場町駅 徒歩10分
- ★★★タウンハウジング東京の取り扱い物件★★★
女性におすすめのポイント レジディア門前仲町プレイス 8階/東京都江東区佐賀1丁目
このお部屋は、都営大江戸線門前仲町駅から徒歩9分に位置するマンションです。また、門前仲町駅や、水天宮前駅などの複数駅が利用できるのでアクセスも便利です!
このお部屋はお風呂とトイレが別なので、それぞれ清潔&おしゃれにこだわることができます。また2階以上にあるお部屋で、路面から室内が見られないので女性の一人暮らしでも少し安心。
この建物はオートロックがあるので基本的には住人以外は入れないので安心ですね!
嬉しいのがこのお部屋はネットの料金が無料なところ。動画なども見放題ですね!
スーパーやコンビニが徒歩分圏内に5件あるので一人暮らしに便利。最も近いのは徒歩4分の所にある、ローソン永代橋店!
もっと見る ▼
-
即入居 -
女子割 -
バス・
トイレ別 -
独立
洗面台 -
オートロック -
2階以上 -
システム
キッチン -
コンロ
二口 -
クロー
ゼット -
室内洗濯
機置き場
この物件に無料でお問合せ お問合せ内容を選択してね!
-
電話でお問合せ
03-5641-5535 -
株式会社タウンハウジング東京
人形町店
基本物件情報 レジディア門前仲町プレイス 8階/東京都江東区佐賀1丁目
- 家賃/管理費
- 14.5万円/10,000円
- 敷金(保証金)/ 礼金(償却)
- --(--)/1ヶ月(--)
- 初期費用が気になる方は
お気軽にお問合せください! -
初期費用を株式会社タウンハウジング東京人形町店に聞いてみる!
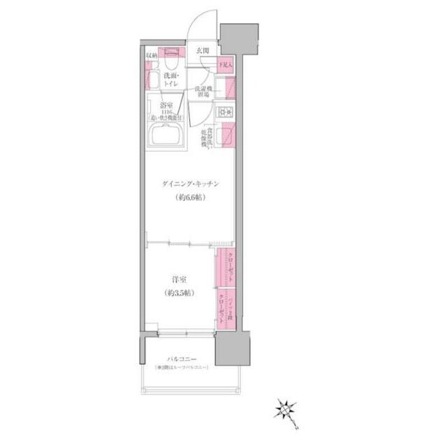
- 間取り/面積
-
1DK
/25.23㎡
- 築年
- 2020年02月(築5年)
- 交通
-
都営大江戸線 / 門前仲町駅 徒歩9分
半蔵門線 / 水天宮前駅 徒歩10分
京葉線 / 越中島駅 徒歩18分
日比谷線 / 茅場町駅 徒歩10分
- 所在地
-
東京都 江東区 佐賀 1丁目
地図・周辺情報を見る
- 階数/方位
- 8階(12階建て)
/北東向き
- 空室数
- 同じ建物に空室があと10件あります
空室を見る
- 種別/構造
- マンション/鉄筋コンクリート造
-
電話でお問合せ
03-5641-5535
こだわり設備・特徴 レジディア門前仲町プレイス 8階/東京都江東区佐賀1丁目
- 入居時期・条件
-
応相談※詳細はお問い合わせください
/
保証人不要
/
二人入居可
/
独身可
- 周辺環境
- 駅まで平坦 / 3沿線利用可 / 閑静な住宅地 / 3駅利用可
- 収納
- 玄関収納 / シューズボックス1ヵ所 / クローゼット2ヵ所
- 放送・通信
-
※BS受信可
/
インターネット接続(月額利用料無料)
/
※CS受信可
/
光ファイバー
/
マルチメディアコンセント
/
ネット専用回線
※インターネット接続環境、BS受信可、CATV、CS受信可について…利用料金は、共益費に含まれるタイプや個別に契約するタイプなど物件により異なります。詳しくは、物件お取り扱い不動産会社にお問合せください。
- その他設備・サービス
- 給湯 / 24時間ゴミ出し可 / 室内洗濯機置場 / 冷房 / 玄関ホール / 通風良好 / 都市ガス / バルコニー / エレベーター1基 / 追い焚き機能 / 公営上水道 / エアコン1台 / 24時間換気システム / 敷地内ごみ置き場 / 全居室フローリング
- 建物タイプ・デザイン
- 外壁タイル張り
- 駐輪・駐車
- 自転車置き場
- 家賃保証会社など
- 保証会社必加入(その他:0.4ヶ月)※初回契約時:40%、更新時:10,000円、月額:1,000円
- 保険
- 損害保険加入要。
- 備考
- ★東京都を中心に関東人気エリアの賃貸マンション・アパート情報が豊富★★お部屋探しは首都圏に強いタウンハウジングにお任せください★~オンライン内見・相談も対応可能です~★
- その他諸費用
- その他費用(鍵交換:49500円) / その他費用(入居者限定会員サービス:11000円)
- 契約期間
- 一般契約:2年0ヶ月間
- 更新料
- 1ヶ月
- 取引形態
- 一般媒介
- 物件管理コード
- C01009086-000000513236976-0001
- 情報更新日
- 2025/12/14
- 次回更新予定日
- 2026/01/06
この物件に無料でお問合せ お問合せ内容を選択してね!
-
電話でお問合せ
03-5641-5535 -
株式会社タウンハウジング東京
人形町店
-
電話でお問合せ
03-5641-5535
周辺情報 レジディア門前仲町プレイス 8階/東京都江東区佐賀1丁目
- 電気量販店/ホームセンター
- 電気量販店/ホームセンター(ホームセンターコーナン江東深川店)まで 884m
- ドラッグストア
- ドラッグストア(くすりの福太郎門前仲町店)まで 789m
- ドラッグストア
- ドラッグストア(ドラッグストアスマイル門前仲町店)まで 721m
- コンビニ
- コンビニ(セブンイレブン江東永代2丁目店)まで 351m
- コンビニ
- コンビニ(ローソン永代橋店)まで 296m
- スーパー
- スーパー(まいばすけっと)まで 1052m
- スーパー
- スーパー(アブアブ赤札堂深川店)まで 803m
- スーパー
- スーパー(マルエツプチ新川一丁目店)まで 674m
- 郵便局
- 郵便局(江東永代郵便局)まで 98m
物件についてお問合せ レジディア門前仲町プレイス 8階/東京都江東区佐賀1丁目
【掲載物件情報について】
Woman.CHINTAIでは安心してお部屋探しのできるサイトを目指して、物件情報の精度向上に努めております。Woman.CHINTAIに掲載されている物件情報について万が一相違がございましたら、以下のページからご連絡ください
お問い合わせページ同じ建物の空室情報一覧 レジディア門前仲町プレイス 8階/東京都江東区佐賀1丁目
-
- 3階 308号室
- 家賃
-
13.4
万円
(管理費等 15,000円)
- 管理費
- 15,000円
- 敷金/保証金
- --/--
- 礼金/償却
- --/--
- 間取り
- 1DK
- 専有面積
- 25.23㎡
- その他
- 北東向き
-
- 3階 308号室
- 家賃
-
13.4
万円
(管理費等 15,000円)
- 管理費
- 15,000円
- 敷金/保証金
- --/--
- 礼金/償却
- --/--
- 間取り
- 1DK
- 専有面積
- 25.23㎡
- その他
- 北東向き
-
- 3階 308号室
- 家賃
-
13.4
万円
(管理費等 15,000円)
- 管理費
- 15,000円
- 敷金/保証金
- --/--
- 礼金/償却
- --/--
- 間取り
- 1DK
- 専有面積
- 25.23㎡
- その他
- 北東向き
取扱い店舗 レジディア門前仲町プレイス 8階/東京都江東区佐賀1丁目
-
株式会社タウンハウジング東京 人形町店
お問合せ番号:R00513-236976
国土交通大臣免許(1)第009926号- 東京都中央区日本橋人形町1丁目 16-6 ルースタワー 1階
- 日比谷線 /人形町駅
選択した物件をまとめて
建物ごとに探す
レジディア門前仲町プレイス 8階と同じ最寄り駅にある物件
レジディア門前仲町プレイス 8階と同じエリアにある物件
設備・条件から江東区の物件を再検索
設備・条件から門前仲町駅の物件を再検索
設備・条件から水天宮前駅の物件を再検索
設備・条件から越中島駅の物件を再検索
設備・条件から茅場町駅の物件を再検索
































一人暮らしの女性に嬉しいポイントはこちら!