アルテシモシェルト(ARTESSIMO SCELTO) 5階/東京都江東区深川1丁目(清澄白河駅)の賃貸物件詳細
-
空室状況を
聞いてみる -
電話でお問合せ
03-6228-4882
- お部屋の状況を確認する(無料)
-
電話でお問合せ
03-6228-4882
保証金 --/--
償却 1ヶ月/--
都営大江戸線 / 門前仲町駅 徒歩6分
半蔵門線 / 清澄白河駅 徒歩8分
京葉線 / 越中島駅 徒歩16分
- ペット相談可 インターネット使用料無料 敷金0ヶ月 設備充実 オートロック
女性におすすめのポイント アルテシモシェルト(ARTESSIMO SCELTO) 5階/東京都江東区深川1丁目
このお部屋は、都営大江戸線清澄白河駅から徒歩8分に位置するマンションです。また、清澄白河駅や、門前仲町駅などの複数駅が利用できるのでアクセスも便利です!
このお部屋はお風呂とトイレが別なので、それぞれ清潔&おしゃれにこだわることができます。また2階以上にあるお部屋で、路面から室内が見られないので女性の一人暮らしでも少し安心。
この建物はオートロックがあるので基本的には住人以外は入れないので安心ですね!
嬉しいのがこのお部屋はネットの料金が無料なところ。動画なども見放題ですね!
スーパーやコンビニが徒歩分圏内に2件あるので一人暮らしに便利。最も近いのは徒歩4分の所にある、食品館あおば深川店!
もっと見る ▼
-
即入居 -
女子割 -
バス・
トイレ別 -
独立
洗面台 -
オートロック -
2階以上 -
システム
キッチン -
コンロ
二口 -
クロー
ゼット -
室内洗濯
機置き場
この物件に無料でお問合せ お問合せ内容を選択してね!
-
電話でお問合せ
03-6228-4882 -
スタートライン
パークサイド木場店
営業時間:10:00 - 19:00
基本物件情報 アルテシモシェルト(ARTESSIMO SCELTO) 5階/東京都江東区深川1丁目
- 家賃/管理費
- 12.5万円/10,000円
- 敷金(保証金)/ 礼金(償却)
- --(--)/1ヶ月(--)
- 初期費用が気になる方は
お気軽にお問合せください! -
初期費用をスタートラインパークサイド木場店に聞いてみる!
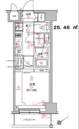
- 間取り/面積
-
1K
/25.46㎡
- 築年
- 2016年11月(築9年)
- 交通
-
都営大江戸線 / 清澄白河駅 徒歩8分
都営大江戸線 / 門前仲町駅 徒歩6分
半蔵門線 / 清澄白河駅 徒歩8分
京葉線 / 越中島駅 徒歩16分
- 所在地
-
東京都 江東区 深川 1丁目
地図・周辺情報を見る
- 階数/方位
- 5階(11階建て)
/南東向き
- 空室数
- 同じ建物に空室があと1件あります
空室を見る
- 種別/構造
- マンション/鉄筋コンクリート造
-
電話でお問合せ
03-6228-4882
こだわり設備・特徴 アルテシモシェルト(ARTESSIMO SCELTO) 5階/東京都江東区深川1丁目
- 入居時期・条件
-
空予定(2025年12月中旬)
/
保証人不要
/
ペット相談可
/
二人入居可
- 周辺環境
- 2沿線利用可 / 3駅利用可
- 収納
- 全居室収納 / シューズボックス1ヵ所 / クローゼット1ヵ所
- 放送・通信
-
※BS受信可
/
インターネット接続(月額利用料無料)
/
※CS受信可
/
光ファイバー
/
※CATV
※インターネット接続環境、BS受信可、CATV、CS受信可について…利用料金は、共益費に含まれるタイプや個別に契約するタイプなど物件により異なります。詳しくは、物件お取り扱い不動産会社にお問合せください。
- その他設備・サービス
- 給湯 / 24時間ゴミ出し可 / 室内洗濯機置場 / 冷房 / 都市ガス / バルコニー / エレベーター1基 / 追い焚き機能 / 公営上水道 / 照明1台 / エアコン1台 / 24時間換気システム / 全居室フローリング / Pタイル
- 建物タイプ・デザイン
- 外壁タイル張り
- 駐輪・駐車
- 自転車置き場
- 家賃保証会社など
- 保証会社必加入(その他:実費)※初回保証料50%(月額保証料総賃料1%)※外国籍プラン:初回保証料100%
- 保険
- 損害保険加入要。
- 備考
- 短期解約違約金あり:1年未満解約時、賃料1ヶ月分
- その他諸費用
- その他費用(鍵交換:25000円) / その他費用(室内清掃費用:70000円) / その他費用(事務手数料:10000円) / その他費用(24時間緊急駆けつけ対応:20000円)
- 契約期間
- 一般契約:2年0ヶ月間
- 更新料
- 1ヶ月
- 取引形態
- 一般媒介
- 物件管理コード
- C01010503-000002127017700-0001
- 情報更新日
- 2025/12/13
- 次回更新予定日
- 2026/01/05
この物件に無料でお問合せ お問合せ内容を選択してね!
-
電話でお問合せ
03-6228-4882 -
スタートライン
パークサイド木場店
営業時間:10:00 - 19:00
-
電話でお問合せ
03-6228-4882
物件についてお問合せ アルテシモシェルト(ARTESSIMO SCELTO) 5階/東京都江東区深川1丁目
【掲載物件情報について】
Woman.CHINTAIでは安心してお部屋探しのできるサイトを目指して、物件情報の精度向上に努めております。Woman.CHINTAIに掲載されている物件情報について万が一相違がございましたら、以下のページからご連絡ください
お問い合わせページ同じ建物の空室情報一覧 アルテシモシェルト(ARTESSIMO SCELTO) 5階/東京都江東区深川1丁目
取扱い店舗 アルテシモシェルト(ARTESSIMO SCELTO) 5階/東京都江東区深川1丁目
-
スタートライン パークサイド木場店
お問合せ番号:R02127-017700
東京都知事免許(6)第076891号- 東京都江東区木場2-19-14 山加ビル1階
- 東西線 /木場駅
- 営業時間:10:00 - 19:00
- 定休日:毎週水曜日
選択した物件をまとめて
建物ごとに探す
アルテシモシェルト(ARTESSIMO SCELTO) 5階と同じ最寄り駅にある物件
アルテシモシェルト(ARTESSIMO SCELTO) 5階と同じエリアにある物件
設備・条件から江東区の物件を再検索
設備・条件から清澄白河駅の物件を再検索
設備・条件から門前仲町駅の物件を再検索



























一人暮らしの女性に嬉しいポイントはこちら!