エステムコート東京八王子 4階/東京都八王子市横山町(八王子駅)の賃貸物件詳細
- 新着
-
空室状況を
聞いてみる -
電話でお問合せ
042-339-0700
- お部屋の状況を確認する(無料)
-
電話でお問合せ
042-339-0700
保証金 77,630円/--
償却 77,630円/--
京王線・京王新線 / 京王八王子駅 徒歩10分
中央線 / 西八王子駅 徒歩29分
- ~お電話でのお問い合わせで、より迅速にご対応させて頂きます~地域密着タウンハウジングまで~
女性におすすめのポイント エステムコート東京八王子 4階/東京都八王子市横山町
このお部屋は、中央線八王子駅から徒歩8分に位置するマンションです。また、八王子駅や、京王八王子駅などの複数駅が利用できるのでアクセスも便利です!
このお部屋はお風呂とトイレが別なので、それぞれ清潔&おしゃれにこだわることができます。また2階以上にあるお部屋で、路面から室内が見られないので女性の一人暮らしでも少し安心。
この建物はオートロックがあるので基本的には住人以外は入れないので安心ですね!
嬉しいのがこのお部屋はネットの料金が無料なところ。動画なども見放題ですね!
スーパーやコンビニが徒歩分圏内に3件あるので一人暮らしに便利。最も近いのは徒歩2分の所にある、セブンイレブン八王子八日町店!
もっと見る ▼
-
即入居 -
女子割 -
バス・
トイレ別 -
独立
洗面台 -
オートロック -
2階以上 -
システム
キッチン -
コンロ
二口 -
クロー
ゼット -
室内洗濯
機置き場
この物件に無料でお問合せ お問合せ内容を選択してね!
-
電話でお問合せ
042-339-0700 -
株式会社タウンハウジング東京
聖蹟桜ヶ丘店
営業時間:10:00~19:00
基本物件情報 エステムコート東京八王子 4階/東京都八王子市横山町
- 家賃/管理費
- 7.763万円/10,370円
- 敷金(保証金)/ 礼金(償却)
- 77,630円(--)/77,630円(--)
- 初期費用が気になる方は
お気軽にお問合せください! -
初期費用を株式会社タウンハウジング東京聖蹟桜ヶ丘店に聞いてみる!
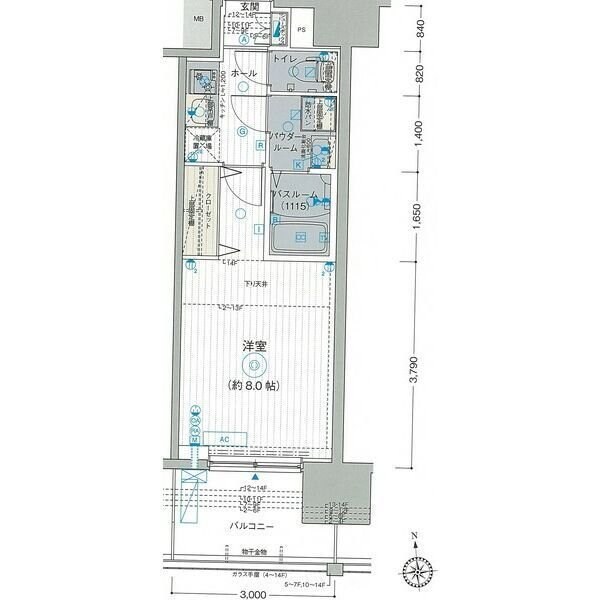
- 間取り/面積
-
1K
/25.5㎡
- 築年
- 2019年12月(築6年)
- 交通
-
中央線 / 八王子駅 徒歩8分
京王線・京王新線 / 京王八王子駅 徒歩10分
中央線 / 西八王子駅 徒歩29分
- 所在地
-
東京都 八王子市 横山町
地図・周辺情報を見る
- 階数/方位
- 4階(15階建て)
/南向き
- 空室数
- 同じ建物に空室があと10件あります
空室を見る
- 種別/構造
- マンション/鉄筋コンクリート造
-
電話でお問合せ
042-339-0700
こだわり設備・特徴 エステムコート東京八王子 4階/東京都八王子市横山町
- 入居時期・条件
-
空予定(2026年01月下旬)
/
保証人不要
/
ペット相談可
/
二人入居可
/
独身可
- バス・トイレ
- オートバス / 洗面所にドア / 洗面所独立 / 洗面台 / 洗面化粧台 / 暖房便座 / バス・トイレ別 / 脱衣所 / 温水洗浄便座 / シャワー / 浴室テレビ / シャワー付洗面化粧台 / 浴室乾燥機
- キッチン
- システムキッチン / ガスコンロ設置可 / コンロ2口以上
- セキュリティ
- オートロック / 防犯カメラ / 宅配ボックス / セキュリティー会社加入済 / ダブルロックキー / TVモニターフォン / インターホン
- 周辺環境
- 平坦地 / 駅まで平坦 / 駅前 / 3沿線利用可
- 収納
- シューズボックス1ヵ所 / クローゼット1ヵ所
- 位置
- 南向き / 全室南向き
- 放送・通信
-
※BS受信可
/
インターネット接続(月額利用料無料)
/
※CS受信可
/
※CATV
/
ネット専用回線
※インターネット接続環境、BS受信可、CATV、CS受信可について…利用料金は、共益費に含まれるタイプや個別に契約するタイプなど物件により異なります。詳しくは、物件お取り扱い不動産会社にお問合せください。
- その他設備・サービス
- 給湯 / 24時間ゴミ出し可 / 室内洗濯機置場 / 冷蔵庫付 / フローリング / 眺望良好 / 都市ガス / 陽当り良好 / バルコニー / エレベーター1基 / 追い焚き機能 / 南面バルコニー / 公営上水道 / 照明1台 / 家具・家電付き ※家電のみ / エアコン1台 / 24時間換気システム / 敷地内ごみ置き場 / 人感照明センサー
- 建物タイプ・デザイン
- 外壁タイル張り / 分譲賃貸
- 駐輪・駐車
- 自転車置き場 / バイク置場
- 家賃保証会社など
- 保証会社必加入(その他:実費)※初回:月額総賃料の50% 月額:月額総賃料の1.5%
- 保険
- 損害保険加入要。
- 備考
- ★いい部屋見つかる!お部屋探しはタウンハウジングまで♪★初期費用分割クレジット決済可・賃料交渉入居日交渉等、諸条件なんでもご相談ください★
- その他諸費用
- その他費用(鍵交換:35000円) / その他費用(室内清掃費用:13200円) / その他費用(安心クラブ:5500円) / その他費用(安心クラブ月会費:990円)
- 契約期間
- 一般契約:2年0ヶ月間
- 更新料
- 1ヶ月
- 取引形態
- 一般媒介
- 物件管理コード
- C01008885-000001087148578-0001
- 情報更新日
- 2025/12/02
- 次回更新予定日
- 2025/12/16
この物件に無料でお問合せ お問合せ内容を選択してね!
-
電話でお問合せ
042-339-0700 -
株式会社タウンハウジング東京
聖蹟桜ヶ丘店
営業時間:10:00~19:00
-
電話でお問合せ
042-339-0700
周辺情報 エステムコート東京八王子 4階/東京都八王子市横山町
- ショッピングセンター/アウトレットモール
- ショッピングセンター/アウトレットモール(ドン・キホーテ八王子駅前店)まで 427m
- ショッピングセンター/アウトレットモール
- ショッピングセンター/アウトレットモール(イオンフードスタイル八王子店)まで 796m
- スーパー
- スーパー(エコス大横店)まで 596m
- コンビニ
- コンビニ(セブンイレブン八王子八日町店)まで 146m
- コンビニ
- コンビニ(ローソンストア100八王子本町店)まで 302m
- ドラッグストア
- ドラッグストア(マツモトキヨシ八王子店)まで 474m
- 電気量販店/ホームセンター
- 電気量販店/ホームセンター(ヨドバシカメラ八王子店)まで 653m
- 郵便局
- 郵便局(八王子寺町郵便局)まで 217m
物件についてお問合せ エステムコート東京八王子 4階/東京都八王子市横山町
【掲載物件情報について】
Woman.CHINTAIでは安心してお部屋探しのできるサイトを目指して、物件情報の精度向上に努めております。Woman.CHINTAIに掲載されている物件情報について万が一相違がございましたら、以下のページからご連絡ください
お問い合わせページ同じ建物の空室情報一覧 エステムコート東京八王子 4階/東京都八王子市横山町
-
- 2階 201号室
- 家賃
-
8.456
万円
(管理費等 10,440円)
- 管理費
- 10,440円
- 敷金/保証金
- 84,560円/--
- 礼金/償却
- 84,560円/--
- 間取り
- 1DK
- 専有面積
- 25.67㎡
- その他
- 南向き
-
- 2階 201号室
- 家賃
-
8.456
万円
(管理費等 10,440円)
- 管理費
- 10,440円
- 敷金/保証金
- 84,560円/--
- 礼金/償却
- 84,560円/--
- 間取り
- 1DK
- 専有面積
- 25.67㎡
- その他
- 南向き
-
- 2階 201号室
- 家賃
-
8.456
万円
(管理費等 10,440円)
- 管理費
- 10,440円
- 敷金/保証金
- 84,560円/--
- 礼金/償却
- 84,560円/--
- 間取り
- 1DK
- 専有面積
- 25.67㎡
- その他
- 南向き
取扱い店舗 エステムコート東京八王子 4階/東京都八王子市横山町
-
株式会社タウンハウジング東京 聖蹟桜ヶ丘店
お問合せ番号:R01087-148578
国土交通大臣免許(1)第9926号- 東京都多摩市一ノ宮2丁目 11-22
- 京王線・京王新線 /聖蹟桜ヶ丘駅
- 営業時間:10:00~19:00
- 定休日:水曜日
メールでお問合せする 電話でお問合せ
042-339-0700
選択した物件をまとめて
建物ごとに探す
エステムコート東京八王子 4階と同じ最寄り駅にある物件
エステムコート東京八王子 4階と同じエリアにある物件
設備・条件から八王子市の物件を再検索
設備・条件から八王子駅の物件を再検索
設備・条件から京王八王子駅の物件を再検索



































一人暮らしの女性に嬉しいポイントはこちら!