パークアクシス駒込 9階/東京都豊島区駒込3丁目(駒込駅)の賃貸物件詳細
- 新着
-
空室状況を
聞いてみる -
電話でお問合せ
03-5395-0651
- お部屋の状況を確認する(無料)
-
電話でお問合せ
03-5395-0651
保証金 1ヶ月/--
償却 1ヶ月/--
山手線 / 巣鴨駅 徒歩12分
南北線 / 西ケ原駅 徒歩15分
京浜東北線・根岸線 / 上中里駅 徒歩13分
- 初期費用の一部クレジットカード決済可!IT重説もできます、ご相談ください。オンライン内見相談可能!お電話ください。【03-5395-0651】
女性におすすめのポイント パークアクシス駒込 9階/東京都豊島区駒込3丁目
このお部屋は、山手線駒込駅から徒歩5分に位置する駅近のマンションです。また、駒込駅や、巣鴨駅などの複数駅が利用できるのでアクセスも便利です!
このお部屋はお風呂とトイレが別なので、それぞれ清潔&おしゃれにこだわることができます。また2階以上にあるお部屋で、路面から室内が見られないので女性の一人暮らしでも少し安心。
この建物はオートロックがあるので基本的には住人以外は入れないので安心ですね!
スーパーやコンビニが徒歩分圏内に3件あるので一人暮らしに便利。最も近いのは徒歩1分の所にある、ファミリーマート駒込本郷通り店!
もっと見る ▼
-
即入居 -
女子割 -
バス・
トイレ別 -
独立
洗面台 -
オートロック -
2階以上 -
システム
キッチン -
コンロ
二口 -
クロー
ゼット -
室内洗濯
機置き場
この物件に無料でお問合せ お問合せ内容を選択してね!
-
電話でお問合せ
03-5395-0651 -
株式会社タウンハウジング東京
巣鴨店
営業時間:10:00~19:00
基本物件情報 パークアクシス駒込 9階/東京都豊島区駒込3丁目
- 家賃/管理費
- 25.1万円/10,000円
- 敷金(保証金)/ 礼金(償却)
- 1ヶ月(--)/1ヶ月(--)
- 初期費用が気になる方は
お気軽にお問合せください! -
初期費用を株式会社タウンハウジング東京巣鴨店に聞いてみる!
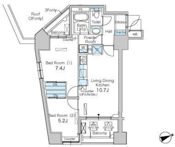
- 間取り/面積
-
2DK/52.59㎡
- 築年
- 2009年11月(築16年)
- 交通
-
山手線 / 駒込駅 徒歩5分
山手線 / 巣鴨駅 徒歩12分
南北線 / 西ケ原駅 徒歩15分
京浜東北線・根岸線 / 上中里駅 徒歩13分
- 所在地
-
東京都 豊島区 駒込 3丁目
地図・周辺情報を見る
- 階数/方位
- 9階(15階建て)
/東向き
- 空室数
- 同じ建物に空室があと10件あります
空室を見る
- 種別/構造
- マンション/鉄筋コンクリート造
-
電話でお問合せ
03-5395-0651
こだわり設備・特徴 パークアクシス駒込 9階/東京都豊島区駒込3丁目
- 入居時期・条件
-
空予定(2026年01月下旬)
/
保証人不要
/
ペット相談可
(飼育の場合:敷金1ヶ月増)
/
楽器相談可
- キッチン
- グリル付 / システムキッチン / コンロ3口 / オープンキッチン
- セキュリティ
- オートロック / 防犯カメラ / 宅配ボックス / TVモニターフォン / インターホン
- 周辺環境
- 閑静な住宅地
- 収納
- 玄関収納 / シューズボックス1ヵ所 / クローゼット1ヵ所
- 位置
- 角部屋
- 放送・通信
-
※BS受信可
/
※CS受信可
/
※CATV
/
CATVインターネット
※インターネット接続環境、BS受信可、CATV、CS受信可について…利用料金は、共益費に含まれるタイプや個別に契約するタイプなど物件により異なります。詳しくは、物件お取り扱い不動産会社にお問合せください。
- その他設備・サービス
- 給湯 / 24時間ゴミ出し可 / 室内洗濯機置場 / 通風良好 / 眺望良好 / 都市ガス / 陽当り良好 / バルコニー / エレベーター1基 / 追い焚き機能 / 東南角住戸 / 2面採光 / エアコン1台 / 敷地内ごみ置き場 / 全居室フローリング
- 建物タイプ・デザイン
- 外壁タイル張り
- 家賃保証会社など
- 保証会社必加入(その他:0.5ヶ月)※初回総賃料のの50%、2年目以降1年毎に9,600円必要です。
- 保険
- 損害保険加入要。
- 備考
- お部屋探しはタウンハウジングへ!短期解約違約金あり。
- その他諸費用
- 敷金積み増し(ペット飼育:1ヶ月) / その他費用(鍵交換:16500円) / その他費用(室内清掃費用:98343円)
- 契約期間
- 一般契約:2年0ヶ月間
- 更新料
- 1ヶ月
- 取引形態
- 一般媒介
- 物件管理コード
- C01008680-000000465087856-0001
- 情報更新日
- 2025/12/16
- 次回更新予定日
- 2026/01/08
この物件に無料でお問合せ お問合せ内容を選択してね!
-
電話でお問合せ
03-5395-0651 -
株式会社タウンハウジング東京
巣鴨店
営業時間:10:00~19:00
-
電話でお問合せ
03-5395-0651
物件についてお問合せ パークアクシス駒込 9階/東京都豊島区駒込3丁目
【掲載物件情報について】
Woman.CHINTAIでは安心してお部屋探しのできるサイトを目指して、物件情報の精度向上に努めております。Woman.CHINTAIに掲載されている物件情報について万が一相違がございましたら、以下のページからご連絡ください
お問い合わせページ同じ建物の空室情報一覧 パークアクシス駒込 9階/東京都豊島区駒込3丁目
-
- 3階 303号室
- 家賃
-
24.9
万円
(管理費等 10,000円)
- 管理費
- 10,000円
- 敷金/保証金
- 24.9万/--
- 礼金/償却
- 24.9万/--
- 間取り
- 2LDK
- 専有面積
- 52.62㎡
- その他
- 東向き
-
- 3階 303号室
- 家賃
-
24.9
万円
(管理費等 10,000円)
- 管理費
- 10,000円
- 敷金/保証金
- 1ヶ月/--
- 礼金/償却
- 1ヶ月/--
- 間取り
- 2LDK
- 専有面積
- 52.62㎡
- その他
- 東向き
-
- 3階 303号室
- 家賃
-
24.9
万円
(管理費等 10,000円)
- 管理費
- 10,000円
- 敷金/保証金
- 1ヶ月/--
- 礼金/償却
- 1ヶ月/--
- 間取り
- 2LDK
- 専有面積
- 52.62㎡
- その他
- 東向き
取扱い店舗 パークアクシス駒込 9階/東京都豊島区駒込3丁目
-
株式会社タウンハウジング東京 巣鴨店
お問合せ番号:R00465-087856
国土交通大臣免許(1)第9926号- 東京都豊島区巣鴨1-18-9 石川ビル2階
- 山手線 /巣鴨駅
- 営業時間:10:00~19:00
- 定休日:水曜日
選択した物件をまとめて
建物ごとに探す
パークアクシス駒込 9階と同じ最寄り駅にある物件
パークアクシス駒込 9階と同じエリアにある物件
設備・条件から豊島区の物件を再検索
設備・条件から駒込駅の物件を再検索
設備・条件から巣鴨駅の物件を再検索
設備・条件から西ケ原駅の物件を再検索
設備・条件から上中里駅の物件を再検索



























一人暮らしの女性に嬉しいポイントはこちら!