ウェルスクエア中目黒II 3階/東京都目黒区上目黒3丁目の建物情報
最終更新日:2026年05月14日
最終更新日:2026年05月14日
空室情報
家賃相場
- 万円
- 更新日時
- 住所
- 東京都目黒区上目黒3丁目
- 交通
-
山手線 / 恵比寿駅 徒歩22分日比谷線 / 恵比寿駅 徒歩20分京王井の頭線 / 神泉駅 徒歩21分東急東横線 / 代官山駅 徒歩15分東急東横線 / 中目黒駅 徒歩8分日比谷線 / 中目黒駅 徒歩8分東急東横線 / 祐天寺駅 徒歩14分東急田園都市線 / 池尻大橋駅 徒歩17分
- 築年
- 2025年07月(1年未満)
- 種別/構造
- マンション/鉄筋コンクリート造
- 階建
- 3階建
- 駐車場
- 駐車場あり
- 参考賃料
- 21万円~22.5万円(管理費等:10,000円)
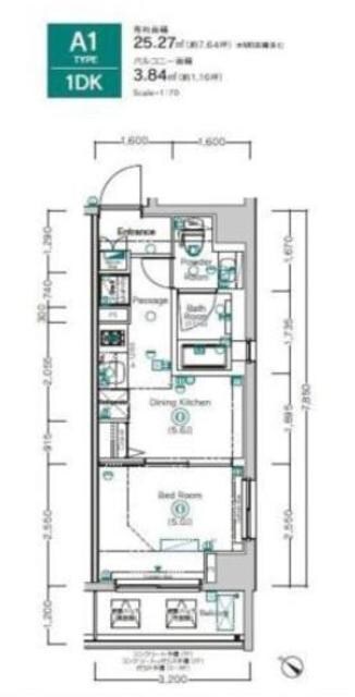
- 参考間取り
- 1LDK
- 参考平米数
- 31.8㎡
過去から現在までにWoman.CHINTAIに掲載のあった物件情報を元に作成した参考ページです。
間取りや掲載時期によって部屋の状況は異なり、全ての部屋と一致するものではございません。
建物設備や周辺環境
このお部屋は、山手線恵比寿(東京)駅から徒歩22分に位置するマンションです。また、恵比寿(東京)駅や、神泉駅などの複数駅が利用できるのでアクセスも便利です!
また、この建物はオートロックがあるので防犯面を重視する女性には魅力的なポイント!またこの建物は築3年以内の新しい物件で、おしゃれで可愛いお部屋でのライフスタイルが叶いそうですね。また敷地内にごみ置き場があり、ごみ出しが楽にできます。
その他、スーパーやコンビニ・100均が徒歩圏内に4件あります。最も近いのは徒歩3分の所にある、ローソン目黒東山店!中目黒GTも徒歩圏内にあるんです。便利なので休日にも訪れたいですね!生活用品をそろえるのに便利なトモズ中目黒店は、徒歩6分圏内にあります。
もっと見る ▼
- オートロック
- 築浅
- 駅近
- 敷地内ごみ置き場
- 宅配ボックス
- デザイナーズ
- ドラッグストア・ディスカウントショップ
- 交番・警察署
- コンビニ・スーパー・100均
- カフェ・飲食店
- ショッピング
※建物から500m以内に存在する場合にアイコン表示しています。(ショッピングは1㎞以内の場合)
取扱い店舗
-
東京都知事免許(6)第76891号
- 東京都港区芝大門 1-16-3芝大門116ビル1F
- 山手線 /浜松町駅
- 営業時間:10:00 - 19:00
- 定休日:毎週水曜日、第2火曜日
ウェルスクエア中目黒II周辺の賃貸マンション・アパート情報
選択した物件をまとめて






一人暮らしの女性に嬉しいポイントはこちら!