ベイサイドステージ東京 14階/東京都港区海岸2丁目の建物情報
最終更新日:2026年05月14日
最終更新日:2026年05月14日
空室情報
家賃相場
- 万円
- 更新日時
- 住所
- 東京都港区海岸2丁目
- 交通
-
山手線 / 浜松町駅 徒歩12分京浜東北線・根岸線 / 浜松町駅 徒歩17分山手線 / 田町駅 徒歩16分京浜東北線・根岸線 / 田町駅 徒歩16分都営浅草線 / 大門駅 徒歩15分都営三田線 / 三田駅 徒歩16分都営浅草線 / 三田駅 徒歩16分都営三田線 / 芝公園駅 徒歩17分ゆりかもめ / 竹芝駅 徒歩11分ゆりかもめ / 日の出駅 徒歩5分ゆりかもめ / 芝浦ふ頭駅 徒歩11分
- 築年
- 2001年05月(築25年)
- 種別/構造
- マンション/鉄骨鉄筋コンクリート造
- 階建
- 14階建
- 駐車場
- 駐車場なし
- 参考賃料
- 24万円(管理費等:14,100円)
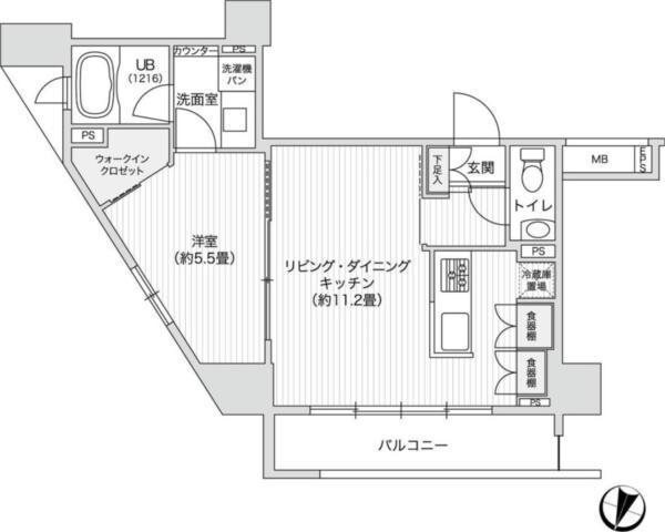
- 参考間取り
- 2LDK
- 参考平米数
- 70.44㎡
過去から現在までにWoman.CHINTAIに掲載のあった物件情報を元に作成した参考ページです。
間取りや掲載時期によって部屋の状況は異なり、全ての部屋と一致するものではございません。
建物設備や周辺環境
このお部屋は、山手線浜松町駅から徒歩12分に位置するマンションです。また、浜松町駅や、田町(東京)駅などの複数駅が利用できるのでアクセスも便利です!
また、この建物はオートロックがあるので防犯面を重視する女性には魅力的なポイント!また敷地内にごみ置き場があり、ごみ出しが楽にできます。また宅配ボックスが備え付けられているため、対面で荷物を受け取らずにすみ、急な外出の心配をしなくてもネットショッピングが楽しめます。
その他、スーパーやコンビニ・100均が徒歩圏内に4件あります。最も近いのは徒歩6分の所にある、まいばすけっと!シーバンス・ア・モールも徒歩圏内にあるんです。便利なので休日にも訪れたいですね!
もっと見る ▼
- オートロック
- 築浅
- 駅近
- 敷地内ごみ置き場
- 宅配ボックス
- デザイナーズ
- ドラッグストア・ディスカウントショップ
- 交番・警察署
- コンビニ・スーパー・100均
- カフェ・飲食店
- ショッピング
※建物から500m以内に存在する場合にアイコン表示しています。(ショッピングは1㎞以内の場合)
取扱い店舗
-
国土交通大臣免許(5)第7032号19時以降も営業
- 東京都品川区東五反田 1丁目11-12 五反田大力ビル4F
- 山手線 /五反田駅
- 営業時間:9:00~19:00
- 定休日:毎週水曜日(祝日を除く)
- 女性におすすめのポイント
-
- 株式会社リブマックスリブマックス五反田店では仲介手数料家賃の55%以下なので、初期費用を抑えることができますよ!
- また、保証人に関して不安な方は、相談可能ですのでご安心ください。
- さらに、19時以降も営業しているので、お仕事帰りに寄っていただくことも可能です!
ベイサイドステージ東京周辺の賃貸マンション・アパート情報
選択した物件をまとめて







一人暮らしの女性に嬉しいポイントはこちら!