シーズンフラッツ新御徒町 11階/東京都台東区台東4丁目(新御徒町駅)の賃貸物件詳細
- 即入居可
-
空室状況を
聞いてみる -
電話でお問合せ
03-6801-5861
- お部屋の状況を確認する(無料)
-
電話でお問合せ
03-6801-5861
保証金 1ヶ月/--
償却 --/--
山手線 / 上野駅 徒歩10分
日比谷線 / 仲御徒町駅 徒歩5分
銀座線 / 稲荷町駅 徒歩9分
女性におすすめのポイント シーズンフラッツ新御徒町 11階/東京都台東区台東4丁目
一人暮らしの女性に嬉しいポイントはこちら!
このお部屋は、都営大江戸線新御徒町駅から徒歩2分に位置する駅近のマンションです。また、新御徒町駅や、上野駅などの複数駅が利用できるのでアクセスも便利です!
このお部屋はお風呂とトイレが別なので、それぞれ清潔&おしゃれにこだわることができます。また2階以上にあるお部屋で、路面から室内が見られないので女性の一人暮らしでも少し安心。
この建物はオートロックがあるので基本的には住人以外は入れないので安心ですね!
嬉しいのがこのお部屋は礼金がないところ。初期費用が抑えられますね!
スーパーやコンビニが徒歩分圏内に2件あるので一人暮らしに便利。最も近いのは徒歩4分の所にある、セブンイレブン新御徒町駅前店!
もっと見る ▼
-
即入居 -
バス・
トイレ別 -
独立
洗面台 -
オートロック -
2階以上 -
システム
キッチン -
コンロ
二口 -
クロー
ゼット -
室内洗濯
機置き場
この物件に無料でお問合せ お問合せ内容を選択してね!
-
電話でお問合せ
03-6801-5861 -
スーペリアス株式会社
本店
営業時間:10:00~19:00
基本物件情報 シーズンフラッツ新御徒町 11階/東京都台東区台東4丁目
- 家賃/管理費
- 18.5万円/15,000円
- 敷金(保証金)/ 礼金(償却)
- 1ヶ月(--)/--(--)
- 初期費用が気になる方は
お気軽にお問合せください! -
初期費用をスーペリアス株式会社本店に聞いてみる!
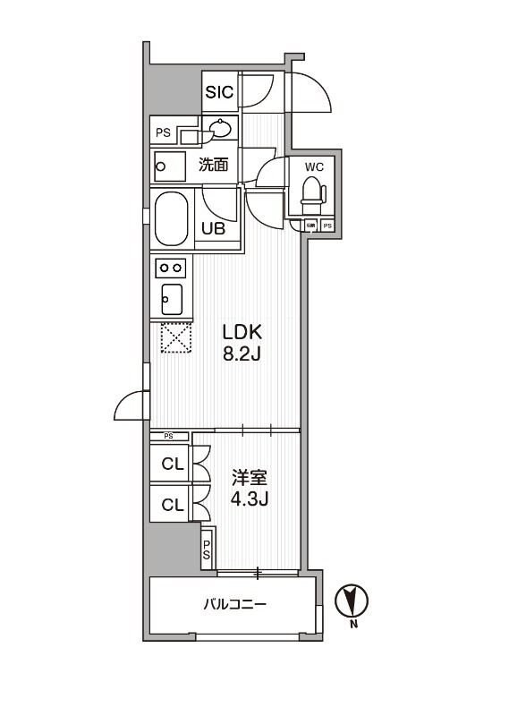
- 間取り/面積
-
1LDK
/34.09㎡
- 築年
- 2023年06月(築2年)
- 交通
-
都営大江戸線 / 新御徒町駅 徒歩2分
山手線 / 上野駅 徒歩10分
日比谷線 / 仲御徒町駅 徒歩5分
銀座線 / 稲荷町駅 徒歩9分
- 所在地
-
東京都 台東区 台東 4丁目
地図・周辺情報を見る
- 階数/方位
- 11階(11階建て)
/北向き
- 空室数
- 同じ建物に空室があと10件あります
空室を見る
- 種別/構造
- マンション/鉄筋コンクリート造
みんなの評価
- 広さ・・・・・(5.00)
- 条件・・・・・(5.00)
- 費用・・・・・(5.00)
- アクセス・・・(5.00)
- きれいさ・・・(5.00)
-
電話でお問合せ
03-6801-5861
こだわり設備・特徴 シーズンフラッツ新御徒町 11階/東京都台東区台東4丁目
- 入居時期・条件
-
即入居
/
保証人不要
/
二人入居可
- お得条件
- フリーレント(1ヶ月)
- セキュリティ
- オートロック / 防犯カメラ / 宅配ボックス / TVモニターフォン
- 周辺環境
- 3沿線利用可 / 3駅利用可
- 収納
- 全居室収納 / シューズボックス1ヵ所 / クローゼット1ヵ所
- 位置
- 最上階 / 角部屋
- 放送・通信
-
※BS受信可
/
インターネット接続(月額利用料無料)
/
※CS受信可
/
光ファイバー
/
ネット専用回線
※インターネット接続環境、BS受信可、CATV、CS受信可について…利用料金は、共益費に含まれるタイプや個別に契約するタイプなど物件により異なります。詳しくは、物件お取り扱い不動産会社にお問合せください。
- その他設備・サービス
- 給湯 / 24時間ゴミ出し可 / 室内洗濯機置場 / フローリング / 都市ガス / フリーレント / バルコニー / エレベーター1基 / 追い焚き機能 / エアコン1台 / 24時間換気システム / 敷地内ごみ置き場 / 複層ガラス
- 建物タイプ・デザイン
- 外壁タイル張り / タワーマンション / デザイナーズ
- 駐輪・駐車
- 自転車置き場
- 家賃保証会社など
- 保証会社必加入(その他:実費)※詳細はお問い合わせください。
- 保険
- --
- その他諸費用
- 付属設備(駐輪場代金:330円)※月あたり料金 / その他費用(鍵交換:33000円)
- 契約期間
- 一般契約:2年0ヶ月間
- 更新料
- 1ヶ月
- 取引形態
- 一般媒介
- 物件管理コード
- C01010624-000001327062453-0001
- 情報更新日
- 2026/01/29
- 次回更新予定日
- 2026/02/12
この物件に無料でお問合せ お問合せ内容を選択してね!
-
電話でお問合せ
03-6801-5861 -
スーペリアス株式会社
本店
営業時間:10:00~19:00
-
電話でお問合せ
03-6801-5861
物件についてお問合せ シーズンフラッツ新御徒町 11階/東京都台東区台東4丁目
【掲載物件情報について】
Woman.CHINTAIでは安心してお部屋探しのできるサイトを目指して、物件情報の精度向上に努めております。Woman.CHINTAIに掲載されている物件情報について万が一相違がございましたら、以下のページからご連絡ください
お問い合わせページ同じ建物の空室情報一覧 シーズンフラッツ新御徒町 11階/東京都台東区台東4丁目
-
- 1階 1101号室
- 家賃
-
18.5
万円
(管理費等 15,000円)
- 管理費
- 15,000円
- 敷金/保証金
- 1ヶ月/--
- 礼金/償却
- --/--
- 間取り
- 1LDK
- 専有面積
- 34.09㎡
- その他
- 北向き
-
- 1階 1101号室
- 家賃
-
18.5
万円
(管理費等 15,000円)
- 管理費
- 15,000円
- 敷金/保証金
- 1ヶ月/--
- 礼金/償却
- --/--
- 間取り
- 1LDK
- 専有面積
- 34.09㎡
- その他
- 北向き
-
- 1階 1101号室
- 家賃
-
18.5
万円
(管理費等 15,000円)
- 管理費
- 15,000円
- 敷金/保証金
- 1ヶ月/--
- 礼金/償却
- --/--
- 間取り
- 1LDK
- 専有面積
- 34.09㎡
- その他
- 北向き
取扱い店舗 シーズンフラッツ新御徒町 11階/東京都台東区台東4丁目
-
スーペリアス株式会社 本店
お問合せ番号:R01327-062453
東京都知事免許(2)第099564号- 東京都文京区本郷3丁目 2-2
- 総武線 /御茶ノ水駅
- 営業時間:10:00~19:00
- 定休日:水曜日
メールでお問合せする 電話でお問合せ
03-6801-5861
選択した物件をまとめて
建物ごとに探す
シーズンフラッツ新御徒町 11階と同じ最寄り駅にある物件
シーズンフラッツ新御徒町 11階と同じエリアにある物件
設備・条件から台東区の物件を再検索
設備・条件から新御徒町駅の物件を再検索
設備・条件から上野駅の物件を再検索
設備・条件から仲御徒町駅の物件を再検索























