ベルシード板橋本町プレミアII 10階/東京都板橋区清水町(板橋本町駅)の賃貸物件詳細
- 新築
- 即入居可
-
空室状況を
聞いてみる -
電話でお問合せ
03-6228-4882
- お部屋の状況を確認する(無料)
-
電話でお問合せ
03-6228-4882
保証金 --/--
償却 --/--
都営三田線 / 本蓮沼駅 徒歩10分
埼京線・川越線 / 十条駅 徒歩21分
東武東上線 / 中板橋駅 徒歩24分
- 新築 敷金・礼金0ヶ月 フリーレント2ヶ月 板橋本町駅徒歩7分 ペット相談可 インターネット無料
女性におすすめのポイント ベルシード板橋本町プレミアII 10階/東京都板橋区清水町
このお部屋は、都営三田線板橋本町駅から徒歩7分に位置するマンションです。また、板橋本町駅や、本蓮沼駅などの複数駅が利用できるのでアクセスも便利です!
このお部屋はお風呂とトイレが別なので、それぞれ清潔&おしゃれにこだわることができます。また2階以上にあるお部屋で、路面から室内が見られないので女性の一人暮らしでも少し安心。
この建物はオートロックがあるので基本的には住人以外は入れないので安心ですね!
嬉しいのがこのお部屋は礼金がないところ。初期費用が抑えられますね!
スーパーやコンビニが徒歩分圏内に2件あるので一人暮らしに便利。最も近いのは徒歩2分の所にある、セブンイレブン板橋清水町東店!
もっと見る ▼
-
即入居 -
女子割 -
バス・
トイレ別 -
独立
洗面台 -
オートロック -
2階以上 -
システム
キッチン -
コンロ
二口 -
クロー
ゼット -
室内洗濯
機置き場
この物件に無料でお問合せ お問合せ内容を選択してね!
-
電話でお問合せ
03-6228-4882 -
スタートライン
MINATO浜松町店
営業時間:10:00 - 19:00
基本物件情報 ベルシード板橋本町プレミアII 10階/東京都板橋区清水町
- 家賃/管理費
- 18.2万円/15,000円
- 敷金(保証金)/ 礼金(償却)
- --(--)/--(--)
- 初期費用が気になる方は
お気軽にお問合せください! -
初期費用をスタートラインMINATO浜松町店に聞いてみる!
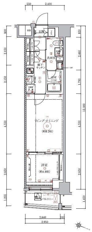
- 間取り/面積
-
1LDK
/35.85㎡
- 築年
- 2025年05月(新築)
- 交通
-
都営三田線 / 板橋本町駅 徒歩7分
都営三田線 / 本蓮沼駅 徒歩10分
埼京線・川越線 / 十条駅 徒歩21分
東武東上線 / 中板橋駅 徒歩24分
- 所在地
-
東京都 板橋区 清水町
地図・周辺情報を見る
- 階数/方位
- 10階(10階建て)
/北東向き
- 空室数
- 同じ建物に空室があと10件あります
空室を見る
- 種別/構造
- マンション/鉄筋コンクリート造
-
電話でお問合せ
03-6228-4882
こだわり設備・特徴 ベルシード板橋本町プレミアII 10階/東京都板橋区清水町
- 入居時期・条件
-
即入居
/
保証人不要
/
ペット相談可
(飼育の場合:敷金1ヶ月増)
/
二人入居可
- お得条件
- フリーレント(2ヶ月)
- 収納
- シューズボックス1ヵ所 / クローゼット1ヵ所
- 位置
- 最上階
- 放送・通信
-
※BS受信可
/
インターネット接続(月額利用料無料)
/
※CS受信可
/
光ファイバー
※インターネット接続環境、BS受信可、CATV、CS受信可について…利用料金は、共益費に含まれるタイプや個別に契約するタイプなど物件により異なります。詳しくは、物件お取り扱い不動産会社にお問合せください。
- その他設備・サービス
- 24時間ゴミ出し可 / 室内洗濯機置場 / 冷房 / フローリング / 都市ガス / フリーレント / バルコニー / エレベーター1基 / 公営上水道 / エアコン1台 / 24時間換気システム / 敷地内ごみ置き場
- 駐輪・駐車
-
有料駐車場1 台(27,500円/月)
自転車置き場 / バイク置場
※駐車場の金額表示は1台分の表示となります。
- 家賃保証会社など
- 保証会社必加入(その他:実費)※初回保証料:総賃料1ヶ月分、保証委託料:1年毎に1万円
- 保険
- --
- 備考
- 解約予告2ヶ月前 短期解約違約金あり:FR時・2年未満解約時賃料2ヶ月分、FR不要時・1年未満解約時賃料2ヶ月分 駐輪場:上段330円・下段550円/月 バイク置場:屋内7700円・屋外5500円/月
- その他諸費用
- 付属設備(駐輪場代金:330円)※月あたり料金 / 付属設備(バイク置き場:5500円)※月あたり料金 / 敷金積み増し(ペット飼育:1ヶ月) / その他費用(鍵交換:17600円) / その他費用(駐輪場(初回登録料):550円) / その他費用(少額短期保険:950円) / その他費用(24時間緊急対応費:880円)
- 契約期間
- 一般契約:2年0ヶ月間
- 更新料
- 1ヶ月
- 取引形態
- 一般媒介
- 物件管理コード
- C01010519-000002130016092-0001
- 情報更新日
- 2025/12/04
- 次回更新予定日
- 2025/12/18
この物件に無料でお問合せ お問合せ内容を選択してね!
-
電話でお問合せ
03-6228-4882 -
スタートライン
MINATO浜松町店
営業時間:10:00 - 19:00
-
電話でお問合せ
03-6228-4882
物件についてお問合せ ベルシード板橋本町プレミアII 10階/東京都板橋区清水町
【掲載物件情報について】
Woman.CHINTAIでは安心してお部屋探しのできるサイトを目指して、物件情報の精度向上に努めております。Woman.CHINTAIに掲載されている物件情報について万が一相違がございましたら、以下のページからご連絡ください
お問い合わせページ同じ建物の空室情報一覧 ベルシード板橋本町プレミアII 10階/東京都板橋区清水町
-
- 2階 202号室
- 家賃
-
16.3
万円
(管理費等 15,000円)
- 管理費
- 15,000円
- 敷金/保証金
- --/--
- 礼金/償却
- --/--
- 間取り
- 1LDK
- 専有面積
- 35.85㎡
- その他
- 北東向き
-
- 2階 203号室
- 家賃
-
16.4
万円
(管理費等 15,000円)
- 管理費
- 15,000円
- 敷金/保証金
- --/--
- 礼金/償却
- --/--
- 間取り
- 1LDK
- 専有面積
- 36.73㎡
- その他
- 北東向き
-
- 3階 302号室
- 家賃
-
16.4
万円
(管理費等 15,000円)
- 管理費
- 15,000円
- 敷金/保証金
- --/--
- 礼金/償却
- --/--
- 間取り
- 1LDK
- 専有面積
- 35.85㎡
- その他
- 北東向き
取扱い店舗 ベルシード板橋本町プレミアII 10階/東京都板橋区清水町
-
スタートライン MINATO浜松町店
お問合せ番号:R02130-016092
東京都知事免許(6)第76891号- 東京都港区芝大門 1-16-3芝大門116ビル1F
- 山手線 /浜松町駅
- 営業時間:10:00 - 19:00
- 定休日:毎週水曜日
選択した物件をまとめて
建物ごとに探す
ベルシード板橋本町プレミアII 10階と同じ最寄り駅にある物件
ベルシード板橋本町プレミアII 10階と同じエリアにある物件
設備・条件から板橋区の物件を再検索
設備・条件から板橋本町駅の物件を再検索
設備・条件から本蓮沼駅の物件を再検索
設備・条件から十条駅の物件を再検索



































一人暮らしの女性に嬉しいポイントはこちら!