マキシヴシティ文京小石川(MAXIV CITY文京小石川) 1階/東京都文京区小石川3丁目(後楽園駅)の賃貸物件詳細
-
空室状況を
聞いてみる -
電話でお問合せ
03-6228-4882
- お部屋の状況を確認する(無料)
-
電話でお問合せ
03-6228-4882
保証金 --/--
償却 --/--
都営三田線 / 春日駅 徒歩11分
丸ノ内線 / 茗荷谷駅 徒歩15分
都営三田線 / 白山駅 徒歩15分
- 2026年4月に新築される賃貸マンション インターネット使用料無料 宅配ボックス オートロック
女性におすすめのポイント マキシヴシティ文京小石川(MAXIV CITY文京小石川) 1階/東京都文京区小石川3丁目
このお部屋は、南北線後楽園駅から徒歩11分に位置するマンションです。また、後楽園駅や、春日駅などの複数駅が利用できるのでアクセスも便利です!
このお部屋はお風呂とトイレが別なので、それぞれ清潔&おしゃれにこだわることができます。また独立洗面台があって収納やコンセントも使えるので、女性の身支度にはとても便利!
この建物はオートロックがあるので基本的には住人以外は入れないので安心ですね!
嬉しいのがこのお部屋は礼金がないところ。初期費用が抑えられますね!
もっと見る ▼
-
即入居 -
バス・
トイレ別 -
独立
洗面台 -
オートロック -
2階以上 -
システム
キッチン -
コンロ
二口 -
クロー
ゼット -
室内洗濯
機置き場
この物件に無料でお問合せ お問合せ内容を選択してね!
-
電話でお問合せ
03-6228-4882 -
スタートライン
御茶ノ水店
営業時間:10:00 - 19:00
基本物件情報 マキシヴシティ文京小石川(MAXIV CITY文京小石川) 1階/東京都文京区小石川3丁目
- 家賃/管理費
- 18.3万円/5,000円
- 敷金(保証金)/ 礼金(償却)
- --(--)/--(--)
- 初期費用が気になる方は
お気軽にお問合せください! -
初期費用をスタートライン御茶ノ水店に聞いてみる!
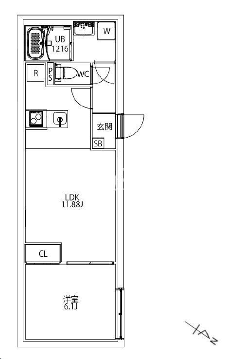
- 間取り/面積
-
1LDK
/40.06㎡
- 築年
- 2026年04月(建築中)
- 交通
-
南北線 / 後楽園駅 徒歩11分
都営三田線 / 春日駅 徒歩11分
丸ノ内線 / 茗荷谷駅 徒歩15分
都営三田線 / 白山駅 徒歩15分
- 所在地
-
東京都 文京区 小石川 3丁目
地図・周辺情報を見る
- 階数/方位
- 1階(4階建て・地下1階)
/北西向き
- 空室数
- 同じ建物に空室があと3件あります
空室を見る
- 種別/構造
- マンション/鉄筋コンクリート造
-
電話でお問合せ
03-6228-4882
こだわり設備・特徴 マキシヴシティ文京小石川(MAXIV CITY文京小石川) 1階/東京都文京区小石川3丁目
- 入居時期・条件
-
空予定(2026年05月中旬)
/
二人入居可
- バス・トイレ
- 洗面所独立 / 洗面台 / バス・トイレ別 / 脱衣所 / シャワー / 浴室乾燥機
- キッチン
- 対面キッチン / システムキッチン / IHクッキングヒーター付 / コンロ2口以上
- 周辺環境
- 閑静な住宅地
- 収納
- シューズボックス1ヵ所 / クローゼット1ヵ所
- 放送・通信
- インターネット接続(月額利用料無料)
- その他設備・サービス
- 室内物干し設備 / 室内洗濯機置場 / 冷房 / エレベーター1基 / エアコン1台 / 全居室フローリング
- 建物タイプ・デザイン
- デザイナーズ
- 家賃保証会社など
- 保証会社必加入(その他:実費)※初回保証料は総賃料の50% 月次保証料は総賃料の1%
- 保険
- 損害保険加入要。
- 備考
- 更新手数料5,000円(税抜) 退去時エアコンクリーニング費用15,000円(税抜)/台 短期解約違約金:1年未満の解約で賃料2ヶ月、2年未満の解約で賃料1ヶ月解約予告期間2ヶ月
- その他諸費用
- その他費用(室内清掃費用:55000円) / その他費用(24時間緊急対応費:16500円)
- 契約期間
- 一般契約:2年0ヶ月間
- 更新料
- 1ヶ月
- 取引形態
- 一般媒介
- 物件管理コード
- C01010493-000002136017206-0001
- 情報更新日
- 2026/03/18
- 次回更新予定日
- 2026/04/01
この物件に無料でお問合せ お問合せ内容を選択してね!
-
電話でお問合せ
03-6228-4882 -
スタートライン
御茶ノ水店
営業時間:10:00 - 19:00
-
電話でお問合せ
03-6228-4882
物件についてお問合せ マキシヴシティ文京小石川(MAXIV CITY文京小石川) 1階/東京都文京区小石川3丁目
【掲載物件情報について】
Woman.CHINTAIでは安心してお部屋探しのできるサイトを目指して、物件情報の精度向上に努めております。Woman.CHINTAIに掲載されている物件情報について万が一相違がございましたら、以下のページからご連絡ください
お問い合わせページ同じ建物の空室情報一覧 マキシヴシティ文京小石川(MAXIV CITY文京小石川) 1階/東京都文京区小石川3丁目
取扱い店舗 マキシヴシティ文京小石川(MAXIV CITY文京小石川) 1階/東京都文京区小石川3丁目
-
スタートライン 御茶ノ水店
お問合せ番号:R02136-017206
東京都知事免許(6)第76891号- 東京都千代田区神田駿河台 2-2-2 キントービル5階
- 中央線 /御茶ノ水駅
- 営業時間:10:00 - 19:00
- 定休日:毎週水曜日
メールでお問合せする 電話でお問合せ
03-6228-4882
選択した物件をまとめて
建物ごとに探す
マキシヴシティ文京小石川(MAXIV CITY文京小石川) 1階と同じ最寄り駅にある物件
マキシヴシティ文京小石川(MAXIV CITY文京小石川) 1階と同じエリアにある物件
設備・条件から文京区の物件を再検索
設備・条件から後楽園駅の物件を再検索
設備・条件から春日駅の物件を再検索
設備・条件から茗荷谷駅の物件を再検索
設備・条件から白山駅の物件を再検索


一人暮らしの女性に嬉しいポイントはこちら!