メゾンドグレイス 1階/神奈川県横浜市港北区樽町1丁目(綱島駅)の賃貸物件詳細
- 即入居可
-
空室状況を
聞いてみる -
電話でお問合せ
045-401-2351
- お部屋の状況を確認する(無料)
-
電話でお問合せ
045-401-2351
保証金 1ヶ月/--
償却 --/--
東急東横線 / 大倉山駅 徒歩10分
東急東横線 / 菊名駅 徒歩28分
- ★最新の空き室状況・見学希望などのお問合せは タウンハウジングまでお気軽に♪★
女性におすすめのポイント メゾンドグレイス 1階/神奈川県横浜市港北区樽町1丁目
一人暮らしの女性に嬉しいポイントはこちら!
このお部屋は、東急東横線綱島駅から徒歩10分に位置するアパートです。また、綱島駅や、大倉山駅などの複数駅が利用できるのでアクセスも便利です!
このお部屋はお風呂とトイレが別なので、それぞれ清潔&おしゃれにこだわることができます。また洗濯機も室内に置けるので、天候にかかわらず洗濯ができ、洗濯機自体も長持ちする傾向にあります。
嬉しいのがこのお部屋は礼金がないところ。初期費用が抑えられますね!
スーパーやコンビニが徒歩分圏内に4件あるので一人暮らしに便利。最も近いのは徒歩7分の所にある、まいばすけっと港北樽町店!
もっと見る ▼
-
即入居 -
バス・
トイレ別 -
独立
洗面台 -
オートロック -
2階以上 -
システム
キッチン -
コンロ
二口 -
クロー
ゼット -
室内洗濯
機置き場
この物件に無料でお問合せ お問合せ内容を選択してね!
-
電話でお問合せ
045-401-2351 -
株式会社タウンハウジング神奈川
菊名店
営業時間:10:00~19:00
基本物件情報 メゾンドグレイス 1階/神奈川県横浜市港北区樽町1丁目
- 家賃/管理費
- 5.6万円/2,000円
- 敷金(保証金)/ 礼金(償却)
- 1ヶ月(--)/--(--)
- 初期費用が気になる方は
お気軽にお問合せください! -
初期費用を株式会社タウンハウジング神奈川菊名店に聞いてみる!
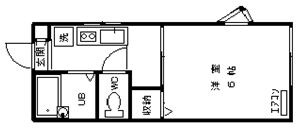
- 間取り/面積
-
1K
/19.8㎡
- 築年
- 1995年03月(築30年)
- 交通
-
東急東横線 / 綱島駅 徒歩10分
東急東横線 / 大倉山駅 徒歩10分
東急東横線 / 菊名駅 徒歩28分
- 所在地
-
神奈川県 横浜市港北区 樽町 1丁目
地図・周辺情報を見る
- 階数/方位
- 1階(2階建て)
/南向き
- 空室数
- 同じ建物に空室があと2件あります
空室を見る
- 種別/構造
- アパート/木造
みんなの評価
- 広さ・・・・・(4.50)
- 条件・・・・・(5.00)
- 費用・・・・・(4.00)
- アクセス・・・(4.50)
- きれいさ・・・(4.00)
-
電話でお問合せ
045-401-2351
こだわり設備・特徴 メゾンドグレイス 1階/神奈川県横浜市港北区樽町1丁目
- 入居時期・条件
-
即入居
/
保証人不要
/
独身可
- バス・トイレ
- 洗面台 / バス・トイレ別 / 温水洗浄便座 / シャワー
- キッチン
- 独立型キッチン / コンロ2口以上
- 周辺環境
- 閑静な住宅地
- 収納
- 玄関収納 / シューズボックス1ヵ所 / クローゼット1ヵ所
- 位置
- 角部屋 / 南向き
- その他設備・サービス
- 給湯 / 室内洗濯機置場 / フローリング / 都市ガス / 陽当り良好 / バルコニー / 2面採光 / エアコン1台
- 駐輪・駐車
-
近隣駐車場1 台※近隣駐車場距離:500m
※駐車場の金額表示は1台分の表示となります。
- 家賃保証会社など
- 保証会社必加入(その他:0.5ヶ月)※実費/初回、月額総賃料の50%~/保証会社
- 保険
- 損害保険加入要。
- 備考
- 直営140店舗以上の広い情報網、地域密着の営業方針でお客様のニーズに合うお部屋のご提案をさせて頂いております。物件情報量地域ナンバー1を目指す当店へ是非一度ご来店下さい。心よりお待ち申し上げます。
- その他諸費用
- その他費用(鍵交換:16500円)
- 契約期間
- 一般契約:2年0ヶ月間
- 更新料
- 1ヶ月
- 取引形態
- 一般媒介
- 物件管理コード
- C01010051-000001627032602-0001
- 情報更新日
- 2026/01/28
- 次回更新予定日
- 2026/02/11
この物件に無料でお問合せ お問合せ内容を選択してね!
-
電話でお問合せ
045-401-2351 -
株式会社タウンハウジング神奈川
菊名店
営業時間:10:00~19:00
-
電話でお問合せ
045-401-2351
物件についてお問合せ メゾンドグレイス 1階/神奈川県横浜市港北区樽町1丁目
【掲載物件情報について】
Woman.CHINTAIでは安心してお部屋探しのできるサイトを目指して、物件情報の精度向上に努めております。Woman.CHINTAIに掲載されている物件情報について万が一相違がございましたら、以下のページからご連絡ください
お問い合わせページ取扱い店舗 メゾンドグレイス 1階/神奈川県横浜市港北区樽町1丁目
-
株式会社タウンハウジング神奈川 菊名店
お問合せ番号:R01627-032602
国土交通大臣免許(1)第009928号- 神奈川県横浜市港北区篠原北2-1-17 第三松葉ビル2F
- 横浜線 /菊名駅
- 営業時間:10:00~19:00
- 定休日:水曜日
選択した物件をまとめて
建物ごとに探す
メゾンドグレイス 1階と同じ最寄り駅にある物件
メゾンドグレイス 1階と同じエリアにある物件
設備・条件から横浜市港北区の物件を再検索
設備・条件から綱島駅の物件を再検索
設備・条件から大倉山駅の物件を再検索
設備・条件から菊名駅の物件を再検索


























