パークアクシス滝野川 2階/東京都北区滝野川3丁目(西巣鴨駅)の賃貸物件詳細
- 新着
- 即入居可
-
空室状況を
聞いてみる -
電話でお問合せ
03-3945-1881
- お部屋の状況を確認する(無料)
-
電話でお問合せ
03-3945-1881
保証金 1ヶ月/--
償却 1ヶ月/--
埼京線・川越線 / 板橋駅 徒歩12分
京浜東北線・根岸線 / 王子駅 徒歩16分
- 初期費用の一部クレジットカード決済可!IT重説もできます、ご相談ください。オンライン内見相談可能!お電話ください。
女性におすすめのポイント パークアクシス滝野川 2階/東京都北区滝野川3丁目
このお部屋は、都営三田線西巣鴨駅から徒歩10分に位置するマンションです。また、西巣鴨駅や、板橋駅などの複数駅が利用できるのでアクセスも便利です!
このお部屋はお風呂とトイレが別なので、それぞれ清潔&おしゃれにこだわることができます。また2階以上にあるお部屋で、路面から室内が見られないので女性の一人暮らしでも少し安心。
この建物はオートロックがあるので基本的には住人以外は入れないので安心ですね!
スーパーやコンビニが徒歩分圏内に5件あるので一人暮らしに便利。最も近いのは徒歩6分の所にある、ファミリーマート滝野川店!
もっと見る ▼
-
即入居 -
女子割 -
バス・
トイレ別 -
独立
洗面台 -
オートロック -
2階以上 -
システム
キッチン -
コンロ
二口 -
クロー
ゼット -
室内洗濯
機置き場
この物件に無料でお問合せ お問合せ内容を選択してね!
-
電話でお問合せ
03-3945-1881 -
株式会社タウンハウジング東京
駒込店
営業時間:10:00ー19:00
基本物件情報 パークアクシス滝野川 2階/東京都北区滝野川3丁目
- 家賃/管理費
- 18.7万円/10,000円
- 敷金(保証金)/ 礼金(償却)
- 1ヶ月(--)/1ヶ月(--)
- 初期費用が気になる方は
お気軽にお問合せください! -
初期費用を株式会社タウンハウジング東京駒込店に聞いてみる!
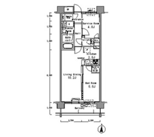
- 間取り/面積
-
1LDK+S
/50.29㎡
- 築年
- 2007年04月(築18年)
- 交通
-
都営三田線 / 西巣鴨駅 徒歩10分
埼京線・川越線 / 板橋駅 徒歩12分
京浜東北線・根岸線 / 王子駅 徒歩16分
- 所在地
-
東京都 北区 滝野川 3丁目
地図・周辺情報を見る
- 階数/方位
- 2階(7階建て)
/南向き
- 空室数
- 同じ建物に空室があと10件あります
空室を見る
- 種別/構造
- マンション/鉄筋コンクリート造
-
電話でお問合せ
03-3945-1881
こだわり設備・特徴 パークアクシス滝野川 2階/東京都北区滝野川3丁目
- 入居時期・条件
-
即入居
/
保証人不要
/
ペット相談可
(飼育の場合:敷金1ヶ月増)
/
二人入居可
/
楽器相談可
- バス・トイレ
- オートバス / 洗面所にドア / 洗面所独立 / 洗面台 / 洗面化粧台 / 暖房便座 / バス・トイレ別 / 脱衣所 / 温水洗浄便座 / シャワー / シャワー付洗面化粧台 / 浴室乾燥機
- セキュリティ
- 24時間緊急通報システム / オートロック / 宅配ボックス / TVモニターフォン / インターホン
- 周辺環境
- 3沿線利用可 / 閑静な住宅地 / 3駅利用可
- 収納
- 玄関収納 / シューズボックス1ヵ所 / クローゼット1ヵ所
- 位置
- 南向き
- 放送・通信
-
※BS受信可
/
※CS受信可
/
光ファイバー
/
※CATV
/
ネット専用回線
※インターネット接続環境、BS受信可、CATV、CS受信可について…利用料金は、共益費に含まれるタイプや個別に契約するタイプなど物件により異なります。詳しくは、物件お取り扱い不動産会社にお問合せください。
- その他設備・サービス
- 給湯 / 耐震構造 / 24時間ゴミ出し可 / 室内洗濯機置場 / 振分タイプ / 玄関ホール / 通風良好 / 都市ガス / 陽当り良好 / バルコニー / エレベーター1基 / 追い焚き機能 / 2面採光 / 南面バルコニー / 公営上水道 / エアコン1台 / 24時間換気システム / 敷地内ごみ置き場 / 全居室フローリング
- 建物タイプ・デザイン
- 外壁タイル張り
- 駐輪・駐車
- 自転車置き場
- 家賃保証会社など
- 保証会社必加入(その他:0.5ヶ月)※初回総賃料のの50%、2年目以降1年毎に9,600円必要です。
- 保険
- 損害保険加入要。
- 備考
- お部屋探しはタウンハウジングへ!
- その他諸費用
- 敷金積み増し(ペット飼育:1ヶ月) / その他費用(鍵交換:16500円) / その他費用(室内清掃費用:94042円) / その他費用(口座振替事務手数料:110円)
- 契約期間
- 一般契約:2年0ヶ月間
- 更新料
- 1ヶ月
- 取引形態
- 一般媒介
- 物件管理コード
- C01009437-000001357067166-0001
- 情報更新日
- 2025/12/21
- 次回更新予定日
- 2026/01/13
この物件に無料でお問合せ お問合せ内容を選択してね!
-
電話でお問合せ
03-3945-1881 -
株式会社タウンハウジング東京
駒込店
営業時間:10:00ー19:00
-
電話でお問合せ
03-3945-1881
周辺情報 パークアクシス滝野川 2階/東京都北区滝野川3丁目
- スーパー
- スーパー(肉のハナマサ滝野川店)まで 654m
- ドラッグストア
- ドラッグストア(どらっぐぱぱす王子本町店)まで 781m
- コンビニ
- コンビニ(ファミリーマート滝野川店)まで 424m
- スーパー
- スーパー(コモディイイダ滝野川店)まで 931m
- コンビニ
- コンビニ(セブンイレブン北区王子本町1丁目店)まで 685m
- スーパー
- スーパー(サミットストア滝野川紅葉橋店)まで 640m
- 病院
- 病院(医療法人社団貴友会王子病院)まで 1560m
- 郵便局
- 郵便局(滝野川六郵便局)まで 550m
- 銀行
- 銀行(三菱東京UFJ銀行王子支店)まで 1300m
- 銀行
- 銀行(ゆうちょ銀行本店板橋駅前出張所)まで 860m
物件についてお問合せ パークアクシス滝野川 2階/東京都北区滝野川3丁目
【掲載物件情報について】
Woman.CHINTAIでは安心してお部屋探しのできるサイトを目指して、物件情報の精度向上に努めております。Woman.CHINTAIに掲載されている物件情報について万が一相違がございましたら、以下のページからご連絡ください
お問い合わせページ同じ建物の空室情報一覧 パークアクシス滝野川 2階/東京都北区滝野川3丁目
-
- 2-2階 205号室
- 家賃
-
18.7
万円
(管理費等 10,000円)
- 管理費
- 10,000円
- 敷金/保証金
- 18.7万/--
- 礼金/償却
- 18.7万/--
- 間取り
- 1LDK+S
- 専有面積
- 50.29㎡
- その他
- 南向き
-
- 2階 205号室
- 家賃
-
18.7
万円
(管理費等 10,000円)
- 管理費
- 10,000円
- 敷金/保証金
- 1ヶ月/--
- 礼金/償却
- 1ヶ月/--
- 間取り
- 1LDK+S
- 専有面積
- 50.29㎡
- その他
- 南向き
-
- 2階 205号室
- 家賃
-
18.7
万円
(管理費等 10,000円)
- 管理費
- 10,000円
- 敷金/保証金
- 1ヶ月/--
- 礼金/償却
- 1ヶ月/--
- 間取り
- 1LDK+S
- 専有面積
- 50.29㎡
- その他
- 南向き
取扱い店舗 パークアクシス滝野川 2階/東京都北区滝野川3丁目
-
株式会社タウンハウジング東京 駒込店
お問合せ番号:R01357-067166
国土交通大臣免許(1)第009926号- 東京都文京区本駒込6-15-2 山口ビル1階
- 山手線 /駒込駅
- 営業時間:10:00ー19:00
- 定休日:水曜日
選択した物件をまとめて
建物ごとに探す
パークアクシス滝野川 2階と同じ最寄り駅にある物件
パークアクシス滝野川 2階と同じエリアにある物件
設備・条件から北区の物件を再検索
設備・条件から西巣鴨駅の物件を再検索
設備・条件から板橋駅の物件を再検索





























一人暮らしの女性に嬉しいポイントはこちら!