PREMIUMCUBE王子神谷 1階/東京都北区豊島6丁目(王子神谷駅)の賃貸物件詳細
- 即入居可
-
空室状況を
聞いてみる -
電話でお問合せ
03-3837-5101
- お部屋の状況を確認する(無料)
-
電話でお問合せ
03-3837-5101
保証金 --/--
償却 --/--
京浜東北線・根岸線 / 王子駅 徒歩24分
都電荒川線 / 王子駅前駅 徒歩24分
- タウンハウジング上野店でご予約受付中♪
女性におすすめのポイント PREMIUMCUBE王子神谷 1階/東京都北区豊島6丁目
このお部屋は、南北線王子神谷駅から徒歩12分に位置するマンションです。また、王子神谷駅や、王子駅などの複数駅が利用できるのでアクセスも便利です!
このお部屋はお風呂とトイレが別なので、それぞれ清潔&おしゃれにこだわることができます。また独立洗面台があって収納やコンセントも使えるので、女性の身支度にはとても便利!
この建物はオートロックがあるので基本的には住人以外は入れないので安心ですね!
嬉しいのがこのお部屋は礼金がないところ。初期費用が抑えられますね!
スーパーやコンビニが徒歩分圏内に4件あるので一人暮らしに便利。最も近いのは徒歩5分の所にある、セブンイレブン北区豊島6丁目店!
もっと見る ▼
-
即入居 -
女子割 -
バス・
トイレ別 -
独立
洗面台 -
オートロック -
2階以上 -
システム
キッチン -
コンロ
二口 -
クロー
ゼット -
室内洗濯
機置き場
この物件に無料でお問合せ お問合せ内容を選択してね!
-
電話でお問合せ
03-3837-5101 -
株式会社タウンハウジング東京
上野店
営業時間:10時~19時
基本物件情報 PREMIUMCUBE王子神谷 1階/東京都北区豊島6丁目
- 家賃/管理費
- 19.2万円/20,000円
- 敷金(保証金)/ 礼金(償却)
- --(--)/--(--)
- 初期費用が気になる方は
お気軽にお問合せください! -
初期費用を株式会社タウンハウジング東京上野店に聞いてみる!
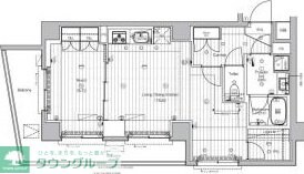
- 間取り/面積
-
1LDK
/55.84㎡
- 築年
- 2025年10月(1年未満)
- 交通
-
南北線 / 王子神谷駅 徒歩12分
京浜東北線・根岸線 / 王子駅 徒歩24分
都電荒川線 / 王子駅前駅 徒歩24分
- 所在地
-
東京都 北区 豊島 6丁目
地図・周辺情報を見る
- 階数/方位
- 1階(6階建て)
/西向き
- 空室数
- 同じ建物に空室があと10件あります
空室を見る
- 種別/構造
- マンション/鉄筋コンクリート造
-
電話でお問合せ
03-3837-5101
こだわり設備・特徴 PREMIUMCUBE王子神谷 1階/東京都北区豊島6丁目
- 入居時期・条件
-
即入居
/
保証人不要
/
ペット相談可
/
二人入居可
/
独身可
- お得条件
- フリーレント(1ヶ月)※先着5組様限定
- セキュリティ
- オートロック / 防犯カメラ / 宅配ボックス / TVモニターフォン / インターホン
- 周辺環境
- 3沿線利用可 / 閑静な住宅地 / 3駅利用可
- 収納
- 玄関収納 / シューズボックス1ヵ所 / クローゼット2ヵ所 / ウォークインクローゼット1ヵ所
- 位置
- 角部屋
- 放送・通信
-
※BS受信可
/
インターネット接続(月額利用料無料)
/
※CS受信可
※インターネット接続環境、BS受信可、CATV、CS受信可について…利用料金は、共益費に含まれるタイプや個別に契約するタイプなど物件により異なります。詳しくは、物件お取り扱い不動産会社にお問合せください。
- その他設備・サービス
- 給湯 / 室内洗濯機置場 / 冷房 / 都市ガス / フリーレント / バルコニー / エレベーター1基 / 追い焚き機能 / 2面採光 / L字型バルコニー / 24時間換気システム / 全室エアコン / 全居室フローリング / LDK15畳以上
- 駐輪・駐車
- 自転車置き場
- 家賃保証会社など
- 保証会社必加入(その他:実費)※保証会社必須/~50%
- 保険
- 損害保険加入要。
- 備考
- 初期費用クレジット決済可(一部)/IT重説対応/オンライン相談・内見可
- その他諸費用
- その他費用(鍵交換:25300円) / その他費用(入居中サポート:1500円)
- 契約期間
- 一般契約:2年0ヶ月間
- 取引形態
- 一般媒介
- 物件管理コード
- C01009435-000001359211083-0001
- 情報更新日
- 2025/12/05
- 次回更新予定日
- 2025/12/19
この物件に無料でお問合せ お問合せ内容を選択してね!
-
電話でお問合せ
03-3837-5101 -
株式会社タウンハウジング東京
上野店
営業時間:10時~19時
-
電話でお問合せ
03-3837-5101
物件についてお問合せ PREMIUMCUBE王子神谷 1階/東京都北区豊島6丁目
【掲載物件情報について】
Woman.CHINTAIでは安心してお部屋探しのできるサイトを目指して、物件情報の精度向上に努めております。Woman.CHINTAIに掲載されている物件情報について万が一相違がございましたら、以下のページからご連絡ください
お問い合わせページ同じ建物の空室情報一覧 PREMIUMCUBE王子神谷 1階/東京都北区豊島6丁目
-
- 1階 101号室
- 家賃
-
19.2
万円
(管理費等 20,000円)
- 管理費
- 20,000円
- 敷金/保証金
- --/--
- 礼金/償却
- --/--
- 間取り
- 1LDK
- 専有面積
- 55.84㎡
- その他
- 西向き
-
- 1階 101号室
- 家賃
-
19.2
万円
(管理費等 20,000円)
- 管理費
- 20,000円
- 敷金/保証金
- --/--
- 礼金/償却
- --/--
- 間取り
- 1LDK
- 専有面積
- 55.84㎡
- その他
- 西向き
-
- 1階 101号室
- 家賃
-
19.2
万円
(管理費等 20,000円)
- 管理費
- 20,000円
- 敷金/保証金
- --/--
- 礼金/償却
- --/--
- 間取り
- 1LDK
- 専有面積
- 55.84㎡
- その他
- 西向き
-
- 1階 101号室
- 家賃
-
19.2
万円
(管理費等 20,000円)
- 管理費
- 20,000円
- 敷金/保証金
- --/--
- 礼金/償却
- --/--
- 間取り
- 1LDK
- 専有面積
- 55.84㎡
- その他
- 西向き
-
- 1階 101号室
- 家賃
-
19.2
万円
(管理費等 20,000円)
- 管理費
- 20,000円
- 敷金/保証金
- --/--
- 礼金/償却
- --/--
- 間取り
- 1LDK
- 専有面積
- 55.84㎡
- その他
- 西向き
取扱い店舗 PREMIUMCUBE王子神谷 1階/東京都北区豊島6丁目
-
株式会社タウンハウジング東京 上野店
お問合せ番号:R01359-211083
国土交通大臣免許(1)第009926号- 東京都台東区上野4-5-5 アクティオーレ上野ビル3階
- 山手線 /上野駅
- 営業時間:10時~19時
- 定休日:水曜日
メールでお問合せする 電話でお問合せ
03-3837-5101
選択した物件をまとめて
建物ごとに探す
PREMIUMCUBE王子神谷 1階と同じ最寄り駅にある物件
PREMIUMCUBE王子神谷 1階と同じエリアにある物件
設備・条件から北区の物件を再検索
設備・条件から王子神谷駅の物件を再検索
設備・条件から王子駅の物件を再検索






















一人暮らしの女性に嬉しいポイントはこちら!