メゾンドグレイス 1階/神奈川県横浜市港北区樽町1丁目(綱島駅)の賃貸物件詳細
- 即入居可
-
空室状況を
聞いてみる -
電話でお問合せ
044-739-1070
- お部屋の状況を確認する(無料)
-
電話でお問合せ
044-739-1070
保証金 1ヶ月/--
償却 --/--
東急東横線 / 大倉山駅 徒歩10分
東急東横線 / 菊名駅 徒歩28分
- ★最新の空室情報はタウンハウジング神奈川まで★
女性におすすめのポイント メゾンドグレイス 1階/神奈川県横浜市港北区樽町1丁目
このお部屋は、東急東横線綱島駅から徒歩10分に位置するアパートです。また、綱島駅や、大倉山駅などの複数駅が利用できるのでアクセスも便利です!
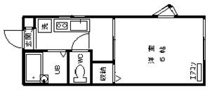
このお部屋はお風呂とトイレが別なので、それぞれ清潔&おしゃれにこだわることができます。また洗濯機も室内に置けるので、天候にかかわらず洗濯ができ、洗濯機自体も長持ちする傾向にあります。
嬉しいのがこのお部屋は礼金がないところ。初期費用が抑えられますね!
スーパーやコンビニが徒歩分圏内に4件あるので一人暮らしに便利。最も近いのは徒歩7分の所にある、まいばすけっと港北樽町店!
もっと見る ▼
-
即入居 -
女子割 -
バス・
トイレ別 -
独立
洗面台 -
オートロック -
2階以上 -
システム
キッチン -
コンロ
二口 -
クロー
ゼット -
室内洗濯
機置き場
この物件に無料でお問合せ お問合せ内容を選択してね!
-
電話でお問合せ
044-739-1070 -
株式会社タウンハウジング神奈川
武蔵小杉店
営業時間:10:00-19:00
基本物件情報 メゾンドグレイス 1階/神奈川県横浜市港北区樽町1丁目
- 家賃/管理費
- 5.6万円/2,000円
- 敷金(保証金)/ 礼金(償却)
- 1ヶ月(--)/--(--)
- 初期費用が気になる方は
お気軽にお問合せください! -
初期費用を株式会社タウンハウジング神奈川武蔵小杉店に聞いてみる!
- 間取り/面積
-
1K
/19.8㎡
- 築年
- 1995年03月(築30年)
- 交通
-
東急東横線 / 綱島駅 徒歩10分
東急東横線 / 大倉山駅 徒歩10分
東急東横線 / 菊名駅 徒歩28分
- 所在地
-
神奈川県 横浜市港北区 樽町 1丁目
地図・周辺情報を見る
- 階数/方位
- 1階(2階建て)
/南向き
- 空室数
- 同じ建物に空室があと4件あります
空室を見る
- 種別/構造
- アパート/木造
-
電話でお問合せ
044-739-1070
こだわり設備・特徴 メゾンドグレイス 1階/神奈川県横浜市港北区樽町1丁目
- 入居時期・条件
-
即入居
/
保証人不要
/
独身可
- バス・トイレ
- 洗面台 / バス・トイレ別 / 温水洗浄便座 / シャワー
- キッチン
- 独立型キッチン / コンロ2口以上
- 周辺環境
- 閑静な住宅地
- 収納
- 玄関収納 / シューズボックス1ヵ所 / クローゼット1ヵ所
- 位置
- 角部屋 / 南向き
- その他設備・サービス
- 給湯 / 室内洗濯機置場 / フローリング / 都市ガス / 陽当り良好 / バルコニー / 2面採光 / エアコン1台
- 駐輪・駐車
-
近隣駐車場1 台※近隣駐車場距離:500m
※駐車場の金額表示は1台分の表示となります。
- 家賃保証会社など
- 保証会社必加入(その他:0.5ヶ月)※実費/初回、月額総賃料の50%~/保証会社
- 保険
- 損害保険加入要。
- 備考
- ★お部屋探しはタウンハウジング神奈川にお任せ下さい★弊社はオンライン内見や室内動画を見てIT契約で来店せず手続き可能です♪★
- その他諸費用
- その他費用(鍵交換:16500円)
- 契約期間
- 一般契約:2年0ヶ月間
- 更新料
- 1ヶ月
- 取引形態
- 一般媒介
- 物件管理コード
- C01009125-000001079128463-0001
- 情報更新日
- 2025/12/05
- 次回更新予定日
- 2025/12/19
この物件に無料でお問合せ お問合せ内容を選択してね!
-
電話でお問合せ
044-739-1070 -
株式会社タウンハウジング神奈川
武蔵小杉店
営業時間:10:00-19:00
-
電話でお問合せ
044-739-1070
物件についてお問合せ メゾンドグレイス 1階/神奈川県横浜市港北区樽町1丁目
【掲載物件情報について】
Woman.CHINTAIでは安心してお部屋探しのできるサイトを目指して、物件情報の精度向上に努めております。Woman.CHINTAIに掲載されている物件情報について万が一相違がございましたら、以下のページからご連絡ください
お問い合わせページ同じ建物の空室情報一覧 メゾンドグレイス 1階/神奈川県横浜市港北区樽町1丁目
取扱い店舗 メゾンドグレイス 1階/神奈川県横浜市港北区樽町1丁目
-
株式会社タウンハウジング神奈川 武蔵小杉店
お問合せ番号:R01079-128463
国土交通大臣免許(1)第009928号- 神奈川県川崎市中原区小杉町1丁目 403-35 武蔵小杉タワープレイス1階
- 東急東横線 /武蔵小杉駅
- 営業時間:10:00-19:00
- 定休日:水曜日
選択した物件をまとめて
建物ごとに探す
メゾンドグレイス 1階と同じ最寄り駅にある物件
メゾンドグレイス 1階と同じエリアにある物件
設備・条件から横浜市港北区の物件を再検索
設備・条件から綱島駅の物件を再検索
設備・条件から大倉山駅の物件を再検索
設備・条件から菊名駅の物件を再検索



























一人暮らしの女性に嬉しいポイントはこちら!