クラッサ成城 3階/東京都世田谷区成城7丁目(成城学園前駅)の賃貸物件詳細
- 即入居可
-
空室状況を
聞いてみる -
電話でお問合せ
03-5456-9988
- お部屋の状況を確認する(無料)
-
電話でお問合せ
03-5456-9988
保証金 1ヶ月/--
償却 1ヶ月/--
小田急小田原線 / 祖師ヶ谷大蔵駅 徒歩25分
京王線・京王新線 / 仙川駅 徒歩28分
- こちらの物件のお問い合わせはタウンハウジングまで♪
女性におすすめのポイント クラッサ成城 3階/東京都世田谷区成城7丁目
このお部屋は、小田急小田原線成城学園前駅から徒歩15分に位置するマンションです。また、成城学園前駅や、祖師ヶ谷大蔵駅などの複数駅が利用できるのでアクセスも便利です!
このお部屋はお風呂とトイレが別なので、それぞれ清潔&おしゃれにこだわることができます。また2階以上にあるお部屋で、路面から室内が見られないので女性の一人暮らしでも少し安心。
この建物はオートロックがあるので基本的には住人以外は入れないので安心ですね!
スーパーやコンビニが徒歩分圏内に6件あるので一人暮らしに便利。最も近いのは徒歩6分の所にある、セブンイレブン成城8丁目店!
もっと見る ▼
-
即入居 -
バス・
トイレ別 -
独立
洗面台 -
オートロック -
2階以上 -
システム
キッチン -
コンロ
二口 -
クロー
ゼット -
室内洗濯
機置き場
この物件に無料でお問合せ お問合せ内容を選択してね!
-
電話でお問合せ
03-5456-9988 -
株式会社タウンハウジング東京
渋谷道玄坂店
営業時間:10時~19時
基本物件情報 クラッサ成城 3階/東京都世田谷区成城7丁目
- 家賃/管理費
- 15.2万円/8,000円
- 敷金(保証金)/ 礼金(償却)
- 1ヶ月(--)/1ヶ月(--)
- 初期費用が気になる方は
お気軽にお問合せください! -
初期費用を株式会社タウンハウジング東京渋谷道玄坂店に聞いてみる!
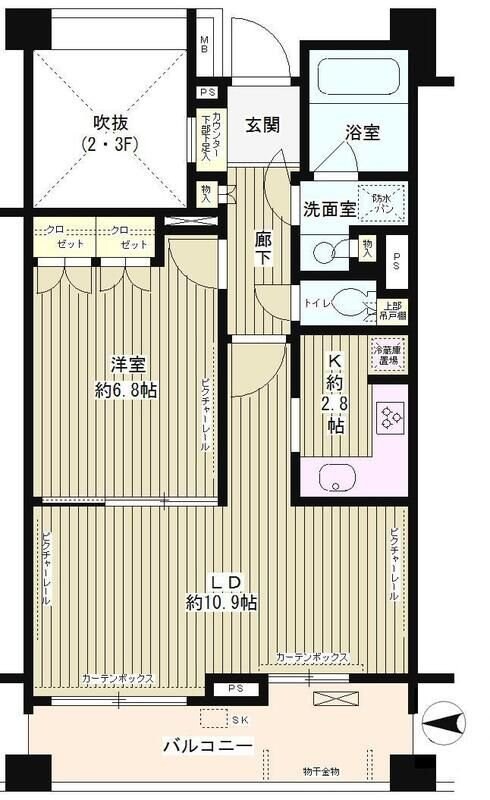
- 間取り/面積
-
1LDK
/47.46㎡
- 築年
- 2002年03月(築23年)
- 交通
-
小田急小田原線 / 成城学園前駅 徒歩15分
小田急小田原線 / 祖師ヶ谷大蔵駅 徒歩25分
京王線・京王新線 / 仙川駅 徒歩28分
- 所在地
-
東京都 世田谷区 成城 7丁目
地図・周辺情報を見る
- 階数/方位
- 3階(4階建て・地下1階)
- 空室数
- 同じ建物に空室があと10件あります
空室を見る
- 種別/構造
- マンション/鉄筋コンクリート造
-
電話でお問合せ
03-5456-9988
こだわり設備・特徴 クラッサ成城 3階/東京都世田谷区成城7丁目
- 入居時期・条件
-
即入居
/
保証人不要
/
二人入居可
/
楽器相談可
/
独身可
- バス・トイレ
- 洗面所にドア / 洗面所独立 / 洗面台 / バス・トイレ別 / 脱衣所 / シャワー / 浴室乾燥機
- セキュリティ
- オートロック / 宅配ボックス / TVモニターフォン / インターホン
- 周辺環境
- 2沿線利用可 / 閑静な住宅地 / 3駅利用可
- 収納
- 玄関収納 / シューズボックス1ヵ所 / クローゼット2ヵ所
- 位置
- 上階無し
- 放送・通信
-
※BS受信可
/
※CS受信可
/
光ファイバー
/
※CATV
※インターネット接続環境、BS受信可、CATV、CS受信可について…利用料金は、共益費に含まれるタイプや個別に契約するタイプなど物件により異なります。詳しくは、物件お取り扱い不動産会社にお問合せください。
- その他設備・サービス
- 給湯 / 室内洗濯機置場 / 冷房 / 玄関ホール / 都市ガス / 陽当り良好 / バルコニー / エレベーター1基 / 追い焚き機能 / 公営上水道 / エアコン1台 / 一部床暖房 / 敷地内ごみ置き場 / 全居室フローリング / LDK12畳以上
- 建物タイプ・デザイン
- 外壁タイル張り
- 家賃保証会社など
- 保証会社必加入(その他:0.5ヶ月)※初回保証料:総賃料の50%
- 保険
- 損害保険加入要。
- 備考
- ★お部屋探しはタウンハウジングへ★創業46年の信頼と、首都圏直営139店舗のネットワークで、お客様のご要望にお応えします
- その他諸費用
- その他費用(鍵交換:33000円)
- 契約期間
- 一般契約:2年0ヶ月間
- 更新料
- 1ヶ月
- 取引形態
- 一般媒介
- 物件管理コード
- C01009087-000000453176036-0001
- 情報更新日
- 2026/01/19
- 次回更新予定日
- 2026/02/02
この物件に無料でお問合せ お問合せ内容を選択してね!
-
電話でお問合せ
03-5456-9988 -
株式会社タウンハウジング東京
渋谷道玄坂店
営業時間:10時~19時
-
電話でお問合せ
03-5456-9988
物件についてお問合せ クラッサ成城 3階/東京都世田谷区成城7丁目
【掲載物件情報について】
Woman.CHINTAIでは安心してお部屋探しのできるサイトを目指して、物件情報の精度向上に努めております。Woman.CHINTAIに掲載されている物件情報について万が一相違がございましたら、以下のページからご連絡ください
お問い合わせページ同じ建物の空室情報一覧 クラッサ成城 3階/東京都世田谷区成城7丁目
-
- 1階 105号室
- 家賃
-
16
万円
(管理費等 8,000円)
- 管理費
- 8,000円
- 敷金/保証金
- 1ヶ月/--
- 礼金/償却
- 1.5ヶ月/--
- 間取り
- 1LDK
- 専有面積
- 45.45㎡
- その他
- 西向き
-
- 1階 105号室
- 家賃
-
16
万円
(管理費等 8,000円)
- 管理費
- 8,000円
- 敷金/保証金
- 1ヶ月/--
- 礼金/償却
- 1.5ヶ月/--
- 間取り
- 1LDK
- 専有面積
- 45.45㎡
- その他
- 西向き
-
- 1階 105号室
- 家賃
-
16
万円
(管理費等 8,000円)
- 管理費
- 8,000円
- 敷金/保証金
- 1ヶ月/--
- 礼金/償却
- 1.5ヶ月/--
- 間取り
- 1LDK
- 専有面積
- 45.45㎡
- その他
- 西向き
-
- 1階 105号室
- 家賃
-
16
万円
(管理費等 8,000円)
- 管理費
- 8,000円
- 敷金/保証金
- 1ヶ月/--
- 礼金/償却
- 1.5ヶ月/--
- 間取り
- 1LDK
- 専有面積
- 45.45㎡
- その他
- 西向き
-
- 1階 105号室
- 家賃
-
16
万円
(管理費等 8,000円)
- 管理費
- 8,000円
- 敷金/保証金
- 1ヶ月/--
- 礼金/償却
- 1.5ヶ月/--
- 間取り
- 1LDK
- 専有面積
- 45.45㎡
- その他
- 西向き
-
- 1階 105号室
- 家賃
-
16
万円
(管理費等 8,000円)
- 管理費
- 8,000円
- 敷金/保証金
- 1ヶ月/--
- 礼金/償却
- 1.5ヶ月/--
- 間取り
- 1LDK
- 専有面積
- 45.45㎡
- その他
- 西向き
-
- 1階 105号室
- 家賃
-
16
万円
(管理費等 8,000円)
- 管理費
- 8,000円
- 敷金/保証金
- 1ヶ月/--
- 礼金/償却
- 1.5ヶ月/--
- 間取り
- 1LDK
- 専有面積
- 45.45㎡
- その他
- 西向き
-
- 1階 105号室
- 家賃
-
16
万円
(管理費等 8,000円)
- 管理費
- 8,000円
- 敷金/保証金
- 1ヶ月/--
- 礼金/償却
- 1.5ヶ月/--
- 間取り
- 1LDK
- 専有面積
- 45.45㎡
- その他
- 西向き
取扱い店舗 クラッサ成城 3階/東京都世田谷区成城7丁目
-
株式会社タウンハウジング東京 渋谷道玄坂店
お問合せ番号:R00453-176036
国土交通大臣免許(1)第009926号- 東京都渋谷区道玄坂2丁目 6-14 ホマレヤビル8階
- 山手線 /渋谷駅
- 営業時間:10時~19時
- 定休日:水曜日
メールでお問合せする 電話でお問合せ
03-5456-9988
選択した物件をまとめて
建物ごとに探す
クラッサ成城 3階と同じ最寄り駅にある物件
クラッサ成城 3階と同じエリアにある物件
設備・条件から世田谷区の物件を再検索
設備・条件から成城学園前駅の物件を再検索
設備・条件から祖師ヶ谷大蔵駅の物件を再検索
設備・条件から仙川駅の物件を再検索































一人暮らしの女性に嬉しいポイントはこちら!