トリニティー芝浦 16階/東京都港区芝浦4丁目(田町駅)の賃貸物件詳細
- 即入居可
-
空室状況を
聞いてみる -
電話でお問合せ
03-3436-1537
- お部屋の状況を確認する(無料)
-
電話でお問合せ
03-3436-1537
保証金 1ヶ月/--
償却 2ヶ月/--
都営浅草線 / 泉岳寺駅 徒歩17分
都営三田線 / 三田駅 徒歩14分
ゆりかもめ / 芝浦ふ頭駅 徒歩16分
- タウンハウジングでご予約受付中です!
女性におすすめのポイント トリニティー芝浦 16階/東京都港区芝浦4丁目
このお部屋は、山手線田町駅から徒歩8分に位置するマンションです。また、田町駅や、泉岳寺駅などの複数駅が利用できるのでアクセスも便利です!
このお部屋はお風呂とトイレが別なので、それぞれ清潔&おしゃれにこだわることができます。また2階以上にあるお部屋で、路面から室内が見られないので女性の一人暮らしでも少し安心。
この建物はオートロックがあるので基本的には住人以外は入れないので安心ですね!
スーパーやコンビニが徒歩分圏内に4件あるので一人暮らしに便利。最も近いのは徒歩3分の所にある、ローソン!
もっと見る ▼
-
即入居 -
女子割 -
バス・
トイレ別 -
独立
洗面台 -
オートロック -
2階以上 -
システム
キッチン -
コンロ
二口 -
クロー
ゼット -
室内洗濯
機置き場
この物件に無料でお問合せ お問合せ内容を選択してね!
-
電話でお問合せ
03-3436-1537 -
株式会社タウンハウジング東京
浜松町店
営業時間:10時~19時
基本物件情報 トリニティー芝浦 16階/東京都港区芝浦4丁目
- 家賃/管理費
- 19.9万円/7,100円
- 敷金(保証金)/ 礼金(償却)
- 1ヶ月(--)/2ヶ月(--)
- 初期費用が気になる方は
お気軽にお問合せください! -
初期費用を株式会社タウンハウジング東京浜松町店に聞いてみる!
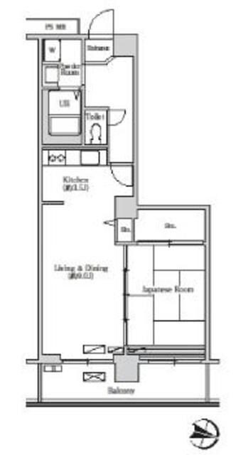
- 間取り/面積
-
1LDK
/51.19㎡
- 築年
- 1988年06月(築37年)
- 交通
-
山手線 / 田町駅 徒歩8分
都営浅草線 / 泉岳寺駅 徒歩17分
都営三田線 / 三田駅 徒歩14分
ゆりかもめ / 芝浦ふ頭駅 徒歩16分
- 所在地
-
東京都 港区 芝浦 4丁目
地図・周辺情報を見る
- 階数/方位
- 16階(24階建て)
/東向き
- 空室数
- 同じ建物に空室があと10件あります
空室を見る
- 種別/構造
- マンション/鉄筋コンクリート造
-
電話でお問合せ
03-3436-1537
こだわり設備・特徴 トリニティー芝浦 16階/東京都港区芝浦4丁目
- 入居時期・条件
-
即入居
/
保証人不要
/
二人入居可
/
独身可
- セキュリティ
- オートロック / 防犯カメラ / TVモニターフォン / インターホン
- 周辺環境
- 平坦地
- 収納
- シューズボックス1ヵ所 / トランクルーム / クローゼット1ヵ所
- 位置
- 高層階
- 放送・通信
-
※BS受信可
/
光ファイバー
/
※CATV
※インターネット接続環境、BS受信可、CATV、CS受信可について…利用料金は、共益費に含まれるタイプや個別に契約するタイプなど物件により異なります。詳しくは、物件お取り扱い不動産会社にお問合せください。
- その他設備・サービス
- 給湯 / 室内洗濯機置場 / 振分タイプ / 玄関ホール / 眺望良好 / 都市ガス / 陽当り良好 / バルコニー / 追い焚き機能 / エレベーター2基 / 公営上水道 / エアコン1台 / 一部床暖房 / 敷地内ごみ置き場 / 一部フローリング / LDK12畳以上
- 建物タイプ・デザイン
- 外壁タイル張り / タワーマンション
- 駐輪・駐車
-
有料駐車場1 台(48,400円/月)
自転車置き場
※駐車場の金額表示は1台分の表示となります。
- 家賃保証会社など
- 保証会社必加入(その他:実費)※加入料:総賃料(賃料+共益費+駐輪料)の50% 更新料:1年ごとに総賃料の25%利用設備(駐車場・バ
- 保険
- 損害保険加入要。
- 備考
- 初期費用クレジット決済可(一部)/IT重説対応/オンライン相談・内見可
- その他諸費用
- その他費用(鍵発行手数料:22000円) / その他費用(床暖房登録料:1100円) / その他費用(床暖房費:220円)
- 契約期間
- 一般契約:2年0ヶ月間
- 更新料
- 1ヶ月
- 取引形態
- 一般媒介
- 物件管理コード
- C01009083-000001204302376-0001
- 情報更新日
- 2025/12/17
- 次回更新予定日
- 2026/01/09
この物件に無料でお問合せ お問合せ内容を選択してね!
-
電話でお問合せ
03-3436-1537 -
株式会社タウンハウジング東京
浜松町店
営業時間:10時~19時
-
電話でお問合せ
03-3436-1537
物件についてお問合せ トリニティー芝浦 16階/東京都港区芝浦4丁目
【掲載物件情報について】
Woman.CHINTAIでは安心してお部屋探しのできるサイトを目指して、物件情報の精度向上に努めております。Woman.CHINTAIに掲載されている物件情報について万が一相違がございましたら、以下のページからご連絡ください
お問い合わせページ同じ建物の空室情報一覧 トリニティー芝浦 16階/東京都港区芝浦4丁目
-
- 7階 0704号室
- 家賃
-
13.5
万円
(管理費等 7,100円)
- 管理費
- 7,100円
- 敷金/保証金
- 1ヶ月/--
- 礼金/償却
- 2ヶ月/--
- 間取り
- 1DK
- 専有面積
- 34.49㎡
- その他
- 東向き
-
- 7階 0704号室
- 家賃
-
13.5
万円
(管理費等 7,100円)
- 管理費
- 7,100円
- 敷金/保証金
- 1ヶ月/--
- 礼金/償却
- 2ヶ月/--
- 間取り
- 1DK
- 専有面積
- 34.49㎡
- その他
- 東向き
-
- 16階 1604号室
- 家賃
-
19.9
万円
(管理費等 7,100円)
- 管理費
- 7,100円
- 敷金/保証金
- 1ヶ月/--
- 礼金/償却
- 2ヶ月/--
- 間取り
- 1LDK
- 専有面積
- 51.19㎡
- その他
- 東向き
取扱い店舗 トリニティー芝浦 16階/東京都港区芝浦4丁目
-
株式会社タウンハウジング東京 浜松町店
お問合せ番号:R01204-302376
国土交通大臣免許(1)第009926号- 東京都港区芝大門2丁目 3-2 第2大吉ビル 1F
- 山手線 /浜松町駅
- 営業時間:10時~19時
- 定休日:水曜日
選択した物件をまとめて
建物ごとに探す
トリニティー芝浦 16階と同じ最寄り駅にある物件
トリニティー芝浦 16階と同じエリアにある物件
設備・条件から港区の物件を再検索
設備・条件から田町駅の物件を再検索
設備・条件から泉岳寺駅の物件を再検索
設備・条件から三田駅の物件を再検索
設備・条件から芝浦ふ頭駅の物件を再検索




























一人暮らしの女性に嬉しいポイントはこちら!