PREMIUM CUBE 亀戸 8階/東京都江東区亀戸3丁目(亀戸駅)の賃貸物件詳細
- 新着
-
空室状況を
聞いてみる -
電話でお問合せ
03-3436-1537
- お部屋の状況を確認する(無料)
-
電話でお問合せ
03-3436-1537
保証金 1ヶ月/--
償却 1ヶ月/1ヶ月
半蔵門線 / 錦糸町駅 徒歩16分
都営浅草線 / 押上駅 徒歩20分
- タウンハウジングでご予約受付中です!
女性におすすめのポイント PREMIUM CUBE 亀戸 8階/東京都江東区亀戸3丁目
このお部屋は、総武線亀戸駅から徒歩8分に位置するマンションです。また、亀戸駅や、錦糸町駅などの複数駅が利用できるのでアクセスも便利です!
このお部屋はお風呂とトイレが別なので、それぞれ清潔&おしゃれにこだわることができます。また2階以上にあるお部屋で、路面から室内が見られないので女性の一人暮らしでも少し安心。
この建物はオートロックがあるので基本的には住人以外は入れないので安心ですね!
嬉しいのがこのお部屋はネットの料金が無料なところ。動画なども見放題ですね!
スーパーやコンビニが徒歩分圏内に4件あるので一人暮らしに便利。最も近いのは徒歩3分の所にある、旬鮮食品館カズン亀戸店!
もっと見る ▼
-
即入居 -
女子割 -
バス・
トイレ別 -
独立
洗面台 -
オートロック -
2階以上 -
システム
キッチン -
コンロ
二口 -
クロー
ゼット -
室内洗濯
機置き場
この物件に無料でお問合せ お問合せ内容を選択してね!
-
電話でお問合せ
03-3436-1537 -
株式会社タウンハウジング東京
浜松町店
営業時間:10時~19時
基本物件情報 PREMIUM CUBE 亀戸 8階/東京都江東区亀戸3丁目
- 家賃/管理費
- 12万円/15,000円
- 敷金(保証金)/ 礼金(償却)
- 1ヶ月(--)/1ヶ月(1ヶ月)
- 初期費用が気になる方は
お気軽にお問合せください! -
初期費用を株式会社タウンハウジング東京浜松町店に聞いてみる!
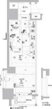
- 間取り/面積
-
2K/29.78㎡
- 築年
- 2022年11月(築3年)
- 交通
-
総武線 / 亀戸駅 徒歩8分
半蔵門線 / 錦糸町駅 徒歩16分
都営浅草線 / 押上駅 徒歩20分
- 所在地
-
東京都 江東区 亀戸 3丁目
地図・周辺情報を見る
- 階数/方位
- 8階(15階建て)
/東向き
- 空室数
- 同じ建物に空室があと10件あります
空室を見る
- 種別/構造
- マンション/鉄筋コンクリート造
-
電話でお問合せ
03-3436-1537
こだわり設備・特徴 PREMIUM CUBE 亀戸 8階/東京都江東区亀戸3丁目
- 入居時期・条件
-
空予定(2026年02月上旬)※1/23
/
保証人不要
/
ペット相談可
(飼育の場合:敷金1ヶ月増)
/
二人入居可
/
独身可
- セキュリティ
- オートロック / 防犯カメラ / 宅配ボックス / TVモニターフォン / インターホン
- 周辺環境
- 駅まで平坦 / 3沿線利用可 / 閑静な住宅地 / 3駅利用可
- 収納
- 玄関収納 / シューズボックス1ヵ所 / クローゼット1ヵ所
- 位置
- 角部屋
- 放送・通信
-
※BS受信可
/
インターネット接続(月額利用料無料)
/
※CS受信可
/
マルチメディアコンセント
/
ネット専用回線
※インターネット接続環境、BS受信可、CATV、CS受信可について…利用料金は、共益費に含まれるタイプや個別に契約するタイプなど物件により異なります。詳しくは、物件お取り扱い不動産会社にお問合せください。
- その他設備・サービス
- 給湯 / 室内洗濯機置場 / 冷房 / 通風良好 / 都市ガス / バルコニー / エレベーター1基 / 2面採光 / 照明1台 / エアコン1台 / 24時間換気システム / 敷地内ごみ置き場 / 人感照明センサー / 全居室フローリング
- 建物タイプ・デザイン
- 外壁タイル張り / デザイナーズ
- 駐輪・駐車
- 自転車置き場
- 家賃保証会社など
- 保証会社必加入(その他:0.5ヶ月)
- 保険
- 損害保険加入要。
- 備考
- 初期費用クレジット決済可(一部)/IT重説対応/オンライン相談・内見可
- その他諸費用
- 敷金積み増し(ペット飼育:1ヶ月) / その他費用(鍵交換:22000円) / その他費用(契約事務手数料:11000円) / その他費用(室内抗菌処理代:17600円) / その他費用(入居中サポート:21450円)
- 契約期間
- 一般契約:2年0ヶ月間
- 更新料
- 1.5ヶ月
- 取引形態
- 一般媒介
- 物件管理コード
- C01009083-000001204302084-0001
- 情報更新日
- 2025/12/03
- 次回更新予定日
- 2025/12/17
この物件に無料でお問合せ お問合せ内容を選択してね!
-
電話でお問合せ
03-3436-1537 -
株式会社タウンハウジング東京
浜松町店
営業時間:10時~19時
-
電話でお問合せ
03-3436-1537
物件についてお問合せ PREMIUM CUBE 亀戸 8階/東京都江東区亀戸3丁目
【掲載物件情報について】
Woman.CHINTAIでは安心してお部屋探しのできるサイトを目指して、物件情報の精度向上に努めております。Woman.CHINTAIに掲載されている物件情報について万が一相違がございましたら、以下のページからご連絡ください
お問い合わせページ同じ建物の空室情報一覧 PREMIUM CUBE 亀戸 8階/東京都江東区亀戸3丁目
取扱い店舗 PREMIUM CUBE 亀戸 8階/東京都江東区亀戸3丁目
-
株式会社タウンハウジング東京 浜松町店
お問合せ番号:R01204-302084
国土交通大臣免許(1)第009926号- 東京都港区芝大門2丁目 3-2 第2大吉ビル 1F
- 山手線 /浜松町駅
- 営業時間:10時~19時
- 定休日:水曜日
メールでお問合せする 電話でお問合せ
03-3436-1537
選択した物件をまとめて
建物ごとに探す
PREMIUM CUBE 亀戸 8階と同じ最寄り駅にある物件
PREMIUM CUBE 亀戸 8階と同じエリアにある物件
設備・条件から江東区の物件を再検索
設備・条件から亀戸駅の物件を再検索
設備・条件から錦糸町駅の物件を再検索
設備・条件から押上駅の物件を再検索























一人暮らしの女性に嬉しいポイントはこちら!