ベルシード志村坂上 5階/東京都板橋区小豆沢4丁目(志村坂上駅)の賃貸物件詳細
-
空室状況を
聞いてみる -
電話でお問合せ
03-3576-6810
- お部屋の状況を確認する(無料)
-
電話でお問合せ
03-3576-6810
保証金 --/--
償却 2ヶ月/--
埼京線・川越線 / 北赤羽駅 徒歩12分
都営三田線 / 本蓮沼駅 徒歩19分
京浜東北線・根岸線 / 赤羽駅 徒歩24分
- ★お部屋探しはタウンハウジングにお任せください★
女性におすすめのポイント ベルシード志村坂上 5階/東京都板橋区小豆沢4丁目
このお部屋は、都営三田線志村坂上駅から徒歩10分に位置するマンションです。また、志村坂上駅や、北赤羽駅などの複数駅が利用できるのでアクセスも便利です!
このお部屋はお風呂とトイレが別なので、それぞれ清潔&おしゃれにこだわることができます。また2階以上にあるお部屋で、路面から室内が見られないので女性の一人暮らしでも少し安心。
この建物はオートロックがあるので基本的には住人以外は入れないので安心ですね!
嬉しいのがこのお部屋は敷金がないところ。初期費用が抑えられますね!
スーパーやコンビニが徒歩分圏内に5件あるので一人暮らしに便利。最も近いのは徒歩4分の所にある、いなげや板橋小豆沢店!
もっと見る ▼
-
即入居 -
女子割 -
バス・
トイレ別 -
独立
洗面台 -
オートロック -
2階以上 -
システム
キッチン -
コンロ
二口 -
クロー
ゼット -
室内洗濯
機置き場
この物件に無料でお問合せ お問合せ内容を選択してね!
-
電話でお問合せ
03-3576-6810 -
株式会社タウンハウジング東京
板橋店
営業時間:10:00~19:00
基本物件情報 ベルシード志村坂上 5階/東京都板橋区小豆沢4丁目
- 家賃/管理費
- 8.7万円/15,000円
- 敷金(保証金)/ 礼金(償却)
- --(--)/2ヶ月(--)
- 初期費用が気になる方は
お気軽にお問合せください! -
初期費用を株式会社タウンハウジング東京板橋店に聞いてみる!
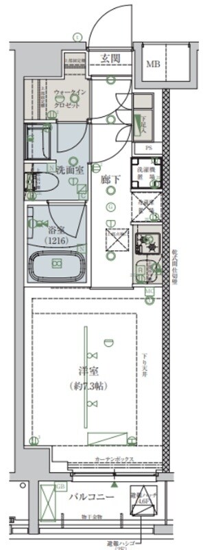
- 間取り/面積
-
1K
/26.7㎡
- 築年
- 2017年09月(築8年)
- 交通
-
都営三田線 / 志村坂上駅 徒歩10分
埼京線・川越線 / 北赤羽駅 徒歩12分
都営三田線 / 本蓮沼駅 徒歩19分
京浜東北線・根岸線 / 赤羽駅 徒歩24分
- 所在地
-
東京都 板橋区 小豆沢 4丁目
地図・周辺情報を見る
- 階数/方位
- 5階(6階建て)
/西向き
- 空室数
- 同じ建物に空室があと4件あります
空室を見る
- 種別/構造
- マンション/鉄筋コンクリート造
-
電話でお問合せ
03-3576-6810
こだわり設備・特徴 ベルシード志村坂上 5階/東京都板橋区小豆沢4丁目
- 入居時期・条件
-
応相談※詳細はお問い合わせください
/
保証人不要
/
ペット相談可
(飼育の場合:敷金1ヶ月増)
/
独身可
- 周辺環境
- 2沿線利用可 / 閑静な住宅地 / 2駅利用可
- 収納
- 玄関収納 / シューズボックス1ヵ所 / ウォークインクローゼット1ヵ所
- 放送・通信
-
※BS受信可
/
※CS受信可
/
光ファイバー
/
※CATV
/
ネット専用回線
※インターネット接続環境、BS受信可、CATV、CS受信可について…利用料金は、共益費に含まれるタイプや個別に契約するタイプなど物件により異なります。詳しくは、物件お取り扱い不動産会社にお問合せください。
- その他設備・サービス
- 給湯 / 耐震構造 / 24時間ゴミ出し可 / 室内洗濯機置場 / 冷房 / 玄関ホール / 都市ガス / 陽当り良好 / バルコニー / エレベーター1基 / 公営上水道 / エアコン1台 / 24時間換気システム / 敷地内ごみ置き場 / 全居室フローリング
- 建物タイプ・デザイン
- 分譲賃貸
- 駐輪・駐車
- 自転車置き場
- 家賃保証会社など
- 保証会社必加入(その他:0.5ヶ月)
- 保険
- --
- 備考
- 豊島区・板橋区・北区でのお部屋探しはタウンハウジングにお任せください。
- その他諸費用
- 敷金積み増し(ペット飼育:1ヶ月) / その他費用(鍵交換:33000円) / その他費用(室内抗菌代:13000円) / その他費用(ベルプラス:2200円)
- 契約期間
- 一般契約:2年0ヶ月間
- 更新料
- 1.5ヶ月
- 取引形態
- 一般媒介
- 物件管理コード
- C01008932-000001142081234-0001
- 情報更新日
- 2025/12/10
- 次回更新予定日
- 2025/12/24
この物件に無料でお問合せ お問合せ内容を選択してね!
-
電話でお問合せ
03-3576-6810 -
株式会社タウンハウジング東京
板橋店
営業時間:10:00~19:00
-
電話でお問合せ
03-3576-6810
物件についてお問合せ ベルシード志村坂上 5階/東京都板橋区小豆沢4丁目
【掲載物件情報について】
Woman.CHINTAIでは安心してお部屋探しのできるサイトを目指して、物件情報の精度向上に努めております。Woman.CHINTAIに掲載されている物件情報について万が一相違がございましたら、以下のページからご連絡ください
お問い合わせページ同じ建物の空室情報一覧 ベルシード志村坂上 5階/東京都板橋区小豆沢4丁目
取扱い店舗 ベルシード志村坂上 5階/東京都板橋区小豆沢4丁目
-
株式会社タウンハウジング東京 板橋店
お問合せ番号:R01142-081234
国土交通大臣免許(1)第9926号女性スタッフ対応- 東京都北区滝野川7丁目 9-7
- 埼京線・川越線 /板橋駅
- 営業時間:10:00~19:00
- 定休日:水曜日
選択した物件をまとめて
建物ごとに探す
ベルシード志村坂上 5階と同じ最寄り駅にある物件
ベルシード志村坂上 5階と同じエリアにある物件
設備・条件から板橋区の物件を再検索
設備・条件から志村坂上駅の物件を再検索
設備・条件から北赤羽駅の物件を再検索
設備・条件から本蓮沼駅の物件を再検索
設備・条件から赤羽駅の物件を再検索

























一人暮らしの女性に嬉しいポイントはこちら!