GRANPASEO田端D 2階/東京都北区田端新町2丁目(赤土小学校前駅)の賃貸物件詳細
-
空室状況を
聞いてみる -
電話でお問合せ
03-3576-6810
- お部屋の状況を確認する(無料)
-
電話でお問合せ
03-3576-6810
保証金 1ヶ月/--
償却 1ヶ月/--
京浜東北線・根岸線 / 田端駅 徒歩9分
京成本線 / 新三河島駅 徒歩11分
都営日暮里・舎人ライナー / 熊野前駅 徒歩13分
- ★お部屋探しはタウンハウジングにお任せください★
女性におすすめのポイント GRANPASEO田端D 2階/東京都北区田端新町2丁目
このお部屋は、都営日暮里・舎人ライナー赤土小学校前駅から徒歩6分に位置するマンションです。また、赤土小学校前駅や、田端駅などの複数駅が利用できるのでアクセスも便利です!
このお部屋はお風呂とトイレが別なので、それぞれ清潔&おしゃれにこだわることができます。また2階以上にあるお部屋で、路面から室内が見られないので女性の一人暮らしでも少し安心。
この建物はオートロックがあるので基本的には住人以外は入れないので安心ですね!
スーパーやコンビニが徒歩分圏内に6件あるので一人暮らしに便利。最も近いのは徒歩2分の所にある、ローソン田端新町2丁目店!
もっと見る ▼
-
即入居 -
女子割 -
バス・
トイレ別 -
独立
洗面台 -
オートロック -
2階以上 -
システム
キッチン -
コンロ
二口 -
クロー
ゼット -
室内洗濯
機置き場
この物件に無料でお問合せ お問合せ内容を選択してね!
-
電話でお問合せ
03-3576-6810 -
株式会社タウンハウジング東京
板橋店
営業時間:10:00~19:00
基本物件情報 GRANPASEO田端D 2階/東京都北区田端新町2丁目
- 家賃/管理費
- 11.6万円/15,000円
- 敷金(保証金)/ 礼金(償却)
- 1ヶ月(--)/1ヶ月(--)
- 初期費用が気になる方は
お気軽にお問合せください! -
初期費用を株式会社タウンハウジング東京板橋店に聞いてみる!
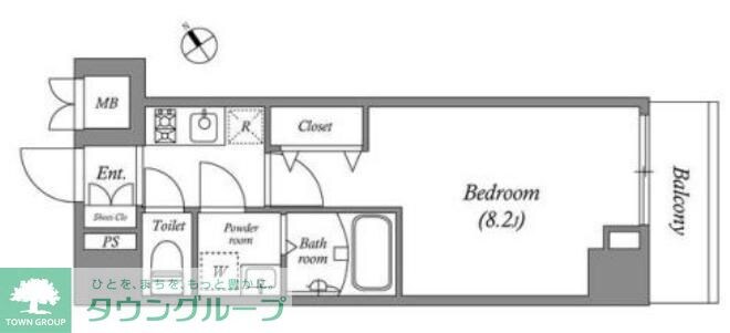
- 間取り/面積
-
1K
/25.5㎡
- 築年
- 2021年03月(築4年)
- 交通
-
都営日暮里・舎人ライナー / 赤土小学校前駅 徒歩6分
京浜東北線・根岸線 / 田端駅 徒歩9分
京成本線 / 新三河島駅 徒歩11分
都営日暮里・舎人ライナー / 熊野前駅 徒歩13分
- 所在地
-
東京都 北区 田端新町 2丁目
地図・周辺情報を見る
- 階数/方位
- 2階(7階建て)
/南東向き
- 空室数
- 同じ建物に空室があと9件あります
空室を見る
- 種別/構造
- マンション/鉄筋コンクリート造
-
電話でお問合せ
03-3576-6810
こだわり設備・特徴 GRANPASEO田端D 2階/東京都北区田端新町2丁目
- 入居時期・条件
-
空予定(2025年12月下旬)
/
保証人不要
/
ペット相談可
(飼育の場合:敷金1ヶ月増)
- キッチン
- システムキッチン / コンロ2口以上
- 周辺環境
- 2沿線利用可 / 2駅利用可
- 収納
- シューズボックス1ヵ所 / クローゼット1ヵ所
- 放送・通信
-
※BS受信可
/
※CS受信可
※インターネット接続環境、BS受信可、CATV、CS受信可について…利用料金は、共益費に含まれるタイプや個別に契約するタイプなど物件により異なります。詳しくは、物件お取り扱い不動産会社にお問合せください。
- その他設備・サービス
- 給湯 / 室内洗濯機置場 / フローリング / バルコニー / エレベーター1基 / 公営上水道 / エアコン1台 / 人感照明センサー
- 駐輪・駐車
- 自転車置き場
- 家賃保証会社など
- 保証会社必加入(その他:0.4ヶ月)※■第一保証会社:エポス(初回料:40%、月次:無、更新料:10000円/1年 or 14000円/1年)■第二保証会社:JRAG(初回料:70%、月次:無、更新料:10000円/1年)
- 保険
- 損害保険加入要。
- 備考
- 豊島区・板橋区・北区でのお部屋探しはタウンハウジングにお任せください。
- その他諸費用
- 付属設備(駐輪場代金:220円)※月あたり料金 / 敷金積み増し(ペット飼育:1ヶ月) / 退去時必須(退去時RC代:38500円) / 退去時必須(エアコン清掃費1基辺り:15000円) / その他費用(鍵交換:22000円)
- 契約期間
- 一般契約:2年0ヶ月間
- 更新料
- 1ヶ月
- 取引形態
- 一般媒介
- 物件管理コード
- C01008932-000001142079803-0001
- 情報更新日
- 2025/12/09
- 次回更新予定日
- 2025/12/23
この物件に無料でお問合せ お問合せ内容を選択してね!
-
電話でお問合せ
03-3576-6810 -
株式会社タウンハウジング東京
板橋店
営業時間:10:00~19:00
-
電話でお問合せ
03-3576-6810
物件についてお問合せ GRANPASEO田端D 2階/東京都北区田端新町2丁目
【掲載物件情報について】
Woman.CHINTAIでは安心してお部屋探しのできるサイトを目指して、物件情報の精度向上に努めております。Woman.CHINTAIに掲載されている物件情報について万が一相違がございましたら、以下のページからご連絡ください
お問い合わせページ同じ建物の空室情報一覧 GRANPASEO田端D 2階/東京都北区田端新町2丁目
-
- 1階 102号室
- 家賃
-
11
万円
(管理費等 15,000円)
- 管理費
- 15,000円
- 敷金/保証金
- 115,000円/--
- 礼金/償却
- --/--
- 間取り
- 1K
- 専有面積
- 25.5㎡
- その他
- 東向き
-
- 2階 203号室
- 家賃
-
11.6
万円
(管理費等 15,000円)
- 管理費
- 15,000円
- 敷金/保証金
- 1ヶ月/--
- 礼金/償却
- 1ヶ月/--
- 間取り
- 1K
- 専有面積
- 25.5㎡
- その他
-
- 3階 304号室
- 家賃
-
11.2
万円
(管理費等 15,000円)
- 管理費
- 15,000円
- 敷金/保証金
- 117,000円/--
- 礼金/償却
- 117,000円/--
- 間取り
- 1K
- 専有面積
- 25.5㎡
- その他
- 南東向き
-
- 5階 504号室
- 家賃
-
11.4
万円
(管理費等 15,000円)
- 管理費
- 15,000円
- 敷金/保証金
- 1ヶ月/--
- 礼金/償却
- 1ヶ月/--
- 間取り
- 1K
- 専有面積
- 25.5㎡
- その他
- 南東向き
取扱い店舗 GRANPASEO田端D 2階/東京都北区田端新町2丁目
-
株式会社タウンハウジング東京 板橋店
お問合せ番号:R01142-079803
国土交通大臣免許(1)第9926号女性スタッフ対応- 東京都北区滝野川7丁目 9-7
- 埼京線・川越線 /板橋駅
- 営業時間:10:00~19:00
- 定休日:水曜日
メールでお問合せする 電話でお問合せ
03-3576-6810
選択した物件をまとめて
建物ごとに探す
GRANPASEO田端D 2階と同じ最寄り駅にある物件
GRANPASEO田端D 2階と同じエリアにある物件
設備・条件から北区の物件を再検索
設備・条件から赤土小学校前駅の物件を再検索
設備・条件から田端駅の物件を再検索
設備・条件から新三河島駅の物件を再検索
設備・条件から熊野前駅の物件を再検索









































一人暮らしの女性に嬉しいポイントはこちら!