コンフォリア西荻窪 4階/東京都杉並区西荻南3丁目(西荻窪駅)の賃貸物件詳細
-
空室状況を
聞いてみる -
電話でお問合せ
0422-36-9700
- お部屋の状況を確認する(無料)
-
電話でお問合せ
0422-36-9700
保証金 1ヶ月/--
償却 --/--
京王井の頭線 / 三鷹台駅 徒歩26分
京王井の頭線 / 久我山駅 徒歩26分
- インターネット上の物件はほぼ全てご紹介可能♪まとめてご紹介致します♪お気軽にお問合せください!お部屋探しはタウンハウジングまで☆新着情報毎日更新☆
女性におすすめのポイント コンフォリア西荻窪 4階/東京都杉並区西荻南3丁目
このお部屋は、総武線西荻窪駅から徒歩3分に位置する駅近のマンションです。また、西荻窪駅や、三鷹台駅などの複数駅が利用できるのでアクセスも便利です!
このお部屋はお風呂とトイレが別なので、それぞれ清潔&おしゃれにこだわることができます。また2階以上にあるお部屋で、路面から室内が見られないので女性の一人暮らしでも少し安心。
この建物はオートロックがあるので基本的には住人以外は入れないので安心ですね!
嬉しいのがこのお部屋は礼金がないところ。初期費用が抑えられますね!
スーパーやコンビニが徒歩分圏内に2件あるので一人暮らしに便利。最も近いのは徒歩2分の所にある、グルメシティ西荻店!
もっと見る ▼
-
即入居 -
女子割 -
バス・
トイレ別 -
独立
洗面台 -
オートロック -
2階以上 -
システム
キッチン -
コンロ
二口 -
クロー
ゼット -
室内洗濯
機置き場
この物件に無料でお問合せ お問合せ内容を選択してね!
-
電話でお問合せ
0422-36-9700 -
株式会社タウンハウジング東京
武蔵境店
営業時間:10:00~19:00
基本物件情報 コンフォリア西荻窪 4階/東京都杉並区西荻南3丁目
- 家賃/管理費
- 13.8万円/8,000円
- 敷金(保証金)/ 礼金(償却)
- 1ヶ月(--)/--(--)
- 初期費用が気になる方は
お気軽にお問合せください! -
初期費用を株式会社タウンハウジング東京武蔵境店に聞いてみる!
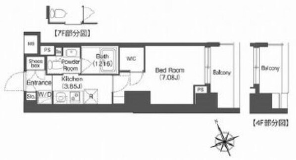
- 間取り/面積
-
1K
/25.18㎡
- 築年
- 2021年02月(築4年)
- 交通
-
総武線 / 西荻窪駅 徒歩3分
京王井の頭線 / 三鷹台駅 徒歩26分
京王井の頭線 / 久我山駅 徒歩26分
- 所在地
-
東京都 杉並区 西荻南 3丁目
地図・周辺情報を見る
- 階数/方位
- 4階(11階建て)
/南東向き
- 空室数
- 同じ建物に空室があと10件あります
空室を見る
- 種別/構造
- マンション/鉄筋コンクリート造
-
電話でお問合せ
0422-36-9700
こだわり設備・特徴 コンフォリア西荻窪 4階/東京都杉並区西荻南3丁目
- 入居時期・条件
-
応相談※詳細はお問い合わせください
/
保証人不要
/
ペット相談可
- セキュリティ
- オートロック / 防犯カメラ / 宅配ボックス / TVモニターフォン / インターホン
- 周辺環境
- 駅まで平坦 / 2沿線利用可
- 収納
- シューズボックス1ヵ所 / ウォークインクローゼット1ヵ所
- 放送・通信
-
※BS受信可
/
インターネット接続(月額利用料無料)
/
※CATV
※インターネット接続環境、BS受信可、CATV、CS受信可について…利用料金は、共益費に含まれるタイプや個別に契約するタイプなど物件により異なります。詳しくは、物件お取り扱い不動産会社にお問合せください。
- その他設備・サービス
- 給湯 / 室内洗濯機置場 / バルコニー / エレベーター1基 / 追い焚き機能 / エアコン1台 / 24時間換気システム / 敷地内ごみ置き場 / 全居室フローリング
- 駐輪・駐車
- 自転車置き場
- 家賃保証会社など
- 保証会社必加入(その他:0.4ヶ月)※実費/初回総賃料 40% 1年毎7,000円/貸主指定保証会社
- 保険
- 損害保険加入要。
- 備考
- インターネット上の物件はほぼ全てご紹介可能♪まとめてご紹介致します♪お気軽にお問合せください!お部屋探しはタウンハウジングまで☆新着情報毎日更新☆経験豊富なスタッフがお待ちしております♪
- その他諸費用
- その他費用(鍵交換:22000円) / その他費用(室内清掃費用:39600円)
- 契約期間
- 一般契約:2年0ヶ月間
- 更新料
- 1ヶ月
- 取引形態
- 一般媒介
- 物件管理コード
- C01008909-000001101087790-0001
- 情報更新日
- 2025/11/30
- 次回更新予定日
- 2025/12/14
この物件に無料でお問合せ お問合せ内容を選択してね!
-
電話でお問合せ
0422-36-9700 -
株式会社タウンハウジング東京
武蔵境店
営業時間:10:00~19:00
-
電話でお問合せ
0422-36-9700
物件についてお問合せ コンフォリア西荻窪 4階/東京都杉並区西荻南3丁目
【掲載物件情報について】
Woman.CHINTAIでは安心してお部屋探しのできるサイトを目指して、物件情報の精度向上に努めております。Woman.CHINTAIに掲載されている物件情報について万が一相違がございましたら、以下のページからご連絡ください
お問い合わせページ同じ建物の空室情報一覧 コンフォリア西荻窪 4階/東京都杉並区西荻南3丁目
取扱い店舗 コンフォリア西荻窪 4階/東京都杉並区西荻南3丁目
-
株式会社タウンハウジング東京 武蔵境店
お問合せ番号:R01101-087790
国土交通大臣免許(1)第9926号- 東京都武蔵野市境 2-2-20藤和シティーコープ1F
- 中央線 /武蔵境駅
- 営業時間:10:00~19:00
- 定休日:水曜日
メールでお問合せする 電話でお問合せ
0422-36-9700
選択した物件をまとめて
建物ごとに探す
コンフォリア西荻窪 4階と同じ最寄り駅にある物件
コンフォリア西荻窪 4階と同じエリアにある物件
設備・条件から杉並区の物件を再検索
設備・条件から西荻窪駅の物件を再検索
設備・条件から三鷹台駅の物件を再検索






















一人暮らしの女性に嬉しいポイントはこちら!