Daffitto三鷹 3階/東京都三鷹市下連雀3丁目(三鷹駅)の賃貸物件詳細
- 即入居可
-
空室状況を
聞いてみる -
電話でお問合せ
0422-20-7800
- お部屋の状況を確認する(無料)
-
電話でお問合せ
0422-20-7800
保証金 1ヶ月/--
償却 1ヶ月/--
京王井の頭線 / 吉祥寺駅 徒歩25分
京王井の頭線 / 井の頭公園駅 徒歩27分
西武多摩川線 / 武蔵境駅 徒歩27分
- お部屋探しはタウンハウジングまで。新着情報毎日更新。明るく元気なスタッフがお待ちしております。
女性におすすめのポイント Daffitto三鷹 3階/東京都三鷹市下連雀3丁目
このお部屋は、総武線三鷹駅から徒歩8分に位置するマンションです。また、三鷹駅や、吉祥寺駅などの複数駅が利用できるのでアクセスも便利です!
このお部屋はお風呂とトイレが別なので、それぞれ清潔&おしゃれにこだわることができます。また2階以上にあるお部屋で、路面から室内が見られないので女性の一人暮らしでも少し安心。
この建物はオートロックがあるので基本的には住人以外は入れないので安心ですね!
嬉しいのがこのお部屋はネットの料金が無料なところ。動画なども見放題ですね!
スーパーやコンビニが徒歩分圏内に2件あるので一人暮らしに便利。最も近いのは徒歩4分の所にある、セブンイレブン下連雀店!
もっと見る ▼
-
即入居 -
女子割 -
バス・
トイレ別 -
独立
洗面台 -
オートロック -
2階以上 -
システム
キッチン -
コンロ
二口 -
クロー
ゼット -
室内洗濯
機置き場
この物件に無料でお問合せ お問合せ内容を選択してね!
-
電話でお問合せ
0422-20-7800 -
株式会社タウンハウジング東京
吉祥寺店
営業時間:10:00~19:00
基本物件情報 Daffitto三鷹 3階/東京都三鷹市下連雀3丁目
- 家賃/管理費
- 9.2万円/8,000円
- 敷金(保証金)/ 礼金(償却)
- 1ヶ月(--)/1ヶ月(--)
- 初期費用が気になる方は
お気軽にお問合せください! -
初期費用を株式会社タウンハウジング東京吉祥寺店に聞いてみる!
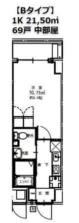
- 間取り/面積
-
1K
/21.5㎡
- 築年
- 2007年02月(築18年)
- 交通
-
総武線 / 三鷹駅 徒歩8分
京王井の頭線 / 吉祥寺駅 徒歩25分
京王井の頭線 / 井の頭公園駅 徒歩27分
西武多摩川線 / 武蔵境駅 徒歩27分
- 所在地
-
東京都 三鷹市 下連雀 3丁目
地図・周辺情報を見る
- 階数/方位
- 3階(8階建て)
/西向き
- 空室数
- 同じ建物に空室があと10件あります
空室を見る
- 種別/構造
- マンション/鉄筋コンクリート造
-
電話でお問合せ
0422-20-7800
こだわり設備・特徴 Daffitto三鷹 3階/東京都三鷹市下連雀3丁目
- 入居時期・条件
-
即入居
/
保証人不要
- キッチン
- システムキッチン / IHクッキングヒーター付
- セキュリティ
- オートロック / 防犯カメラ / 宅配ボックス / TVモニターフォン / インターホン
- 周辺環境
- 駅まで平坦 / 2沿線利用可
- 収納
- シューズボックス1ヵ所 / クローゼット1ヵ所
- 位置
- 上階無し
- 放送・通信
-
※BS受信可
/
インターネット接続(月額利用料無料)
/
※CS受信可
/
※CATV
※インターネット接続環境、BS受信可、CATV、CS受信可について…利用料金は、共益費に含まれるタイプや個別に契約するタイプなど物件により異なります。詳しくは、物件お取り扱い不動産会社にお問合せください。
- その他設備・サービス
- 給湯 / 24時間ゴミ出し可 / 室内洗濯機置場 / 眺望良好 / 都市ガス / バルコニー / エレベーター1基 / 全室エアコン / 敷地内ごみ置き場 / 全居室フローリング
- 家賃保証会社など
- 保証会社必加入(その他:0.5ヶ月)※初回:総賃料の50% 月額:総賃料の1%
- 保険
- 損害保険加入要。
- 備考
- お部屋探しはタウンハウジングまで。新着情報毎日更新。明るく元気なスタッフがお待ちしております
- その他諸費用
- その他費用(鍵交換:33000円) / その他費用(室内清掃費用:66000円)
- 契約期間
- 一般契約:2年0ヶ月間
- 更新料
- 1ヶ月
- 取引形態
- 一般媒介
- 物件管理コード
- C01008908-000001100170139-0001
- 情報更新日
- 2025/12/05
- 次回更新予定日
- 2025/12/19
この物件に無料でお問合せ お問合せ内容を選択してね!
-
電話でお問合せ
0422-20-7800 -
株式会社タウンハウジング東京
吉祥寺店
営業時間:10:00~19:00
-
電話でお問合せ
0422-20-7800
物件についてお問合せ Daffitto三鷹 3階/東京都三鷹市下連雀3丁目
【掲載物件情報について】
Woman.CHINTAIでは安心してお部屋探しのできるサイトを目指して、物件情報の精度向上に努めております。Woman.CHINTAIに掲載されている物件情報について万が一相違がございましたら、以下のページからご連絡ください
お問い合わせページ同じ建物の空室情報一覧 Daffitto三鷹 3階/東京都三鷹市下連雀3丁目
取扱い店舗 Daffitto三鷹 3階/東京都三鷹市下連雀3丁目
-
株式会社タウンハウジング東京 吉祥寺店
お問合せ番号:R01100-170139
国土交通大臣免許(1)第9926号- 東京都武蔵野市吉祥寺本町1丁目12-1 安藤ビルクアトロ 2F
- 中央線 /吉祥寺駅
- 営業時間:10:00~19:00
- 定休日:水曜日
選択した物件をまとめて
建物ごとに探す
Daffitto三鷹 3階と同じ最寄り駅にある物件
Daffitto三鷹 3階と同じエリアにある物件
設備・条件から三鷹市の物件を再検索
設備・条件から三鷹駅の物件を再検索
設備・条件から吉祥寺駅の物件を再検索
設備・条件から井の頭公園駅の物件を再検索
設備・条件から武蔵境駅の物件を再検索
























一人暮らしの女性に嬉しいポイントはこちら!