セジョリ東陽町 3階/東京都江東区東陽1丁目(東陽町駅)の賃貸物件詳細
- 即入居可
-
空室状況を
聞いてみる -
電話でお問合せ
03-3689-1511
- お部屋の状況を確認する(無料)
-
電話でお問合せ
03-3689-1511
保証金 --/--
償却 --/--
東西線 / 木場駅 徒歩10分
京葉線 / 潮見駅 徒歩24分
- 情報量ナンバーワンのタウンハウジング西葛西店にお任せ下さい!
女性におすすめのポイント セジョリ東陽町 3階/東京都江東区東陽1丁目
このお部屋は、東西線東陽町駅から徒歩9分に位置するマンションです。また、東陽町駅や、木場駅などの複数駅が利用できるのでアクセスも便利です!
このお部屋はお風呂とトイレが別なので、それぞれ清潔&おしゃれにこだわることができます。また2階以上にあるお部屋で、路面から室内が見られないので女性の一人暮らしでも少し安心。
この建物はオートロックがあるので基本的には住人以外は入れないので安心ですね!
嬉しいのがこのお部屋は礼金がないところ。初期費用が抑えられますね!
スーパーやコンビニが徒歩分圏内に4件あるので一人暮らしに便利。最も近いのは徒歩3分の所にある、まいばすけっと東陽1丁目店!
もっと見る ▼
-
即入居 -
バス・
トイレ別 -
独立
洗面台 -
オートロック -
2階以上 -
システム
キッチン -
コンロ
二口 -
クロー
ゼット -
室内洗濯
機置き場
この物件に無料でお問合せ お問合せ内容を選択してね!
-
電話でお問合せ
03-3689-1511 -
株式会社タウンハウジング東京
西葛西店
営業時間:10:00~19:00
基本物件情報 セジョリ東陽町 3階/東京都江東区東陽1丁目
- 家賃/管理費
- 12.7万円/15,000円
- 敷金(保証金)/ 礼金(償却)
- --(--)/--(--)
- 初期費用が気になる方は
お気軽にお問合せください! -
初期費用を株式会社タウンハウジング東京西葛西店に聞いてみる!
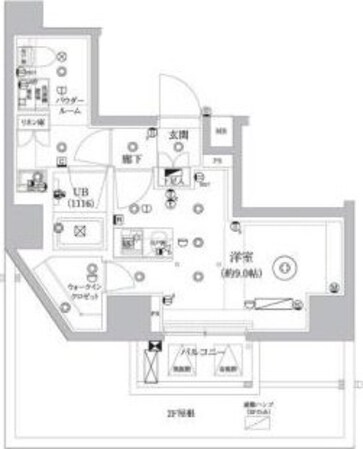
- 間取り/面積
-
1R
/28.59㎡
- 築年
- 2022年09月(築3年)
- 交通
-
東西線 / 東陽町駅 徒歩9分
東西線 / 木場駅 徒歩10分
京葉線 / 潮見駅 徒歩24分
- 所在地
-
東京都 江東区 東陽 1丁目
地図・周辺情報を見る
- 階数/方位
- 3階(7階建て)
/北向き
- 空室数
- 同じ建物に空室があと10件あります
空室を見る
- 種別/構造
- マンション/鉄筋コンクリート造
-
電話でお問合せ
03-3689-1511
こだわり設備・特徴 セジョリ東陽町 3階/東京都江東区東陽1丁目
- 入居時期・条件
-
即入居※9/4
/
保証人不要
/
ペット相談可
(飼育の場合:敷金1ヶ月増)
/
二人入居可
/
外国人可
/
独身可
- セキュリティ
- 24時間緊急通報システム / オートロック / 防犯カメラ / 宅配ボックス / TVモニターフォン / インターホン
- 周辺環境
- 平坦地 / 駅まで平坦 / 2駅利用可
- 収納
- 玄関収納 / シューズボックス1ヵ所 / クローゼット1ヵ所 / ウォークインクローゼット1ヵ所
- 放送・通信
-
※BS受信可
/
インターネット接続(月額利用料無料)
/
※CS受信可
/
光ファイバー
/
※CATV
/
マルチメディアコンセント
※インターネット接続環境、BS受信可、CATV、CS受信可について…利用料金は、共益費に含まれるタイプや個別に契約するタイプなど物件により異なります。詳しくは、物件お取り扱い不動産会社にお問合せください。
- その他設備・サービス
- 室内洗濯機置場 / 冷房 / 通風良好 / 可動間仕切り / 眺望良好 / 都市ガス / バルコニー / エレベーター1基 / 追い焚き機能 / 公営上水道 / 照明1台 / 24時間換気システム / 全室エアコン / 全居室フローリング
- 建物タイプ・デザイン
- 外壁タイル張り
- 駐輪・駐車
-
近隣駐車場1 台※近隣駐車場距離:500m
自転車置き場 / バイク置場
※駐車場の金額表示は1台分の表示となります。
- 家賃保証会社など
- 保証会社必加入(その他:実費)※30%
- 保険
- 損害保険加入要。
- 備考
- 江戸川区・江東区・市川市・浦安市 情報量ナンバーワン!東京メトロ東西線 都営新宿線 JR京葉線でのお部屋探しはタウンハウジング西葛西店にお任せ下さい!ステキなお部屋探しを全力でサポート致します!
- その他諸費用
- 敷金積み増し(ペット飼育:1ヶ月) / その他費用(鍵交換:27500円)
- 契約期間
- 一般契約:2年0ヶ月間
- 更新料
- 1ヶ月
- 取引形態
- 一般媒介
- 物件管理コード
- C01008704-000000512141691-0001
- 情報更新日
- 2026/02/05
- 次回更新予定日
- 2026/02/19
この物件に無料でお問合せ お問合せ内容を選択してね!
-
電話でお問合せ
03-3689-1511 -
株式会社タウンハウジング東京
西葛西店
営業時間:10:00~19:00
-
電話でお問合せ
03-3689-1511
周辺情報 セジョリ東陽町 3階/東京都江東区東陽1丁目
- ショッピングセンター/アウトレットモール
- ショッピングセンター/アウトレットモール(ハニーズ豊洲店)まで 2220m
- ショッピングセンター/アウトレットモール
- ショッピングセンター/アウトレットモール(深川ギャザリア)まで 1000m
- スーパー
- スーパー(まいばすけっと東陽1丁目店)まで 240m
- スーパー
- スーパー(アブアブ赤札堂)まで 560m
- コンビニ
- コンビニ(ファミリーマート江東東陽一丁目店)まで 350m
- コンビニ
- コンビニ(ローソンストア100東陽1丁目店)まで 360m
- ドラッグストア
- ドラッグストア(くすりの福太郎東陽町3丁目店)まで 550m
- ドラッグストア
- ドラッグストア(スギ薬局)まで 1670m
物件についてお問合せ セジョリ東陽町 3階/東京都江東区東陽1丁目
【掲載物件情報について】
Woman.CHINTAIでは安心してお部屋探しのできるサイトを目指して、物件情報の精度向上に努めております。Woman.CHINTAIに掲載されている物件情報について万が一相違がございましたら、以下のページからご連絡ください
お問い合わせページ同じ建物の空室情報一覧 セジョリ東陽町 3階/東京都江東区東陽1丁目
-
- 2階 204号室
- 家賃
-
17.7
万円
(管理費等 18,000円)
- 管理費
- 18,000円
- 敷金/保証金
- --/--
- 礼金/償却
- --/--
- 間取り
- 1LDK
- 専有面積
- 39.13㎡
- その他
- 北向き
-
- 2階 204号室
- 家賃
-
17.7
万円
(管理費等 18,000円)
- 管理費
- 18,000円
- 敷金/保証金
- --/--
- 礼金/償却
- --/--
- 間取り
- 1LDK
- 専有面積
- 39.13㎡
- その他
- 北向き
-
- 2階 204号室
- 家賃
-
17.7
万円
(管理費等 18,000円)
- 管理費
- 18,000円
- 敷金/保証金
- --/--
- 礼金/償却
- --/--
- 間取り
- 1LDK
- 専有面積
- 39.13㎡
- その他
- 北向き
-
- 2階 204号室
- 家賃
-
17.7
万円
(管理費等 18,000円)
- 管理費
- 18,000円
- 敷金/保証金
- --/--
- 礼金/償却
- --/--
- 間取り
- 1LDK
- 専有面積
- 39.13㎡
- その他
- 北向き
-
- 2階 204号室
- 家賃
-
17.7
万円
(管理費等 18,000円)
- 管理費
- 18,000円
- 敷金/保証金
- --/--
- 礼金/償却
- --/--
- 間取り
- 1LDK
- 専有面積
- 39.13㎡
- その他
- 北向き
-
- 2階 204号室
- 家賃
-
17.7
万円
(管理費等 18,000円)
- 管理費
- 18,000円
- 敷金/保証金
- --/--
- 礼金/償却
- --/--
- 間取り
- 1LDK
- 専有面積
- 39.13㎡
- その他
- 北向き
-
- 2階 204号室
- 家賃
-
17.7
万円
(管理費等 18,000円)
- 管理費
- 18,000円
- 敷金/保証金
- --/--
- 礼金/償却
- --/--
- 間取り
- 1LDK
- 専有面積
- 39.13㎡
- その他
- 北向き
-
- 2階 204号室
- 家賃
-
17.7
万円
(管理費等 18,000円)
- 管理費
- 18,000円
- 敷金/保証金
- --/--
- 礼金/償却
- --/--
- 間取り
- 1LDK
- 専有面積
- 39.13㎡
- その他
- 北向き
取扱い店舗 セジョリ東陽町 3階/東京都江東区東陽1丁目
-
株式会社タウンハウジング東京 西葛西店
お問合せ番号:R00512-141691
国土交通大臣免許(1)第9926号- 東京都江戸川区西葛西5丁目6-8
- 東西線 /西葛西駅
- 営業時間:10:00~19:00
- 定休日:水曜日
選択した物件をまとめて
建物ごとに探す
セジョリ東陽町 3階と同じ最寄り駅にある物件
セジョリ東陽町 3階と同じエリアにある物件
設備・条件から江東区の物件を再検索
設備・条件から東陽町駅の物件を再検索
設備・条件から木場駅の物件を再検索
























一人暮らしの女性に嬉しいポイントはこちら!