スペーシア住吉 5階/東京都江東区猿江1丁目(住吉駅)の賃貸物件詳細
- 新着
-
空室状況を
聞いてみる -
電話でお問合せ
03-5678-5679
- お部屋の状況を確認する(無料)
-
電話でお問合せ
03-5678-5679
保証金 --/--
償却 --/--
都営新宿線 / 菊川駅 徒歩9分
都営大江戸線 / 清澄白河駅 徒歩20分
総武線 / 錦糸町駅 徒歩16分
- お部屋探しは、タウンハウジングにお任せください!お一人お一人様に合ったお部屋をお探し致します。分からないことは何でもご相談くださいませ。
女性におすすめのポイント スペーシア住吉 5階/東京都江東区猿江1丁目
このお部屋は、半蔵門線住吉駅から徒歩4分に位置する駅近のマンションです。また、住吉駅や、菊川駅などの複数駅が利用できるのでアクセスも便利です!
このお部屋はお風呂とトイレが別なので、それぞれ清潔&おしゃれにこだわることができます。また2階以上にあるお部屋で、路面から室内が見られないので女性の一人暮らしでも少し安心。
この建物はオートロックがあるので基本的には住人以外は入れないので安心ですね!
嬉しいのがこのお部屋は礼金がないところ。初期費用が抑えられますね!
スーパーやコンビニが徒歩分圏内に5件あるので一人暮らしに便利。最も近いのは徒歩5分の所にある、ローソン住吉新大橋通店!
もっと見る ▼
-
即入居 -
女子割 -
バス・
トイレ別 -
独立
洗面台 -
オートロック -
2階以上 -
システム
キッチン -
コンロ
二口 -
クロー
ゼット -
室内洗濯
機置き場
この物件に無料でお問合せ お問合せ内容を選択してね!
-
電話でお問合せ
03-5678-5679 -
株式会社タウンハウジング東京
新小岩店
営業時間:10:00~19:00
基本物件情報 スペーシア住吉 5階/東京都江東区猿江1丁目
- 家賃/管理費
- 12.2万円/10,000円
- 敷金(保証金)/ 礼金(償却)
- --(--)/--(--)
- 初期費用が気になる方は
お気軽にお問合せください! -
初期費用を株式会社タウンハウジング東京新小岩店に聞いてみる!
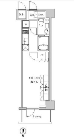
- 間取り/面積
-
1K
/26.85㎡
- 築年
- 2017年02月(築8年)
- 交通
-
半蔵門線 / 住吉駅 徒歩4分
都営新宿線 / 菊川駅 徒歩9分
都営大江戸線 / 清澄白河駅 徒歩20分
総武線 / 錦糸町駅 徒歩16分
- 所在地
-
東京都 江東区 猿江 1丁目
地図・周辺情報を見る
- 階数/方位
- 5階(8階建て)
/北向き
- 空室数
- 同じ建物に空室があと10件あります
空室を見る
- 種別/構造
- マンション/鉄筋コンクリート造
-
電話でお問合せ
03-5678-5679
こだわり設備・特徴 スペーシア住吉 5階/東京都江東区猿江1丁目
- 入居時期・条件
-
空予定(2025年12月下旬)
/
保証人不要
/
独身可
- 周辺環境
- 平坦地 / 駅まで平坦 / 3沿線利用可 / 緑豊かな住宅地 / 閑静な住宅地 / 3駅利用可
- 収納
- 全居室収納 / 玄関収納 / シューズボックス1ヵ所 / クローゼット1ヵ所
- 放送・通信
-
※BS受信可
/
インターネット接続(月額利用料無料)
/
※CS受信可
/
光ファイバー
/
※CATV
/
マルチメディアコンセント
/
ネット専用回線
※インターネット接続環境、BS受信可、CATV、CS受信可について…利用料金は、共益費に含まれるタイプや個別に契約するタイプなど物件により異なります。詳しくは、物件お取り扱い不動産会社にお問合せください。
- その他設備・サービス
- 給湯 / 室内洗濯機置場 / 冷房 / 通風良好 / 都市ガス / バルコニー / エレベーター1基 / 照明1台 / 24時間換気システム / 全室エアコン / 敷地内ごみ置き場 / 人感照明センサー / 全居室フローリング / 和室8畳以上
- 建物タイプ・デザイン
- 外壁タイル張り
- 駐輪・駐車
- 自転車置き場
- 家賃保証会社など
- 保証会社必加入(その他:実費)※賃料+管理費50%~60%
- 保険
- 損害保険加入要。
- 備考
- ★インターネット上の物件はほぼ全てご紹介可能です★現地待ち合わせ、オンライン内見、オンライン申し込みも対応可能★お気軽にご相談ください♪お部屋探しはタウンハウジング新小岩店にお任せください!★
- 契約期間
- 一般契約:2年0ヶ月間
- 更新料
- 1ヶ月
- 取引形態
- 一般媒介
- 物件管理コード
- C01008701-000000504201677-0001
- 情報更新日
- 2025/12/18
- 次回更新予定日
- 2026/01/10
この物件に無料でお問合せ お問合せ内容を選択してね!
-
電話でお問合せ
03-5678-5679 -
株式会社タウンハウジング東京
新小岩店
営業時間:10:00~19:00
-
電話でお問合せ
03-5678-5679
周辺情報 スペーシア住吉 5階/東京都江東区猿江1丁目
- ショッピングセンター/アウトレットモール
- ショッピングセンター/アウトレットモール(アルカキット錦糸町)まで 1260m
- ショッピングセンター/アウトレットモール
- ショッピングセンター/アウトレットモール(アリオ北砂)まで 1760m
- スーパー
- スーパー(肉のハナマサ住吉店)まで 470m
- スーパー
- スーパー(ライフ)まで 570m
- スーパー
- スーパー(スーパーオオゼキ)まで 640m
- コンビニ
- コンビニ(ローソン住吉新大橋通店)まで 330m
- コンビニ
- コンビニ(肉のハナマサ住吉店)まで 470m
- ドラッグストア
- ドラッグストア(どらっぐぱぱす住吉店)まで 310m
物件についてお問合せ スペーシア住吉 5階/東京都江東区猿江1丁目
【掲載物件情報について】
Woman.CHINTAIでは安心してお部屋探しのできるサイトを目指して、物件情報の精度向上に努めております。Woman.CHINTAIに掲載されている物件情報について万が一相違がございましたら、以下のページからご連絡ください
お問い合わせページ同じ建物の空室情報一覧 スペーシア住吉 5階/東京都江東区猿江1丁目
取扱い店舗 スペーシア住吉 5階/東京都江東区猿江1丁目
-
株式会社タウンハウジング東京 新小岩店
お問合せ番号:R00504-201677
国土交通大臣免許(1)第9926号- 東京都葛飾区新小岩1丁目40-8 エイワビル2階
- 総武線 /新小岩駅
- 営業時間:10:00~19:00
- 定休日:水曜日
選択した物件をまとめて
建物ごとに探す
スペーシア住吉 5階と同じ最寄り駅にある物件
スペーシア住吉 5階と同じエリアにある物件
設備・条件から江東区の物件を再検索
設備・条件から住吉駅の物件を再検索
設備・条件から菊川駅の物件を再検索
設備・条件から清澄白河駅の物件を再検索




























一人暮らしの女性に嬉しいポイントはこちら!