MQuarto尾久 3階/東京都荒川区西尾久7丁目の建物情報
最終更新日:2026年05月01日
最終更新日:2026年05月01日
空室情報
家賃相場
- 万円
- 更新日時
- 住所
- 東京都荒川区西尾久7丁目
- 交通
-
山手線 / 田端駅 徒歩22分京浜東北線・根岸線 / 上中里駅 徒歩18分高崎線 / 尾久駅 徒歩6分都電荒川線 / 小台駅 徒歩8分都電荒川線 / 荒川遊園地前駅 徒歩4分
- 築年
- 2025年05月(1年未満)
- 種別/構造
- アパート/木造
- 階建
- 3階建
- 駐車場
- 駐車場なし
- 参考賃料
- 10.4万円~10.7万円(管理費等:11,000円)
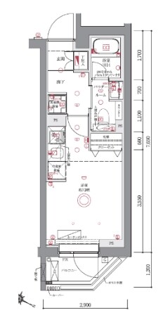
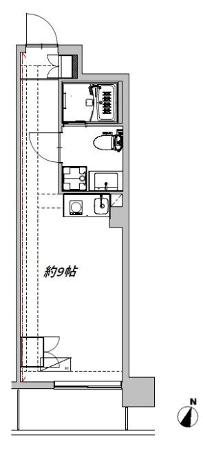
- 参考間取り
- 1K
- 参考平米数
- 20.05㎡
過去から現在までにWoman.CHINTAIに掲載のあった物件情報を元に作成した参考ページです。
間取りや掲載時期によって部屋の状況は異なり、全ての部屋と一致するものではございません。
建物設備や周辺環境
このお部屋は、山手線田端(東京)駅から徒歩22分に位置するアパートです。また、田端(東京)駅や、上中里駅などの複数駅が利用できるのでアクセスも便利です!
また、この建物はオートロックがあるので防犯面を重視する女性には魅力的なポイント!またこの建物は築3年以内の新しい物件で、おしゃれで可愛いお部屋でのライフスタイルが叶いそうですね。また敷地内にごみ置き場があり、ごみ出しが楽にできます。
その他、スーパーやコンビニ・100均が徒歩圏内に6件あります。最も近いのは徒歩2分の所にある、スーパーバリュー西尾久店!生活用品をそろえるのに便利などらっぐぱぱす西尾久店は、徒歩2分圏内にあります。
もっと見る ▼
- オートロック
- 築浅
- 駅近
- 敷地内ごみ置き場
- 宅配ボックス
- デザイナーズ
- ドラッグストア・ディスカウントショップ
- 交番・警察署
- コンビニ・スーパー・100均
- カフェ・飲食店
- ショッピング
※建物から500m以内に存在する場合にアイコン表示しています。(ショッピングは1㎞以内の場合)
取扱い店舗
-
国土交通大臣免許(1)第009926号
- 東京都足立区西新井栄町2丁目 6-10 西新井駅前ビル1階
- 東武伊勢崎線・スカイツリーライン /西新井駅
MQuarto尾久周辺の賃貸マンション・アパート情報
選択した物件をまとめて








一人暮らしの女性に嬉しいポイントはこちら!