スペーシア住吉 8階/東京都江東区猿江1丁目の建物情報
最終更新日:2026年05月02日
最終更新日:2026年05月02日
空室情報
家賃相場
- 万円
- 更新日時
- 住所
- 東京都江東区猿江1丁目
- 交通
-
総武線 / 錦糸町駅 徒歩17分半蔵門線 / 錦糸町駅 徒歩17分東西線 / 東陽町駅 徒歩28分都営新宿線 / 森下駅 徒歩18分都営大江戸線 / 森下駅 徒歩21分都営新宿線 / 菊川駅 徒歩12分半蔵門線 / 住吉駅 徒歩6分都営新宿線 / 住吉駅 徒歩6分都営新宿線 / 西大島駅 徒歩20分半蔵門線 / 清澄白河駅 徒歩22分都営大江戸線 / 清澄白河駅 徒歩20分
- 築年
- 2017年01月(築9年)
- 種別/構造
- マンション/鉄筋コンクリート造
- 階建
- 8階建
- 駐車場
- 駐車場なし
- 参考賃料
- 11.7万円~12.8万円(管理費等:8,000円~12,000円)
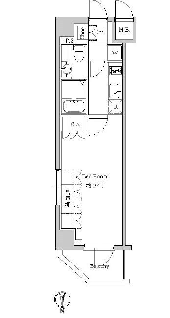
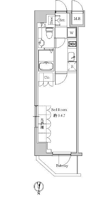
- 参考間取り
- 1K
- 参考平米数
- 26.85㎡
過去から現在までにWoman.CHINTAIに掲載のあった物件情報を元に作成した参考ページです。
間取りや掲載時期によって部屋の状況は異なり、全ての部屋と一致するものではございません。
建物設備や周辺環境
このお部屋は、総武線錦糸町駅から徒歩17分に位置するマンションです。また、錦糸町駅や、東陽町駅などの複数駅が利用できるのでアクセスも便利です!
また、この建物はオートロックがあるので防犯面を重視する女性には魅力的なポイント!また敷地内にごみ置き場があり、ごみ出しが楽にできます。また宅配ボックスが備え付けられているため、対面で荷物を受け取らずにすみ、急な外出の心配をしなくてもネットショッピングが楽しめます。
その他、スーパーやコンビニ・100均が徒歩圏内に2件あります。最も近いのは徒歩4分の所にある、ローソン住吉新大橋通店!生活用品をそろえるのに便利などらっぐぱぱす住吉店は、徒歩4分圏内にあります。
もっと見る ▼
- オートロック
- 築浅
- 駅近
- 敷地内ごみ置き場
- 宅配ボックス
- デザイナーズ
- ドラッグストア・ディスカウントショップ
- 交番・警察署
- コンビニ・スーパー・100均
- カフェ・飲食店
- ショッピング
※建物から500m以内に存在する場合にアイコン表示しています。(ショッピングは1㎞以内の場合)
取扱い店舗
-
国土交通大臣(7)第5338号女性スタッフ対応
- 東京都江東区東陽3-27-25 ストークマンション東陽町2F
- 東西線 /東陽町駅
- 営業時間:10:00~18:30
- 定休日:年末年始(2025/12/27~2026/1/3)
- 女性におすすめのポイント
-
- 女性スタッフがいるので、気兼ねなく相談していただけます。
- また、保証人に関して不安な方は、相談可能ですのでご安心ください。
- さらに、駅から近いので、気軽にお立ち寄りいただけます。
スペーシア住吉周辺の賃貸マンション・アパート情報
選択した物件をまとめて





一人暮らしの女性に嬉しいポイントはこちら!