HJクラウンI 1階/東京都渋谷区神宮前2丁目(外苑前駅)の賃貸物件詳細
- 即入居可
-
空室状況を
聞いてみる -
電話でお問合せ
03-6228-4882
- お部屋の状況を確認する(無料)
-
電話でお問合せ
03-6228-4882
保証金 --/--
償却 --/--
都営大江戸線 / 国立競技場駅 徒歩10分
山手線 / 原宿駅 徒歩13分
副都心線 / 明治神宮前駅 徒歩13分
- 新築 敷金・礼金0ヶ月 外苑前駅徒歩10分 追焚 独立洗面台 宅配ボックス 防犯カメラ オートロック
女性におすすめのポイント HJクラウンI 1階/東京都渋谷区神宮前2丁目
このお部屋は、銀座線外苑前駅から徒歩10分に位置するマンションです。また、外苑前駅や、国立競技場駅などの複数駅が利用できるのでアクセスも便利です!
このお部屋はお風呂とトイレが別なので、それぞれ清潔&おしゃれにこだわることができます。また独立洗面台があって収納やコンセントも使えるので、女性の身支度にはとても便利!
この建物はオートロックがあるので基本的には住人以外は入れないので安心ですね!
嬉しいのがこのお部屋は礼金がないところ。初期費用が抑えられますね!
スーパーやコンビニが徒歩分圏内に2件あるので一人暮らしに便利。最も近いのは徒歩2分の所にある、ミニストップ神宮前2丁目店!
もっと見る ▼
-
即入居 -
バス・
トイレ別 -
独立
洗面台 -
オートロック -
2階以上 -
システム
キッチン -
コンロ
二口 -
クロー
ゼット -
室内洗濯
機置き場
この物件に無料でお問合せ お問合せ内容を選択してね!
-
電話でお問合せ
03-6228-4882 -
スタートライン
MINATO浜松町店
営業時間:10:00 - 19:00
基本物件情報 HJクラウンI 1階/東京都渋谷区神宮前2丁目
- 家賃/管理費
- 29.8万円/15,000円
- 敷金(保証金)/ 礼金(償却)
- --(--)/--(--)
- 初期費用が気になる方は
お気軽にお問合せください! -
初期費用をスタートラインMINATO浜松町店に聞いてみる!
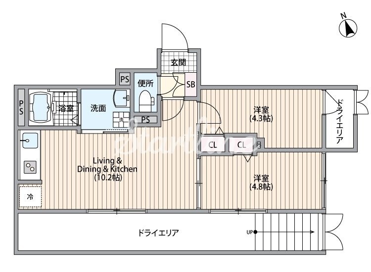
- 間取り/面積
-
2LDK/41.39㎡
- 築年
- 2025年12月(1年未満)
- 交通
-
銀座線 / 外苑前駅 徒歩10分
都営大江戸線 / 国立競技場駅 徒歩10分
山手線 / 原宿駅 徒歩13分
副都心線 / 明治神宮前駅 徒歩13分
- 所在地
-
東京都 渋谷区 神宮前 2丁目
地図・周辺情報を見る
- 階数/方位
- 1階(3階建て・地下1階)
/南西向き
- 空室数
- 同じ建物に空室があと3件あります
空室を見る
- 種別/構造
- マンション/鉄筋コンクリート造
-
電話でお問合せ
03-6228-4882
こだわり設備・特徴 HJクラウンI 1階/東京都渋谷区神宮前2丁目
- 入居時期・条件
-
即入居
/
ペット相談可
(飼育の場合:敷金1ヶ月増)
/
二人入居可
- セキュリティ
- オートロック / 防犯カメラ / 宅配ボックス / TVモニターフォン
- 収納
- シューズボックス1ヵ所 / クローゼット2ヵ所
- 位置
- 角部屋
- 放送・通信
- インターネット接続(月額利用料無料) / 光ファイバー
- その他設備・サービス
- 室内洗濯機置場 / 冷房 / フローリング / 追い焚き機能 / 2面採光 / エアコン1台 / 24時間換気システム
- 家賃保証会社など
- 保証会社必加入(その他:実費)※初回保証料:総賃料の100%、更新料なし 月額:賃料1.5%
- 保険
- 損害保険加入要。
- 備考
- 1年未満解約時賃料1ヶ月分違約金あり ペット飼育:小型犬2匹まで・敷金積増1ヶ月・償却
- その他諸費用
- 敷金積み増し(ペット飼育:1ヶ月) / その他費用(室内清掃費用:66000円) / その他費用(エアコン清掃費:11000円) / その他費用(24時間緊急対応費:1320円)
- 契約期間
- 一般契約:2年0ヶ月間
- 更新料
- 1ヶ月
- 取引形態
- 一般媒介
- 物件管理コード
- C01010519-000002130016919-0001
- 情報更新日
- 2026/03/18
- 次回更新予定日
- 2026/04/01
この物件に無料でお問合せ お問合せ内容を選択してね!
-
電話でお問合せ
03-6228-4882 -
スタートライン
MINATO浜松町店
営業時間:10:00 - 19:00
-
電話でお問合せ
03-6228-4882
物件についてお問合せ HJクラウンI 1階/東京都渋谷区神宮前2丁目
【掲載物件情報について】
Woman.CHINTAIでは安心してお部屋探しのできるサイトを目指して、物件情報の精度向上に努めております。Woman.CHINTAIに掲載されている物件情報について万が一相違がございましたら、以下のページからご連絡ください
お問い合わせページ同じ建物の空室情報一覧 HJクラウンI 1階/東京都渋谷区神宮前2丁目
-
- 1階 002号室
- 家賃
-
29.4
万円
(管理費等 15,000円)
- 管理費
- 15,000円
- 敷金/保証金
- --/--
- 礼金/償却
- --/--
- 間取り
- 2LDK
- 専有面積
- 44.77㎡
- その他
- 南西向き
-
- 1階 1号室
- 家賃
-
29.2
万円
(管理費等 15,000円)
- 管理費
- 15,000円
- 敷金/保証金
- --/--
- 礼金/償却
- --/--
- 間取り
- 2LDK
- 専有面積
- 41.39㎡
- その他
- 南西向き
-
- 1階 2号室
- 家賃
-
29.4
万円
(管理費等 15,000円)
- 管理費
- 15,000円
- 敷金/保証金
- --/--
- 礼金/償却
- --/--
- 間取り
- 2LDK
- 専有面積
- 44.77㎡
- その他
- 北西向き
取扱い店舗 HJクラウンI 1階/東京都渋谷区神宮前2丁目
-
スタートライン MINATO浜松町店
お問合せ番号:R02130-016919
東京都知事免許(6)第76891号- 東京都港区芝大門 1-16-3芝大門116ビル1F
- 山手線 /浜松町駅
- 営業時間:10:00 - 19:00
- 定休日:毎週水曜日
メールでお問合せする 電話でお問合せ
03-6228-4882
選択した物件をまとめて
建物ごとに探す
HJクラウンI 1階と同じ最寄り駅にある物件
HJクラウンI 1階と同じエリアにある物件
設備・条件から渋谷区の物件を再検索
設備・条件から外苑前駅の物件を再検索
設備・条件から国立競技場駅の物件を再検索
設備・条件から原宿駅の物件を再検索
設備・条件から明治神宮前駅の物件を再検索


































一人暮らしの女性に嬉しいポイントはこちら!