アルテシモリンククロス 12階/東京都荒川区西日暮里2丁目(西日暮里駅)の賃貸物件詳細
-
空室状況を
聞いてみる -
電話でお問合せ
03-6228-4882
- お部屋の状況を確認する(無料)
-
電話でお問合せ
03-6228-4882
保証金 --/--
償却 1ヶ月/--
山手線 / 日暮里駅 徒歩6分
常磐線 / 三河島駅 徒歩14分
京成本線 / 新三河島駅 徒歩11分
- 敷金0 西日暮里駅徒歩3分 インターネット無料 ペット相談可 独立洗面台 宅配BOX オートロック
女性におすすめのポイント アルテシモリンククロス 12階/東京都荒川区西日暮里2丁目
このお部屋は、山手線西日暮里駅から徒歩3分に位置する駅近のマンションです。また、西日暮里駅や、日暮里駅などの複数駅が利用できるのでアクセスも便利です!
このお部屋はお風呂とトイレが別なので、それぞれ清潔&おしゃれにこだわることができます。また2階以上にあるお部屋で、路面から室内が見られないので女性の一人暮らしでも少し安心。
この建物はオートロックがあるので基本的には住人以外は入れないので安心ですね!
嬉しいのがこのお部屋はネットの料金が無料なところ。動画なども見放題ですね!
スーパーやコンビニが徒歩分圏内に2件あるので一人暮らしに便利。最も近いのは徒歩2分の所にある、スーパー!
もっと見る ▼
-
即入居 -
女子割 -
バス・
トイレ別 -
独立
洗面台 -
オートロック -
2階以上 -
システム
キッチン -
コンロ
二口 -
クロー
ゼット -
室内洗濯
機置き場
この物件に無料でお問合せ お問合せ内容を選択してね!
-
電話でお問合せ
03-6228-4882 -
スタートライングループ
三ノ輪店
営業時間:10:00 - 19:00
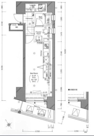
基本物件情報 アルテシモリンククロス 12階/東京都荒川区西日暮里2丁目
- 家賃/管理費
- 11万円/10,000円
- 敷金(保証金)/ 礼金(償却)
- --(--)/1ヶ月(--)
- 初期費用が気になる方は
お気軽にお問合せください! -
初期費用をスタートライングループ三ノ輪店に聞いてみる!
- 間取り/面積
-
1R
/25.23㎡
- 築年
- 2009年02月(築16年)
- 交通
-
山手線 / 西日暮里駅 徒歩3分
山手線 / 日暮里駅 徒歩6分
常磐線 / 三河島駅 徒歩14分
京成本線 / 新三河島駅 徒歩11分
- 所在地
-
東京都 荒川区 西日暮里 2丁目
地図・周辺情報を見る
- 階数/方位
- 12階(12階建て)
/南西向き
- 空室数
- 同じ建物に空室があと2件あります
空室を見る
- 種別/構造
- マンション/鉄筋コンクリート造
-
電話でお問合せ
03-6228-4882
こだわり設備・特徴 アルテシモリンククロス 12階/東京都荒川区西日暮里2丁目
- 入居時期・条件
-
応相談※詳細はお問い合わせください
/
保証人不要
/
ペット相談可
(飼育の場合:敷金1ヶ月増)
/
二人入居可
- 収納
- 全居室収納 / シューズボックス1ヵ所 / クローゼット1ヵ所
- 位置
- 最上階 / 角部屋
- 放送・通信
-
※BS受信可
/
インターネット接続(月額利用料無料)
/
※CS受信可
/
光ファイバー
※インターネット接続環境、BS受信可、CATV、CS受信可について…利用料金は、共益費に含まれるタイプや個別に契約するタイプなど物件により異なります。詳しくは、物件お取り扱い不動産会社にお問合せください。
- その他設備・サービス
- 耐震構造 / 24時間ゴミ出し可 / 室内洗濯機置場 / 冷房 / 都市ガス / バルコニー / 下水道 / エレベーター1基 / 2面採光 / 公営上水道 / エアコン1台 / 24時間換気システム / 敷地内ごみ置き場 / 全居室フローリング / Pタイル
- 建物タイプ・デザイン
- 外壁タイル張り / 分譲賃貸 / デザイナーズ
- 駐輪・駐車
- 自転車置き場
- 家賃保証会社など
- 保証会社必加入(その他:実費)※初回保証料:総賃料の100% 月次保証料:総賃料の1.5%
- 保険
- 損害保険加入要。
- 備考
- 短期解約違約金有:1年未満総賃料2ヶ月、1年以上2年未満総賃料1ヶ月 解約予告2ヶ月前
- その他諸費用
- 敷金積み増し(ペット飼育:1ヶ月) / その他費用(室内清掃費用:59400円) / その他費用(事務手数料:11000円) / その他費用(24時間緊急対応費:19800円)
- 契約期間
- 一般契約:2年0ヶ月間
- 更新料
- 1.5ヶ月
- 取引形態
- 一般媒介
- 物件管理コード
- C01010506-000002135003200-0001
- 情報更新日
- 2025/12/10
- 次回更新予定日
- 2025/12/24
この物件に無料でお問合せ お問合せ内容を選択してね!
-
電話でお問合せ
03-6228-4882 -
スタートライングループ
三ノ輪店
営業時間:10:00 - 19:00
-
電話でお問合せ
03-6228-4882
物件についてお問合せ アルテシモリンククロス 12階/東京都荒川区西日暮里2丁目
【掲載物件情報について】
Woman.CHINTAIでは安心してお部屋探しのできるサイトを目指して、物件情報の精度向上に努めております。Woman.CHINTAIに掲載されている物件情報について万が一相違がございましたら、以下のページからご連絡ください
お問い合わせページ取扱い店舗 アルテシモリンククロス 12階/東京都荒川区西日暮里2丁目
-
スタートライングループ 三ノ輪店
お問合せ番号:R02135-003200
東京都知事免許(6)第076891号- 東京都台東区根岸5丁目22-6 ブロッケンビル3F
- 日比谷線 /三ノ輪駅
- 営業時間:10:00 - 19:00
- 定休日:毎週水曜日
選択した物件をまとめて
建物ごとに探す
アルテシモリンククロス 12階と同じ最寄り駅にある物件
アルテシモリンククロス 12階と同じエリアにある物件
設備・条件から荒川区の物件を再検索
設備・条件から西日暮里駅の物件を再検索
設備・条件から日暮里駅の物件を再検索
設備・条件から三河島駅の物件を再検索













一人暮らしの女性に嬉しいポイントはこちら!