Nステージ東小金井 5階/東京都小金井市東町4丁目(東小金井駅)の賃貸物件詳細
- 即入居可
-
空室状況を
聞いてみる -
電話でお問合せ
03-3317-3300
- お部屋の状況を確認する(無料)
-
電話でお問合せ
03-3317-3300
保証金 1ヶ月/--
償却 --/--
西武多摩川線 / 新小金井駅 徒歩5分
中央線 / 武蔵小金井駅 徒歩22分
- 暮らすほどに快適さを実感できる設備仕様!都心を身近に、ストレスフリーな暮らしを楽しむ!住むほどに愛着が深まる暮らしやすい街!!
女性におすすめのポイント Nステージ東小金井 5階/東京都小金井市東町4丁目
このお部屋は、中央線東小金井駅から徒歩11分に位置するマンションです。また、東小金井駅や、新小金井駅などの複数駅が利用できるのでアクセスも便利です!
このお部屋はお風呂とトイレが別なので、それぞれ清潔&おしゃれにこだわることができます。また2階以上にあるお部屋で、路面から室内が見られないので女性の一人暮らしでも少し安心。
この建物は築10年以内の新しい物件!きれいなお部屋はあこがれますよね!
嬉しいのがこのお部屋は礼金がないところ。初期費用が抑えられますね!
スーパーやコンビニが徒歩分圏内に5件あるので一人暮らしに便利。最も近いのは徒歩5分の所にある、東小金井駅周辺!
もっと見る ▼
-
即入居 -
女子割 -
バス・
トイレ別 -
独立
洗面台 -
オートロック -
2階以上 -
システム
キッチン -
コンロ
二口 -
クロー
ゼット -
室内洗濯
機置き場
この物件に無料でお問合せ お問合せ内容を選択してね!
-
電話でお問合せ
03-3317-3300 -
株式会社タウンハウジング東京
阿佐ヶ谷店
営業時間:10:00~19:00
基本物件情報 Nステージ東小金井 5階/東京都小金井市東町4丁目
- 家賃/管理費
- 27万円/25,000円
- 敷金(保証金)/ 礼金(償却)
- 1ヶ月(--)/--(--)
- 初期費用が気になる方は
お気軽にお問合せください! -
初期費用を株式会社タウンハウジング東京阿佐ヶ谷店に聞いてみる!
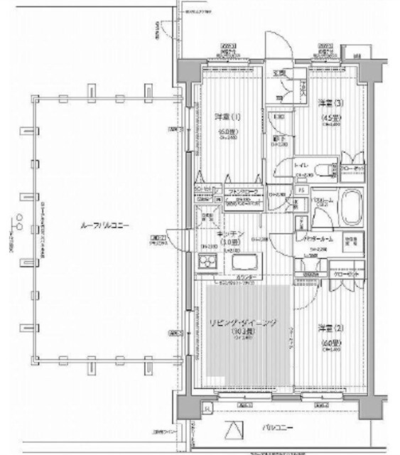
- 間取り/面積
-
3LDK/64.31㎡
- 築年
- 2019年02月(築6年)
- 交通
-
中央線 / 東小金井駅 徒歩11分
西武多摩川線 / 新小金井駅 徒歩5分
中央線 / 武蔵小金井駅 徒歩22分
- 所在地
-
東京都 小金井市 東町 4丁目
地図・周辺情報を見る
- 階数/方位
- 5階(7階建て)
/西向き
- 空室数
- 同じ建物に空室があと10件あります
空室を見る
- 種別/構造
- マンション/鉄筋コンクリート造
-
電話でお問合せ
03-3317-3300
こだわり設備・特徴 Nステージ東小金井 5階/東京都小金井市東町4丁目
- 入居時期・条件
-
即入居
/
保証人不要
/
ペット相談可
(飼育の場合:敷金1ヶ月増)
/
二人入居可
/
子供可
- キッチン
- 対面キッチン / 食器洗浄乾燥機 / システムキッチン / コンロ3口 / IHクッキングヒーター付
- セキュリティ
- 防犯カメラ / 宅配ボックス / TVモニターフォン
- 周辺環境
- 2沿線利用可 / 閑静な住宅地
- 収納
- 全居室収納 / シューズボックス1ヵ所 / クローゼット1ヵ所
- 位置
- 角部屋
- 放送・通信
-
※BS受信可
/
※CS受信可
※インターネット接続環境、BS受信可、CATV、CS受信可について…利用料金は、共益費に含まれるタイプや個別に契約するタイプなど物件により異なります。詳しくは、物件お取り扱い不動産会社にお問合せください。
- その他設備・サービス
- 給湯 / ルーフバルコニー / 2面バルコニー / 室内洗濯機置場 / 振分タイプ / 玄関ホール / 都市ガス / バルコニー / エレベーター1基 / 追い焚き機能 / ペット専用設備 / 南面バルコニー / ワイドバルコニー / 一部床暖房 / 全室エアコン / 敷地内ごみ置き場 / 全居室フローリング / LDK12畳以上
- 駐輪・駐車
- 自転車置き場 / バイク置場
- 家賃保証会社など
- 保証会社必加入(その他:0.4ヶ月)※エポス又はクレディセゾン
- 保険
- 損害保険加入要。
- 備考
- 暮らすほどに快適さを実感できる設備仕様!都心を身近に、ストレスフリーな暮らしを楽しむ!住むほどに愛着が深まる暮らしやすい街!!1年以内の解約は違約金1か月かかります
- その他諸費用
- 敷金積み増し(ペット飼育:1ヶ月) / その他費用(鍵交換:26400円)
- 契約期間
- 一般契約:2年0ヶ月間
- 更新料
- 1ヶ月
- 取引形態
- 一般媒介
- 物件管理コード
- C01010068-000001631070882-0001
- 情報更新日
- 2025/12/07
- 次回更新予定日
- 2025/12/21
この物件に無料でお問合せ お問合せ内容を選択してね!
-
電話でお問合せ
03-3317-3300 -
株式会社タウンハウジング東京
阿佐ヶ谷店
営業時間:10:00~19:00
-
電話でお問合せ
03-3317-3300
物件についてお問合せ Nステージ東小金井 5階/東京都小金井市東町4丁目
【掲載物件情報について】
Woman.CHINTAIでは安心してお部屋探しのできるサイトを目指して、物件情報の精度向上に努めております。Woman.CHINTAIに掲載されている物件情報について万が一相違がございましたら、以下のページからご連絡ください
お問い合わせページ同じ建物の空室情報一覧 Nステージ東小金井 5階/東京都小金井市東町4丁目
-
- 1階 103号室
- 家賃
-
25.3
万円
(管理費等 25,000円)
- 管理費
- 25,000円
- 敷金/保証金
- 1ヶ月/--
- 礼金/償却
- --/--
- 間取り
- 2LDK
- 専有面積
- 62.13㎡
- その他
- 西向き
-
- 1階 103号室
- 家賃
-
25.3
万円
(管理費等 25,000円)
- 管理費
- 25,000円
- 敷金/保証金
- 1ヶ月/--
- 礼金/償却
- --/--
- 間取り
- 2LDK
- 専有面積
- 62.13㎡
- その他
- 西向き
-
- 1階 103号室
- 家賃
-
25.3
万円
(管理費等 25,000円)
- 管理費
- 25,000円
- 敷金/保証金
- 1ヶ月/--
- 礼金/償却
- --/--
- 間取り
- 2LDK
- 専有面積
- 62.13㎡
- その他
- 西向き
取扱い店舗 Nステージ東小金井 5階/東京都小金井市東町4丁目
-
株式会社タウンハウジング東京 阿佐ヶ谷店
お問合せ番号:R01631-070882
国土交通大臣免許(1)第009926号- 東京都杉並区阿佐谷南2-17-2Libera Asagaya 1F
- 中央線 /阿佐ケ谷駅
- 営業時間:10:00~19:00
- 定休日:毎週水曜日
選択した物件をまとめて


























一人暮らしの女性に嬉しいポイントはこちら!