エルスタンザ文京白山 2階/東京都文京区白山4丁目(白山駅)の賃貸物件詳細
- 即入居可
-
空室状況を
聞いてみる -
電話でお問合せ
03-3365-5531
- お部屋の状況を確認する(無料)
-
電話でお問合せ
03-3365-5531
保証金 1ヶ月/--
償却 --/--
都営三田線 / 千石駅 徒歩7分
南北線 / 本駒込駅 徒歩10分
- ★お部屋探しは「タウンハウジング」へ★
女性におすすめのポイント エルスタンザ文京白山 2階/東京都文京区白山4丁目
このお部屋は、都営三田線白山駅から徒歩8分に位置するマンションです。また、白山駅や、千石駅などの複数駅が利用できるのでアクセスも便利です!
このお部屋はお風呂とトイレが別なので、それぞれ清潔&おしゃれにこだわることができます。また2階以上にあるお部屋で、路面から室内が見られないので女性の一人暮らしでも少し安心。
この建物はオートロックがあるので基本的には住人以外は入れないので安心ですね!
嬉しいのがこのお部屋は礼金がないところ。初期費用が抑えられますね!
スーパーやコンビニが徒歩分圏内に3件あるので一人暮らしに便利。最も近いのは徒歩4分の所にある、ローソン文京白山五丁目店!
もっと見る ▼
-
即入居 -
女子割 -
バス・
トイレ別 -
独立
洗面台 -
オートロック -
2階以上 -
システム
キッチン -
コンロ
二口 -
クロー
ゼット -
室内洗濯
機置き場
この物件に無料でお問合せ お問合せ内容を選択してね!
-
電話でお問合せ
03-3365-5531 -
株式会社タウンハウジング東京
新大久保店
営業時間:10:00~19:00
基本物件情報 エルスタンザ文京白山 2階/東京都文京区白山4丁目
- 家賃/管理費
- 27.9万円/15,000円
- 敷金(保証金)/ 礼金(償却)
- 1ヶ月(--)/--(--)
- 初期費用が気になる方は
お気軽にお問合せください! -
初期費用を株式会社タウンハウジング東京新大久保店に聞いてみる!
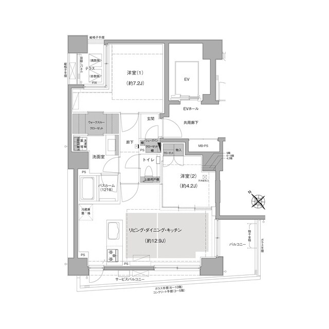
- 間取り/面積
-
2LDK/56.67㎡
- 築年
- 2018年02月(築7年)
- 交通
-
都営三田線 / 白山駅 徒歩8分
都営三田線 / 千石駅 徒歩7分
南北線 / 本駒込駅 徒歩10分
- 所在地
-
東京都 文京区 白山 4丁目
地図・周辺情報を見る
- 階数/方位
- 2階(10階建て)
/南向き
- 空室数
- 同じ建物に空室があと10件あります
空室を見る
- 種別/構造
- マンション/鉄筋コンクリート造
-
電話でお問合せ
03-3365-5531
こだわり設備・特徴 エルスタンザ文京白山 2階/東京都文京区白山4丁目
- 入居時期・条件
-
即入居
/
保証人不要
/
二人入居可
/
独身可
- バス・トイレ
- ミストサウナ / 洗面所にドア / 洗面所独立 / 洗面台 / 洗面化粧台 / 暖房便座 / バス・トイレ別 / 脱衣所 / 温水洗浄便座 / シャワー / シャワー付洗面化粧台 / タンクレストイレ / 浴室乾燥機
- 周辺環境
- 3沿線利用可 / 3駅利用可
- 収納
- 全居室収納 / シューズボックス1ヵ所 / クローゼット1ヵ所 / シューズインクローゼット / ウォークインクローゼット1ヵ所
- 位置
- 角部屋 / 南向き
- 放送・通信
-
※BS受信可
/
インターネット接続(月額利用料無料)
/
※CS受信可
/
※CATV
/
マルチメディアコンセント
※インターネット接続環境、BS受信可、CATV、CS受信可について…利用料金は、共益費に含まれるタイプや個別に契約するタイプなど物件により異なります。詳しくは、物件お取り扱い不動産会社にお問合せください。
- その他設備・サービス
- 給湯 / 2面バルコニー / 室内洗濯機置場 / 振分タイプ / 玄関ホール / 通風良好 / 眺望良好 / 都市ガス / 陽当り良好 / バルコニー / エレベーター1基 / 追い焚き機能 / 3面採光 / 南面リビング / 公営上水道 / エアコン1台 / 24時間換気システム / 一部床暖房 / 敷地内ごみ置き場 / 全居室フローリング / LDK12畳以上
- 建物タイプ・デザイン
- 外壁タイル張り
- 駐輪・駐車
-
近隣駐車場1 台※近隣駐車場距離:300m
※駐車場の金額表示は1台分の表示となります。
- 家賃保証会社など
- 保証会社必加入(その他:0.5ヶ月)
- 保険
- 損害保険加入要。
- 備考
- 初期費用の分割払いもご相談可能
- その他諸費用
- その他費用(鍵交換:33000円) / その他費用(室内清掃費用:84700円)
- 契約期間
- 一般契約:2年0ヶ月間
- 更新料
- 1ヶ月
- 取引形態
- 一般媒介
- 物件管理コード
- C01009438-000001358091051-0001
- 情報更新日
- 2025/12/03
- 次回更新予定日
- 2025/12/17
この物件に無料でお問合せ お問合せ内容を選択してね!
-
電話でお問合せ
03-3365-5531 -
株式会社タウンハウジング東京
新大久保店
営業時間:10:00~19:00
-
電話でお問合せ
03-3365-5531
物件についてお問合せ エルスタンザ文京白山 2階/東京都文京区白山4丁目
【掲載物件情報について】
Woman.CHINTAIでは安心してお部屋探しのできるサイトを目指して、物件情報の精度向上に努めております。Woman.CHINTAIに掲載されている物件情報について万が一相違がございましたら、以下のページからご連絡ください
お問い合わせページ同じ建物の空室情報一覧 エルスタンザ文京白山 2階/東京都文京区白山4丁目
-
- 2階 0201号室
- 家賃
-
27.9
万円
(管理費等 15,000円)
- 管理費
- 15,000円
- 敷金/保証金
- 1ヶ月/--
- 礼金/償却
- --/--
- 間取り
- 2LDK
- 専有面積
- 56.67㎡
- その他
- 南向き
-
- 2階 0201号室
- 家賃
-
27.9
万円
(管理費等 15,000円)
- 管理費
- 15,000円
- 敷金/保証金
- 1ヶ月/--
- 礼金/償却
- --/--
- 間取り
- 2LDK
- 専有面積
- 56.67㎡
- その他
- 南向き
-
- 2階 0201号室
- 家賃
-
27.9
万円
(管理費等 15,000円)
- 管理費
- 15,000円
- 敷金/保証金
- 1ヶ月/--
- 礼金/償却
- --/--
- 間取り
- 2LDK
- 専有面積
- 56.67㎡
- その他
- 南向き
取扱い店舗 エルスタンザ文京白山 2階/東京都文京区白山4丁目
-
株式会社タウンハウジング東京 新大久保店
お問合せ番号:R01358-091051
国土交通大臣免許(1)第009926号女性スタッフ対応- 東京都新宿区百人町2丁目 10-3 東京風月堂大久保ビル2階
- 山手線 /新大久保駅
- 営業時間:10:00~19:00
- 定休日:水曜日
メールでお問合せする 電話でお問合せ
03-3365-5531
選択した物件をまとめて
建物ごとに探す
エルスタンザ文京白山 2階と同じ最寄り駅にある物件
エルスタンザ文京白山 2階と同じエリアにある物件
設備・条件から文京区の物件を再検索
設備・条件から白山駅の物件を再検索
設備・条件から千石駅の物件を再検索
設備・条件から本駒込駅の物件を再検索



























一人暮らしの女性に嬉しいポイントはこちら!