THEパームス東武練馬 7階/東京都練馬区北町5丁目(東武練馬駅)の賃貸物件詳細
-
空室状況を
聞いてみる -
電話でお問合せ
03-3922-8107
- お部屋の状況を確認する(無料)
-
電話でお問合せ
03-3922-8107
保証金 --/--
償却 1ヶ月/--
副都心線 / 平和台駅 徒歩16分
東武東上線 / 下赤塚駅 徒歩15分
有楽町線 / 地下鉄赤塚駅 徒歩9分
- ★当社掲載以外のお部屋もご紹介出来ます★
女性におすすめのポイント THEパームス東武練馬 7階/東京都練馬区北町5丁目
このお部屋は、東武東上線東武練馬駅から徒歩10分に位置するマンションです。また、東武練馬駅や、平和台駅などの複数駅が利用できるのでアクセスも便利です!
このお部屋はお風呂とトイレが別なので、それぞれ清潔&おしゃれにこだわることができます。また2階以上にあるお部屋で、路面から室内が見られないので女性の一人暮らしでも少し安心。
この建物はオートロックがあるので基本的には住人以外は入れないので安心ですね!
嬉しいのがこのお部屋は敷金がないところ。初期費用が抑えられますね!
スーパーやコンビニが徒歩分圏内に2件あるので一人暮らしに便利。最も近いのは徒歩2分の所にある、ファミリーマート練馬北町店!
もっと見る ▼
-
即入居 -
女子割 -
バス・
トイレ別 -
独立
洗面台 -
オートロック -
2階以上 -
システム
キッチン -
コンロ
二口 -
クロー
ゼット -
室内洗濯
機置き場
この物件に無料でお問合せ お問合せ内容を選択してね!
-
電話でお問合せ
03-3922-8107 -
株式会社タウンハウジング東京
大泉学園店
営業時間:10時から19時
基本物件情報 THEパームス東武練馬 7階/東京都練馬区北町5丁目
- 家賃/管理費
- 7.6万円/10,000円
- 敷金(保証金)/ 礼金(償却)
- --(--)/1ヶ月(--)
- 初期費用が気になる方は
お気軽にお問合せください! -
初期費用を株式会社タウンハウジング東京大泉学園店に聞いてみる!
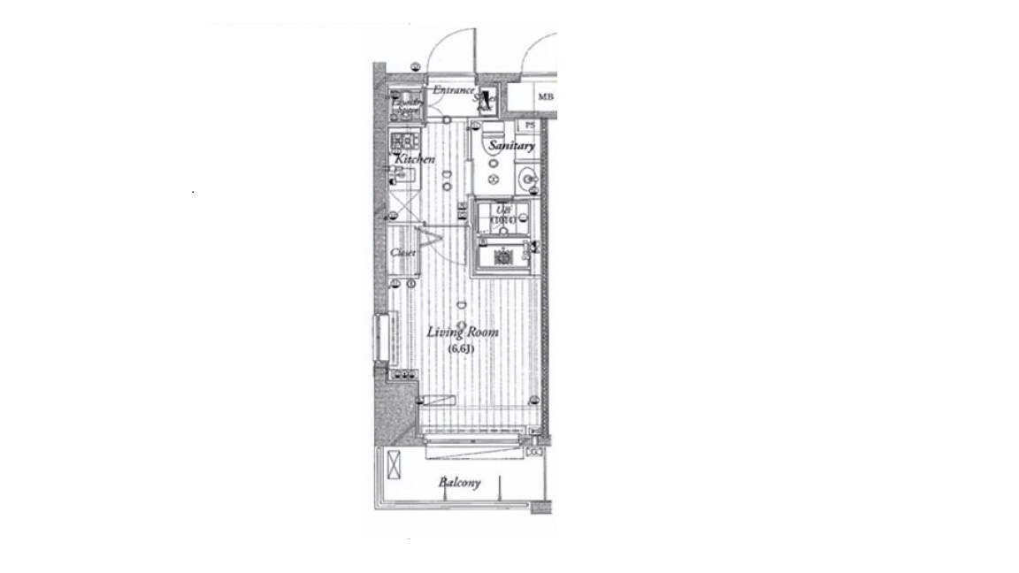
- 間取り/面積
-
1K
/21.24㎡
- 築年
- 2009年08月(築16年)
- 交通
-
東武東上線 / 東武練馬駅 徒歩10分
副都心線 / 平和台駅 徒歩16分
東武東上線 / 下赤塚駅 徒歩15分
有楽町線 / 地下鉄赤塚駅 徒歩9分
- 所在地
-
東京都 練馬区 北町 5丁目
地図・周辺情報を見る
- 階数/方位
- 7階(11階建て)
/北向き
- 空室数
- 同じ建物に空室があと10件あります
空室を見る
- 種別/構造
- マンション/鉄筋コンクリート造
-
電話でお問合せ
03-3922-8107
こだわり設備・特徴 THEパームス東武練馬 7階/東京都練馬区北町5丁目
- 入居時期・条件
-
応相談※詳細はお問い合わせください
/
保証人不要
/
ペット相談可
(飼育の場合:敷金1ヶ月増)
/
独身可
- 周辺環境
- 緑豊かな住宅地 / 2沿線利用可 / 閑静な住宅地 / 2駅利用可
- 収納
- 全居室収納 / 玄関収納 / シューズボックス1ヵ所 / クローゼット1ヵ所
- 放送・通信
-
※BS受信可
/
※CS受信可
/
光ファイバー
※インターネット接続環境、BS受信可、CATV、CS受信可について…利用料金は、共益費に含まれるタイプや個別に契約するタイプなど物件により異なります。詳しくは、物件お取り扱い不動産会社にお問合せください。
- その他設備・サービス
- 給湯 / 24時間ゴミ出し可 / 室内洗濯機置場 / 通風良好 / 都市ガス / 陽当り良好 / バルコニー / エレベーター1基 / 2面採光 / 公営上水道 / 全室エアコン / 敷地内ごみ置き場 / ダウンライト / 一部フローリング
- 建物タイプ・デザイン
- 外壁タイル張り / 分譲賃貸
- 駐輪・駐車
- 自転車置き場 / バイク置場
- 家賃保証会社など
- 保証会社必加入(その他:0.8ヶ月)※(初回)総賃料の80%~ (月額)総賃料の1%~(決済サービス料)500円(税抜)/月
- 保険
- --
- 備考
- 賃貸物件のお部屋探しはタウンハジング大泉学園店へ
- その他諸費用
- 敷金積み増し(ペット飼育:1ヶ月) / その他費用(鍵交換:38500円) / その他費用(契約事務手数料:5500円) / その他費用(室内消毒代:16500円) / その他費用(にじいろサポート24:2200円)
- 契約期間
- 一般契約:2年0ヶ月間
- 更新料
- 1.5ヶ月
- 取引形態
- 一般媒介
- 物件管理コード
- C01009094-000001138087687-0001
- 情報更新日
- 2025/11/30
- 次回更新予定日
- 2025/12/14
この物件に無料でお問合せ お問合せ内容を選択してね!
-
電話でお問合せ
03-3922-8107 -
株式会社タウンハウジング東京
大泉学園店
営業時間:10時から19時
-
電話でお問合せ
03-3922-8107
物件についてお問合せ THEパームス東武練馬 7階/東京都練馬区北町5丁目
【掲載物件情報について】
Woman.CHINTAIでは安心してお部屋探しのできるサイトを目指して、物件情報の精度向上に努めております。Woman.CHINTAIに掲載されている物件情報について万が一相違がございましたら、以下のページからご連絡ください
お問い合わせページ同じ建物の空室情報一覧 THEパームス東武練馬 7階/東京都練馬区北町5丁目
取扱い店舗 THEパームス東武練馬 7階/東京都練馬区北町5丁目
-
株式会社タウンハウジング東京 大泉学園店
お問合せ番号:R01138-087687
国土交通大臣免許(1)第009926号- 東京都練馬区東大泉1丁目 30-3 大泉不動産ビル1階
- 西武池袋線 /大泉学園駅
- 営業時間:10時から19時
- 定休日:毎週水曜日
選択した物件をまとめて
建物ごとに探す
THEパームス東武練馬 7階と同じ最寄り駅にある物件
THEパームス東武練馬 7階と同じエリアにある物件
設備・条件から練馬区の物件を再検索
設備・条件から東武練馬駅の物件を再検索
設備・条件から平和台駅の物件を再検索
設備・条件から下赤塚駅の物件を再検索



































一人暮らしの女性に嬉しいポイントはこちら!