クオリタス両国 6階/東京都墨田区両国1丁目(両国駅)の賃貸物件詳細
- 新着
-
空室状況を
聞いてみる -
電話でお問合せ
03-5641-5535
- お部屋の状況を確認する(無料)
-
電話でお問合せ
03-5641-5535
保証金 --/--
償却 56,500円/--
都営大江戸線 / 両国駅 徒歩11分
都営新宿線 / 森下駅 徒歩11分
- ★★★タウンハウジング東京の取り扱い物件★★★
女性におすすめのポイント クオリタス両国 6階/東京都墨田区両国1丁目
このお部屋は、総武線両国駅から徒歩7分に位置するマンションです。また、両国駅や、森下駅などの複数駅が利用できるのでアクセスも便利です!
このお部屋はお風呂とトイレが別なので、それぞれ清潔&おしゃれにこだわることができます。また2階以上にあるお部屋で、路面から室内が見られないので女性の一人暮らしでも少し安心。
この建物はオートロックがあるので基本的には住人以外は入れないので安心ですね!
嬉しいのがこのお部屋はネットの料金が無料なところ。動画なども見放題ですね!
スーパーやコンビニが徒歩分圏内に4件あるので一人暮らしに便利。最も近いのは徒歩5分の所にある、セブンイレブン墨田両国2丁目店!
もっと見る ▼
-
即入居 -
女子割 -
バス・
トイレ別 -
独立
洗面台 -
オートロック -
2階以上 -
システム
キッチン -
コンロ
二口 -
クロー
ゼット -
室内洗濯
機置き場
この物件に無料でお問合せ お問合せ内容を選択してね!
-
電話でお問合せ
03-5641-5535 -
株式会社タウンハウジング東京
人形町店
基本物件情報 クオリタス両国 6階/東京都墨田区両国1丁目
- 家賃/管理費
- 11.3万円/10,000円
- 敷金(保証金)/ 礼金(償却)
- --(--)/56,500円(--)
- 初期費用が気になる方は
お気軽にお問合せください! -
初期費用を株式会社タウンハウジング東京人形町店に聞いてみる!
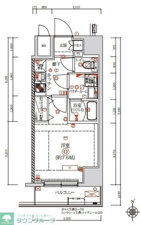
- 間取り/面積
-
1K
/25.45㎡
- 築年
- 2022年05月(築3年)
- 交通
-
総武線 / 両国駅 徒歩7分
都営大江戸線 / 両国駅 徒歩11分
都営新宿線 / 森下駅 徒歩11分
- 所在地
-
東京都 墨田区 両国 1丁目
地図・周辺情報を見る
- 階数/方位
- 6階(12階建て)
/南向き
- 空室数
- 同じ建物に空室があと2件あります
空室を見る
- 種別/構造
- マンション/鉄筋コンクリート造
-
電話でお問合せ
03-5641-5535
こだわり設備・特徴 クオリタス両国 6階/東京都墨田区両国1丁目
- 入居時期・条件
-
空予定(2026年01月中旬)
/
保証人不要
/
独身可
- 周辺環境
- 駅まで平坦 / 2沿線利用可 / 2駅利用可
- 収納
- 全居室収納 / 玄関収納 / シューズボックス1ヵ所 / クローゼット1ヵ所
- 位置
- 南向き / 全室南向き
- 放送・通信
-
※BS受信可
/
インターネット接続(月額利用料無料)
/
※CS受信可
/
LAN対応
※インターネット接続環境、BS受信可、CATV、CS受信可について…利用料金は、共益費に含まれるタイプや個別に契約するタイプなど物件により異なります。詳しくは、物件お取り扱い不動産会社にお問合せください。
- その他設備・サービス
- 給湯 / 24時間ゴミ出し可 / 室内洗濯機置場 / 冷房 / 通風良好 / 都市ガス / 陽当り良好 / バルコニー / エレベーター1基 / 南面リビング / 南面バルコニー / 24時間換気システム / 全室エアコン / 敷地内ごみ置き場 / 人感照明センサー / 全居室フローリング
- 駐輪・駐車
- 自転車置き場 / バイク置場
- 家賃保証会社など
- 保証会社必加入(その他:0.5ヶ月)※加入要■第一保証会社:エポス(初回料:40%、月次:無、更新料:10000円/1年or14000円/1年)■第二保証会社:JRAG(初回料:70%、月次:無、更新料:10000円/1年)
- 保険
- 損害保険加入要。
- 備考
- ★東京都を中心に関東人気エリアの賃貸マンション・アパート情報が豊富★★お部屋探しは首都圏に強いタウンハウジングにお任せください★~オンライン内見・相談も対応可能です~★
- その他諸費用
- その他費用(鍵交換:39600円)
- 契約期間
- 一般契約:2年0ヶ月間
- 更新料
- 1ヶ月
- 取引形態
- 一般媒介
- 物件管理コード
- C01009086-000000513241632-0001
- 情報更新日
- 2025/12/23
- 次回更新予定日
- 2026/01/15
この物件に無料でお問合せ お問合せ内容を選択してね!
-
電話でお問合せ
03-5641-5535 -
株式会社タウンハウジング東京
人形町店
-
電話でお問合せ
03-5641-5535
物件についてお問合せ クオリタス両国 6階/東京都墨田区両国1丁目
【掲載物件情報について】
Woman.CHINTAIでは安心してお部屋探しのできるサイトを目指して、物件情報の精度向上に努めております。Woman.CHINTAIに掲載されている物件情報について万が一相違がございましたら、以下のページからご連絡ください
お問い合わせページ取扱い店舗 クオリタス両国 6階/東京都墨田区両国1丁目
-
株式会社タウンハウジング東京 人形町店
お問合せ番号:R00513-241632
国土交通大臣免許(1)第009926号- 東京都中央区日本橋人形町1丁目 16-6 ルースタワー 1階
- 日比谷線 /人形町駅
選択した物件をまとめて
建物ごとに探す
クオリタス両国 6階と同じ最寄り駅にある物件
クオリタス両国 6階と同じエリアにある物件
設備・条件から墨田区の物件を再検索
設備・条件から両国駅の物件を再検索
設備・条件から森下駅の物件を再検索






























一人暮らしの女性に嬉しいポイントはこちら!