RELUXIA 森下II 5階/東京都墨田区立川2丁目(森下駅)の賃貸物件詳細
-
空室状況を
聞いてみる -
電話でお問合せ
03-3634-6055
- お部屋の状況を確認する(無料)
-
電話でお問合せ
03-3634-6055
保証金 --/--
償却 1ヶ月/--
都営新宿線 / 菊川駅 徒歩8分
都営大江戸線 / 清澄白河駅 徒歩18分
- お部屋探しはタウンハウジングまで!是非お問い合わせ下さい!
女性におすすめのポイント RELUXIA 森下II 5階/東京都墨田区立川2丁目
このお部屋は、都営大江戸線森下駅から徒歩7分に位置するマンションです。また、森下駅や、菊川駅などの複数駅が利用できるのでアクセスも便利です!
このお部屋はお風呂とトイレが別なので、それぞれ清潔&おしゃれにこだわることができます。また2階以上にあるお部屋で、路面から室内が見られないので女性の一人暮らしでも少し安心。
この建物はオートロックがあるので基本的には住人以外は入れないので安心ですね!
嬉しいのがこのお部屋はネットの料金が無料なところ。動画なども見放題ですね!
スーパーやコンビニが徒歩分圏内に3件あるので一人暮らしに便利。最も近いのは徒歩2分の所にある、セブンイレブン墨田菊川1丁目店!
もっと見る ▼
-
即入居 -
女子割 -
バス・
トイレ別 -
独立
洗面台 -
オートロック -
2階以上 -
システム
キッチン -
コンロ
二口 -
クロー
ゼット -
室内洗濯
機置き場
この物件に無料でお問合せ お問合せ内容を選択してね!
-
電話でお問合せ
03-3634-6055 -
株式会社タウンハウジング東京
錦糸町店
営業時間:10:00~19:00
基本物件情報 RELUXIA 森下II 5階/東京都墨田区立川2丁目
- 家賃/管理費
- 10.05万円/15,000円
- 敷金(保証金)/ 礼金(償却)
- --(--)/1ヶ月(--)
- 初期費用が気になる方は
お気軽にお問合せください! -
初期費用を株式会社タウンハウジング東京錦糸町店に聞いてみる!
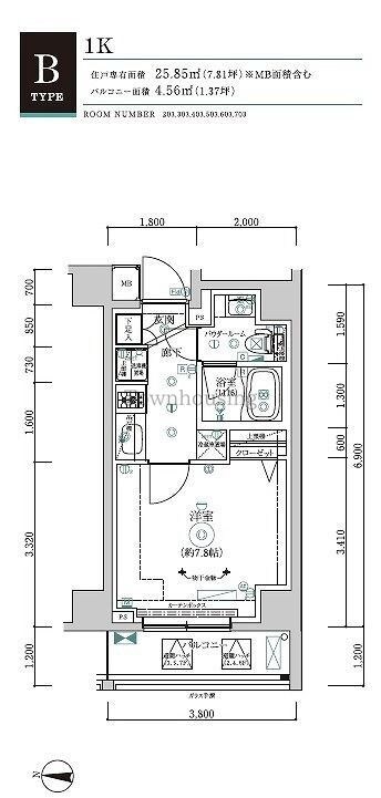
- 間取り/面積
-
1K
/25.85㎡
- 築年
- 2024年08月(築1年)
- 交通
-
都営大江戸線 / 森下駅 徒歩7分
都営新宿線 / 菊川駅 徒歩8分
都営大江戸線 / 清澄白河駅 徒歩18分
- 所在地
-
東京都 墨田区 立川 2丁目
地図・周辺情報を見る
- 階数/方位
- 5階(7階建て)
/西向き
- 空室数
- 同じ建物に空室があと5件あります
空室を見る
- 種別/構造
- マンション/鉄筋コンクリート造
-
電話でお問合せ
03-3634-6055
こだわり設備・特徴 RELUXIA 森下II 5階/東京都墨田区立川2丁目
- 入居時期・条件
-
空予定(2026年01月中旬)
/
保証人不要
/
ペット相談可
(飼育の場合:敷金1ヶ月増)
/
外国人可
/
独身可
- 周辺環境
- 駅まで平坦 / 3沿線利用可 / 閑静な住宅地 / 3駅利用可
- 収納
- 玄関収納 / シューズボックス1ヵ所 / クローゼット1ヵ所
- 位置
- 角部屋
- 放送・通信
-
※BS受信可
/
インターネット接続(月額利用料無料)
/
※CS受信可
/
光ファイバー
/
マルチメディアコンセント
※インターネット接続環境、BS受信可、CATV、CS受信可について…利用料金は、共益費に含まれるタイプや個別に契約するタイプなど物件により異なります。詳しくは、物件お取り扱い不動産会社にお問合せください。
- その他設備・サービス
- 給湯 / 24時間ゴミ出し可 / 室内洗濯機置場 / 冷房 / 通風良好 / 都市ガス / 陽当り良好 / バルコニー / エレベーター1基 / 追い焚き機能 / 公営上水道 / 照明1台 / 24時間換気システム / 全室エアコン / 敷地内ごみ置き場 / 人感照明センサー / 全居室フローリング
- 建物タイプ・デザイン
- 外壁タイル張り / 分譲賃貸
- 駐輪・駐車
- 自転車置き場
- 家賃保証会社など
- 保証会社必加入(その他:0.5ヶ月)※備考:入力なし
- 保険
- 損害保険加入要。
- 備考
- お部屋の詳細はどんなことでもお問い合わせください!【初期費用一部クレジット決済相談可】
- その他諸費用
- 敷金積み増し(ペット飼育:1ヶ月) / その他費用(鍵交換:22000円)
- 契約期間
- 一般契約:2年0ヶ月間
- 更新料
- 1ヶ月
- 取引形態
- 一般媒介
- 物件管理コード
- C01008956-000001200093151-0001
- 情報更新日
- 2025/12/05
- 次回更新予定日
- 2025/12/19
この物件に無料でお問合せ お問合せ内容を選択してね!
-
電話でお問合せ
03-3634-6055 -
株式会社タウンハウジング東京
錦糸町店
営業時間:10:00~19:00
-
電話でお問合せ
03-3634-6055
物件についてお問合せ RELUXIA 森下II 5階/東京都墨田区立川2丁目
【掲載物件情報について】
Woman.CHINTAIでは安心してお部屋探しのできるサイトを目指して、物件情報の精度向上に努めております。Woman.CHINTAIに掲載されている物件情報について万が一相違がございましたら、以下のページからご連絡ください
お問い合わせページ同じ建物の空室情報一覧 RELUXIA 森下II 5階/東京都墨田区立川2丁目
-
- 4階 404号室
- 家賃
-
18.8
万円
(管理費等 20,000円)
- 管理費
- 20,000円
- 敷金/保証金
- --/--
- 礼金/償却
- 1ヶ月/--
- 間取り
- 1LDK
- 専有面積
- 40.95㎡
- その他
- 南向き
-
- 4階 404号室
- 家賃
-
18.8
万円
(管理費等 20,000円)
- 管理費
- 20,000円
- 敷金/保証金
- --/--
- 礼金/償却
- 1ヶ月/--
- 間取り
- 1LDK
- 専有面積
- 40.95㎡
- その他
- 南向き
-
- 5階 503号室
- 家賃
-
10.05
万円
(管理費等 15,000円)
- 管理費
- 15,000円
- 敷金/保証金
- --/--
- 礼金/償却
- 1ヶ月/--
- 間取り
- 1K
- 専有面積
- 25.85㎡
- その他
- 西向き
取扱い店舗 RELUXIA 森下II 5階/東京都墨田区立川2丁目
-
株式会社タウンハウジング東京 錦糸町店
お問合せ番号:R01200-093151
東京都知事免許(1)第9926号- 東京都墨田区江東橋2丁目 14-6
- 半蔵門線 /錦糸町駅
- 営業時間:10:00~19:00
- 定休日:水曜日
選択した物件をまとめて
建物ごとに探す
RELUXIA 森下II 5階と同じ最寄り駅にある物件
RELUXIA 森下II 5階と同じエリアにある物件
設備・条件から墨田区の物件を再検索
設備・条件から森下駅の物件を再検索
設備・条件から菊川駅の物件を再検索



















一人暮らしの女性に嬉しいポイントはこちら!