MAXIVCROS高島平MIRAIS 2階/東京都板橋区高島平7丁目(新高島平駅)の賃貸物件詳細
- 即入居可
-
空室状況を
聞いてみる -
電話でお問合せ
03-3576-6810
- お部屋の状況を確認する(無料)
-
電話でお問合せ
03-3576-6810
保証金 --/--
償却 --/--
都営三田線 / 高島平駅 徒歩7分
都営三田線 / 西高島平駅 徒歩17分
- ★お部屋探しはタウンハウジング板橋店にお任せください★
女性におすすめのポイント MAXIVCROS高島平MIRAIS 2階/東京都板橋区高島平7丁目
このお部屋は、都営三田線新高島平駅から徒歩6分に位置するマンションです。また、新高島平駅や、高島平駅などの複数駅が利用できるのでアクセスも便利です!
このお部屋はお風呂とトイレが別なので、それぞれ清潔&おしゃれにこだわることができます。また2階以上にあるお部屋で、路面から室内が見られないので女性の一人暮らしでも少し安心。
この建物はオートロックがあるので基本的には住人以外は入れないので安心ですね!
嬉しいのがこのお部屋は礼金がないところ。初期費用が抑えられますね!
スーパーやコンビニが徒歩分圏内に4件あるので一人暮らしに便利。最も近いのは徒歩4分の所にある、アコレ高島平7丁目店!
もっと見る ▼
-
即入居 -
女子割 -
バス・
トイレ別 -
独立
洗面台 -
オートロック -
2階以上 -
システム
キッチン -
コンロ
二口 -
クロー
ゼット -
室内洗濯
機置き場
この物件に無料でお問合せ お問合せ内容を選択してね!
-
電話でお問合せ
03-3576-6810 -
株式会社タウンハウジング東京
板橋店
営業時間:10:00~19:00
基本物件情報 MAXIVCROS高島平MIRAIS 2階/東京都板橋区高島平7丁目
- 家賃/管理費
- 9.6万円/10,000円
- 敷金(保証金)/ 礼金(償却)
- --(--)/--(--)
- 初期費用が気になる方は
お気軽にお問合せください! -
初期費用を株式会社タウンハウジング東京板橋店に聞いてみる!
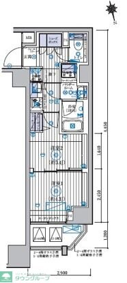
- 間取り/面積
-
2K/26.03㎡
- 築年
- 2025年11月(1年未満)
- 交通
-
都営三田線 / 新高島平駅 徒歩6分
都営三田線 / 高島平駅 徒歩7分
都営三田線 / 西高島平駅 徒歩17分
- 所在地
-
東京都 板橋区 高島平 7丁目
地図・周辺情報を見る
- 階数/方位
- 2階(8階建て)
- 空室数
- 同じ建物に空室があと10件あります
空室を見る
- 種別/構造
- マンション/鉄筋コンクリート造
-
電話でお問合せ
03-3576-6810
こだわり設備・特徴 MAXIVCROS高島平MIRAIS 2階/東京都板橋区高島平7丁目
- 入居時期・条件
-
即入居
/
保証人不要
/
ペット相談可
(飼育の場合:敷金2ヶ月増)
/
二人入居可
/
ルームシェア可
- セキュリティ
- オートロック / 宅配ボックス / TVモニターフォン / インターホン
- 周辺環境
- 2駅利用可
- 収納
- クローゼット1ヵ所
- 放送・通信
-
※BS受信可
/
インターネット接続(月額利用料無料)
※インターネット接続環境、BS受信可、CATV、CS受信可について…利用料金は、共益費に含まれるタイプや個別に契約するタイプなど物件により異なります。詳しくは、物件お取り扱い不動産会社にお問合せください。
- その他設備・サービス
- 室内洗濯機置場 / 都市ガス / エレベーター1基 / 公営上水道 / エアコン1台
- 建物タイプ・デザイン
- 分譲賃貸
- 家賃保証会社など
- 保証会社必加入(その他:実費)※初回保証委託料:月額総支払額の50~100%、年間保証料12,000円 ミライズインシュア/日本セーフティ/ルームバンクインシュア/クレディセゾン:初回保証料:月額総支払額の50~100%、年間保証…
- 保険
- 損害保険加入要。
- 備考
- 1年未満の解約:賃料+管理費の2ヵ月 1年以上2年未満の解約:賃料+管理費1ヵ月 解約予告:2ヶ月前
- その他諸費用
- 敷金積み増し(ペット飼育:2ヶ月) / その他費用(契約事務手数料(税別):15000円)
- 契約期間
- 一般契約:2年0ヶ月間
- 更新料
- 1ヶ月
- 取引形態
- 一般媒介
- 物件管理コード
- C01008932-000001142082678-0001
- 情報更新日
- 2025/12/10
- 次回更新予定日
- 2025/12/24
この物件に無料でお問合せ お問合せ内容を選択してね!
-
電話でお問合せ
03-3576-6810 -
株式会社タウンハウジング東京
板橋店
営業時間:10:00~19:00
-
電話でお問合せ
03-3576-6810
物件についてお問合せ MAXIVCROS高島平MIRAIS 2階/東京都板橋区高島平7丁目
【掲載物件情報について】
Woman.CHINTAIでは安心してお部屋探しのできるサイトを目指して、物件情報の精度向上に努めております。Woman.CHINTAIに掲載されている物件情報について万が一相違がございましたら、以下のページからご連絡ください
お問い合わせページ同じ建物の空室情報一覧 MAXIVCROS高島平MIRAIS 2階/東京都板橋区高島平7丁目
取扱い店舗 MAXIVCROS高島平MIRAIS 2階/東京都板橋区高島平7丁目
-
株式会社タウンハウジング東京 板橋店
お問合せ番号:R01142-082678
国土交通大臣免許(1)第9926号女性スタッフ対応- 東京都北区滝野川7丁目 9-7
- 埼京線・川越線 /板橋駅
- 営業時間:10:00~19:00
- 定休日:水曜日
選択した物件をまとめて
建物ごとに探す
MAXIVCROS高島平MIRAIS 2階と同じ最寄り駅にある物件
MAXIVCROS高島平MIRAIS 2階と同じエリアにある物件
設備・条件から板橋区の物件を再検索
設備・条件から新高島平駅の物件を再検索
設備・条件から高島平駅の物件を再検索
設備・条件から西高島平駅の物件を再検索































一人暮らしの女性に嬉しいポイントはこちら!