ザ・パークハビオ滝野川 4階/東京都北区滝野川6丁目(西巣鴨駅)の賃貸物件詳細
- 新着
-
空室状況を
聞いてみる -
電話でお問合せ
03-3576-6810
- お部屋の状況を確認する(無料)
-
電話でお問合せ
03-3576-6810
保証金 1ヶ月/--
償却 1ヶ月/--
埼京線・川越線 / 板橋駅 徒歩12分
都電荒川線 / 新庚申塚駅 徒歩6分
都営三田線 / 新板橋駅 徒歩12分
- ★お部屋探しはタウンハウジングにお任せください★
女性におすすめのポイント ザ・パークハビオ滝野川 4階/東京都北区滝野川6丁目
このお部屋は、都営三田線西巣鴨駅から徒歩2分に位置する駅近のマンションです。また、西巣鴨駅や、板橋駅などの複数駅が利用できるのでアクセスも便利です!
このお部屋はお風呂とトイレが別なので、それぞれ清潔&おしゃれにこだわることができます。また2階以上にあるお部屋で、路面から室内が見られないので女性の一人暮らしでも少し安心。
この建物はオートロックがあるので基本的には住人以外は入れないので安心ですね!
嬉しいのがこのお部屋はネットの料金が無料なところ。動画なども見放題ですね!
スーパーやコンビニが徒歩分圏内に3件あるので一人暮らしに便利。最も近いのは徒歩1分の所にある、ファミリーマート西巣鴨店!
もっと見る ▼
-
即入居 -
女子割 -
バス・
トイレ別 -
独立
洗面台 -
オートロック -
2階以上 -
システム
キッチン -
コンロ
二口 -
クロー
ゼット -
室内洗濯
機置き場
この物件に無料でお問合せ お問合せ内容を選択してね!
-
電話でお問合せ
03-3576-6810 -
株式会社タウンハウジング東京
板橋店
営業時間:10:00~19:00
基本物件情報 ザ・パークハビオ滝野川 4階/東京都北区滝野川6丁目
- 家賃/管理費
- 22.8万円/25,000円
- 敷金(保証金)/ 礼金(償却)
- 1ヶ月(--)/1ヶ月(--)
- 初期費用が気になる方は
お気軽にお問合せください! -
初期費用を株式会社タウンハウジング東京板橋店に聞いてみる!
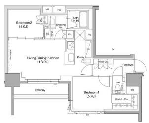
- 間取り/面積
-
2LDK/55.12㎡
- 築年
- 2023年02月(築2年)
- 交通
-
都営三田線 / 西巣鴨駅 徒歩2分
埼京線・川越線 / 板橋駅 徒歩12分
都電荒川線 / 新庚申塚駅 徒歩6分
都営三田線 / 新板橋駅 徒歩12分
- 所在地
-
東京都 北区 滝野川 6丁目
地図・周辺情報を見る
- 階数/方位
- 4階(14階建て)
/南西向き
- 空室数
- 同じ建物に空室があと10件あります
空室を見る
- 種別/構造
- マンション/鉄筋コンクリート造
-
電話でお問合せ
03-3576-6810
こだわり設備・特徴 ザ・パークハビオ滝野川 4階/東京都北区滝野川6丁目
- 入居時期・条件
-
空予定(2026年02月中旬)
/
保証人不要
/
ペット相談可
(飼育の場合:敷金1ヶ月増)
/
楽器相談可
/
独身可
- セキュリティ
- オートロック / 防犯カメラ / 宅配ボックス / TVモニターフォン / インターホン
- 周辺環境
- 3沿線利用可 / 3駅利用可
- 収納
- シューズボックス1ヵ所 / クローゼット2ヵ所
- 位置
- 高層階
- 放送・通信
-
※BS受信可
/
インターネット接続(月額利用料無料)
/
※CS受信可
/
ネット専用回線
※インターネット接続環境、BS受信可、CATV、CS受信可について…利用料金は、共益費に含まれるタイプや個別に契約するタイプなど物件により異なります。詳しくは、物件お取り扱い不動産会社にお問合せください。
- その他設備・サービス
- 給湯 / 室内洗濯機置場 / 冷房 / 都市ガス / バルコニー / エレベーター1基 / 追い焚き機能 / 公営上水道 / エアコン1台 / 敷地内ごみ置き場 / 全居室フローリング
- 駐輪・駐車
-
有料駐車場1 台(33,000円/月)
※駐車場の金額表示は1台分の表示となります。
- 家賃保証会社など
- 保証会社必加入(日本セーフティー:0.5ヶ月)※初年度委託料:賃料等合計額の50%(最低保証料2万円)2年目以降:1年毎1万円
- 保険
- 損害保険加入要。
- 備考
- 豊島区・板橋区・北区でのお部屋探しはタウンハウジングにお任せください。
- その他諸費用
- 敷金積み増し(ペット飼育:1ヶ月) / その他費用(鍵交換:33000円) / その他費用(24時間サポート:16500円)
- 契約期間
- 一般契約:2年0ヶ月間
- 更新料
- 1ヶ月
- 取引形態
- 一般媒介
- 物件管理コード
- C01008932-000001142041212-0001
- 情報更新日
- 2025/12/14
- 次回更新予定日
- 2026/01/06
この物件に無料でお問合せ お問合せ内容を選択してね!
-
電話でお問合せ
03-3576-6810 -
株式会社タウンハウジング東京
板橋店
営業時間:10:00~19:00
-
電話でお問合せ
03-3576-6810
周辺情報 ザ・パークハビオ滝野川 4階/東京都北区滝野川6丁目
- スーパー
- スーパー(スーパーみらべる西巣鴨店)まで 50m
- スーパー
- スーパー(肉のハナマサ滝野川店)まで 460m
- コンビニ
- コンビニ(ファミリーマート西巣鴨店)まで 10m
- ドラッグストア
- ドラッグストア(クリエイトエス・ディー北区滝野川店)まで 310m
- 電気量販店/ホームセンター
- 電気量販店/ホームセンター(ケーヨーデイツー東十条店)まで 3210m
- 大学/短大/専門学校
- 大学/短大/専門学校(私立東京家政大学)まで 1630m
- 郵便局
- 郵便局(西巣鴨四郵便局)まで 220m
- その他飲食(ファミレスなど)
- その他飲食(ファミレスなど)(サイゼリヤ板橋東口店)まで 830m
- 公園
- 公園(清水坂公園)まで 3310m
- その他飲食(ファミレスなど)
- その他飲食(ファミレスなど)(マクドナルド西巣鴨駅前店)まで 400m
物件についてお問合せ ザ・パークハビオ滝野川 4階/東京都北区滝野川6丁目
【掲載物件情報について】
Woman.CHINTAIでは安心してお部屋探しのできるサイトを目指して、物件情報の精度向上に努めております。Woman.CHINTAIに掲載されている物件情報について万が一相違がございましたら、以下のページからご連絡ください
お問い合わせページ同じ建物の空室情報一覧 ザ・パークハビオ滝野川 4階/東京都北区滝野川6丁目
-
- 4階 402号室
- 家賃
-
12.6
万円
(管理費等 15,000円)
- 管理費
- 15,000円
- 敷金/保証金
- 1ヶ月/--
- 礼金/償却
- 1ヶ月/--
- 間取り
- 1DK
- 専有面積
- 25.8㎡
- その他
- 北東向き
-
- 4階 402号室
- 家賃
-
12.6
万円
(管理費等 15,000円)
- 管理費
- 15,000円
- 敷金/保証金
- 1ヶ月/--
- 礼金/償却
- 1ヶ月/--
- 間取り
- 1DK
- 専有面積
- 25.8㎡
- その他
- 北東向き
-
- 4階 402号室
- 家賃
-
12.6
万円
(管理費等 15,000円)
- 管理費
- 15,000円
- 敷金/保証金
- 1ヶ月/--
- 礼金/償却
- 1ヶ月/--
- 間取り
- 1DK
- 専有面積
- 25.8㎡
- その他
- 北東向き
取扱い店舗 ザ・パークハビオ滝野川 4階/東京都北区滝野川6丁目
-
株式会社タウンハウジング東京 板橋店
お問合せ番号:R01142-041212
国土交通大臣免許(1)第9926号女性スタッフ対応- 東京都北区滝野川7丁目 9-7
- 埼京線・川越線 /板橋駅
- 営業時間:10:00~19:00
- 定休日:水曜日
選択した物件をまとめて
建物ごとに探す
ザ・パークハビオ滝野川 4階と同じ最寄り駅にある物件
ザ・パークハビオ滝野川 4階と同じエリアにある物件
設備・条件から北区の物件を再検索
設備・条件から西巣鴨駅の物件を再検索
設備・条件から板橋駅の物件を再検索
設備・条件から新庚申塚駅の物件を再検索
設備・条件から新板橋駅の物件を再検索

































一人暮らしの女性に嬉しいポイントはこちら!