エステムコート立川ノースプレミア 3階/東京都立川市曙町3丁目(立川駅)の賃貸物件詳細
- 新着
-
空室状況を
聞いてみる -
電話でお問合せ
042-565-3360
- お部屋の状況を確認する(無料)
-
電話でお問合せ
042-565-3360
保証金 1ヶ月/--
償却 1ヶ月/--
南武線 / 西国立駅 徒歩15分
多摩都市モノレール / 立川北駅 徒歩10分
- ★ご来店用お客様駐車場完備・タウンハウジング東大和市店★
女性におすすめのポイント エステムコート立川ノースプレミア 3階/東京都立川市曙町3丁目
このお部屋は、中央線立川駅から徒歩8分に位置するマンションです。また、立川駅や、西国立駅などの複数駅が利用できるのでアクセスも便利です!
このお部屋はお風呂とトイレが別なので、それぞれ清潔&おしゃれにこだわることができます。また2階以上にあるお部屋で、路面から室内が見られないので女性の一人暮らしでも少し安心。
この建物はオートロックがあるので基本的には住人以外は入れないので安心ですね!
嬉しいのがこのお部屋はネットの料金が無料なところ。動画なども見放題ですね!
スーパーやコンビニが徒歩分圏内に3件あるので一人暮らしに便利。最も近いのは徒歩9分の所にある、マルエツ立川駅北口店!
もっと見る ▼
-
即入居 -
女子割 -
バス・
トイレ別 -
独立
洗面台 -
オートロック -
2階以上 -
システム
キッチン -
コンロ
二口 -
クロー
ゼット -
室内洗濯
機置き場
この物件に無料でお問合せ お問合せ内容を選択してね!
-
電話でお問合せ
042-565-3360 -
株式会社タウンハウジング東京
東大和市店
営業時間:午前10時から午後19時まで
基本物件情報 エステムコート立川ノースプレミア 3階/東京都立川市曙町3丁目
- 家賃/管理費
- 8.69万円/8,100円
- 敷金(保証金)/ 礼金(償却)
- 1ヶ月(--)/1ヶ月(--)
- 初期費用が気になる方は
お気軽にお問合せください! -
初期費用を株式会社タウンハウジング東京東大和市店に聞いてみる!
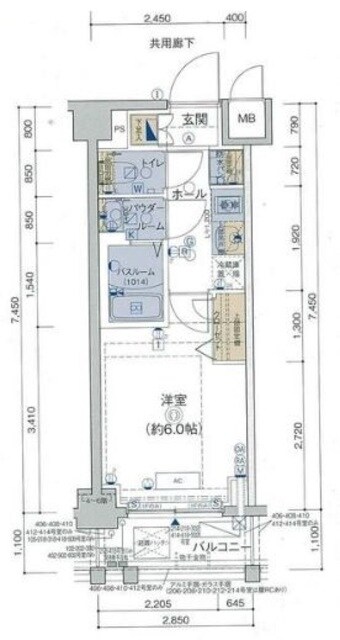
- 間取り/面積
-
1K
/20.96㎡
- 築年
- 2021年06月(築4年)
- 交通
-
中央線 / 立川駅 徒歩8分
南武線 / 西国立駅 徒歩15分
多摩都市モノレール / 立川北駅 徒歩10分
- 所在地
-
東京都 立川市 曙町 3丁目
地図・周辺情報を見る
- 階数/方位
- 3階(6階建て)
/南東向き
- 空室数
- 同じ建物に空室があと10件あります
空室を見る
- 種別/構造
- マンション/鉄筋コンクリート造
-
電話でお問合せ
042-565-3360
こだわり設備・特徴 エステムコート立川ノースプレミア 3階/東京都立川市曙町3丁目
- 入居時期・条件
-
応相談※詳細はお問い合わせください
/
保証人不要
/
ペット相談可
/
二人入居可
/
独身可
- セキュリティ
- 24時間緊急通報システム / オートロック / 管理人有り / 防犯カメラ / 宅配ボックス / セキュリティー会社加入済 / ダブルロックキー / TVモニターフォン / ディンプルキー / インターホン
- 周辺環境
- 駅まで平坦 / 3沿線利用可 / 2駅利用可
- 収納
- シューズボックス1ヵ所 / クローゼット1ヵ所
- 放送・通信
-
※BS受信可
/
インターネット接続(月額利用料無料)
/
※CS受信可
/
光ファイバー
/
※CATV
※インターネット接続環境、BS受信可、CATV、CS受信可について…利用料金は、共益費に含まれるタイプや個別に契約するタイプなど物件により異なります。詳しくは、物件お取り扱い不動産会社にお問合せください。
- その他設備・サービス
- 給湯 / 24時間ゴミ出し可 / 室内洗濯機置場 / 冷房 / 玄関ホール / 通風良好 / フローリング / 眺望良好 / 都市ガス / バルコニー / エレベーター1基 / 公営上水道 / 照明1台 / エアコン1台 / 24時間換気システム / 敷地内ごみ置き場 / 人感照明センサー / 複層ガラス
- 建物タイプ・デザイン
- 外壁タイル張り / 分譲賃貸 / デザイナーズ
- 駐輪・駐車
- 自転車置き場
- 家賃保証会社など
- 保証会社必加入(その他:0.5ヶ月)※実費/初回賃料総額50% 毎月賃料総額1.5%(年会費はなし)/エステム保証サービス
- 保険
- 損害保険加入要。
- 備考
- お客様ご来店用駐車場あります!車でも是非ご来店下さい!オンライン内見やオンライン接客、オンライン契約も、もちろん可能です!
- その他諸費用
- その他費用(鍵交換:38500円) / その他費用(安心クラブ入会金:5500円) / その他費用(安心クラブ会費:990円)
- 契約期間
- 一般契約:2年0ヶ月間
- 更新料
- 1ヶ月
- 取引形態
- 一般媒介
- 物件管理コード
- C01008927-000001126058871-0001
- 情報更新日
- 2025/12/10
- 次回更新予定日
- 2025/12/24
この物件に無料でお問合せ お問合せ内容を選択してね!
-
電話でお問合せ
042-565-3360 -
株式会社タウンハウジング東京
東大和市店
営業時間:午前10時から午後19時まで
-
電話でお問合せ
042-565-3360
物件についてお問合せ エステムコート立川ノースプレミア 3階/東京都立川市曙町3丁目
【掲載物件情報について】
Woman.CHINTAIでは安心してお部屋探しのできるサイトを目指して、物件情報の精度向上に努めております。Woman.CHINTAIに掲載されている物件情報について万が一相違がございましたら、以下のページからご連絡ください
お問い合わせページ同じ建物の空室情報一覧 エステムコート立川ノースプレミア 3階/東京都立川市曙町3丁目
-
- 1階 102号室
- 家賃
-
8.54
万円
(管理費等 8,100円)
- 管理費
- 8,100円
- 敷金/保証金
- 85,400円/--
- 礼金/償却
- 85,400円/--
- 間取り
- 1K
- 専有面積
- 20.96㎡
- その他
- 南西向き
-
- 1階 102号室
- 家賃
-
8.54
万円
(管理費等 8,100円)
- 管理費
- 8,100円
- 敷金/保証金
- 85,400円/--
- 礼金/償却
- 85,400円/--
- 間取り
- 1K
- 専有面積
- 20.96㎡
- その他
- 南西向き
-
- 1階 102号室
- 家賃
-
8.54
万円
(管理費等 8,100円)
- 管理費
- 8,100円
- 敷金/保証金
- 85,400円/--
- 礼金/償却
- 85,400円/--
- 間取り
- 1K
- 専有面積
- 20.96㎡
- その他
- 南西向き
取扱い店舗 エステムコート立川ノースプレミア 3階/東京都立川市曙町3丁目
-
株式会社タウンハウジング東京 東大和市店
お問合せ番号:R01126-058871
国土交通大臣免許(1)第9926号女性スタッフ対応- 東京都東大和市南街5丁目97-8
- 西武拝島線 /東大和市駅
- 営業時間:午前10時から午後19時まで
- 定休日:水曜日
メールでお問合せする 電話でお問合せ
042-565-3360
選択した物件をまとめて
建物ごとに探す
エステムコート立川ノースプレミア 3階と同じ最寄り駅にある物件
エステムコート立川ノースプレミア 3階と同じエリアにある物件
設備・条件から立川市の物件を再検索
設備・条件から立川駅の物件を再検索
設備・条件から西国立駅の物件を再検索









































一人暮らしの女性に嬉しいポイントはこちら!