スカイコートエクセレント荻窪 6階/東京都杉並区荻窪5丁目(荻窪駅)の賃貸物件詳細
- 即入居可
-
空室状況を
聞いてみる -
電話でお問合せ
0422-53-9070
- お部屋の状況を確認する(無料)
-
電話でお問合せ
0422-53-9070
保証金 1ヶ月/--
償却 --/--
総武線 / 西荻窪駅 徒歩21分
総武線 / 阿佐ケ谷駅 徒歩23分
- インターネット上の物件はほぼ全てご紹介可能♪まとめてご紹介致します♪お気軽にお問合せください!お部屋探しはタウンハウジングまで☆新着情報毎日更新☆
女性におすすめのポイント スカイコートエクセレント荻窪 6階/東京都杉並区荻窪5丁目
このお部屋は、丸ノ内線荻窪駅から徒歩2分に位置する駅近のマンションです。また、荻窪駅や、西荻窪駅などの複数駅が利用できるのでアクセスも便利です!
このお部屋は2階以上にあるお部屋で、路面から室内が見られないので女性の一人暮らしでも少し安心。また洗濯機も室内に置けるので、天候にかかわらず洗濯ができ、洗濯機自体も長持ちする傾向にあります。
この建物はオートロックがあるので基本的には住人以外は入れないので安心ですね!
嬉しいのがこのお部屋は礼金がないところ。初期費用が抑えられますね!
スーパーやコンビニが徒歩分圏内に2件あるので一人暮らしに便利。最も近いのは徒歩1分の所にある、セブンイレブン!
もっと見る ▼
-
即入居 -
女子割 -
バス・
トイレ別 -
独立
洗面台 -
オートロック -
2階以上 -
システム
キッチン -
コンロ
二口 -
クロー
ゼット -
室内洗濯
機置き場
この物件に無料でお問合せ お問合せ内容を選択してね!
-
電話でお問合せ
0422-53-9070 -
株式会社タウンハウジング東京
三鷹店
営業時間:10:00~19:00
基本物件情報 スカイコートエクセレント荻窪 6階/東京都杉並区荻窪5丁目
- 家賃/管理費
- 6.75万円/6,000円
- 敷金(保証金)/ 礼金(償却)
- 1ヶ月(--)/--(--)
- 初期費用が気になる方は
お気軽にお問合せください! -
初期費用を株式会社タウンハウジング東京三鷹店に聞いてみる!
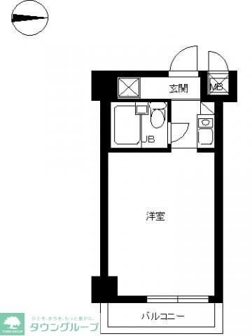
- 間取り/面積
-
1R
/18.56㎡
- 築年
- 1987年03月(築38年)
- 交通
-
丸ノ内線 / 荻窪駅 徒歩2分
総武線 / 西荻窪駅 徒歩21分
総武線 / 阿佐ケ谷駅 徒歩23分
- 所在地
-
東京都 杉並区 荻窪 5丁目
地図・周辺情報を見る
- 階数/方位
- 6階(9階建て)
/東向き
- 空室数
- 同じ建物に空室があと10件あります
空室を見る
- 種別/構造
- マンション/鉄筋コンクリート造
-
電話でお問合せ
0422-53-9070
こだわり設備・特徴 スカイコートエクセレント荻窪 6階/東京都杉並区荻窪5丁目
- 入居時期・条件
-
即入居
/
保証人不要
- バス・トイレ
- 洗面台 / シャワー
- キッチン
- システムキッチン / IHクッキングヒーター付
- セキュリティ
- オートロック / インターホン
- 周辺環境
- 駅前 / 2沿線利用可 / 閑静な住宅地
- 収納
- シューズボックス1ヵ所
- 放送・通信
-
電話2回線
/
光ファイバー
/
※CATV
※インターネット接続環境、BS受信可、CATV、CS受信可について…利用料金は、共益費に含まれるタイプや個別に契約するタイプなど物件により異なります。詳しくは、物件お取り扱い不動産会社にお問合せください。
- その他設備・サービス
- 給湯 / 24時間ゴミ出し可 / 室内洗濯機置場 / 陽当り良好 / バルコニー / フラットフロア / エレベーター1基 / 照明1台 / エアコン1台 / 24時間換気システム / 敷地内ごみ置き場 / 全居室フローリング
- 建物タイプ・デザイン
- 外壁タイル張り / 分譲賃貸
- 駐輪・駐車
- 自転車置き場
- 家賃保証会社など
- 保証会社必加入(その他:0.5ヶ月)※※〔初回保証委託料〕総賃料×50%〔月々〕総賃料×1.4%(例)契約期間または就労期
- 保険
- --
- 備考
- インターネット上の物件はほぼ全てご紹介可能♪まとめてご紹介致します♪お気軽にお問合せください!お部屋探しはタウンハウジングまで☆新着情報毎日更新☆経験豊富なスタッフがお待ちしております♪
- その他諸費用
- 退去時必須(解約事務手数料:13200円) / その他費用(鍵交換:22000円) / その他費用(消火剤:5500円) / その他費用(少額短期保険:1000円) / その他費用(生活安心パック:1650円) / その他費用(給湯基本料:1500円)
- 契約期間
- 定借契約:2年0ヶ月間
- 更新料
- 1.5ヶ月
- 取引形態
- 一般媒介
- 物件管理コード
- C01008913-000001105101338-0001
- 情報更新日
- 2025/12/16
- 次回更新予定日
- 2026/01/08
この物件に無料でお問合せ お問合せ内容を選択してね!
-
電話でお問合せ
0422-53-9070 -
株式会社タウンハウジング東京
三鷹店
営業時間:10:00~19:00
-
電話でお問合せ
0422-53-9070
物件についてお問合せ スカイコートエクセレント荻窪 6階/東京都杉並区荻窪5丁目
【掲載物件情報について】
Woman.CHINTAIでは安心してお部屋探しのできるサイトを目指して、物件情報の精度向上に努めております。Woman.CHINTAIに掲載されている物件情報について万が一相違がございましたら、以下のページからご連絡ください
お問い合わせページ同じ建物の空室情報一覧 スカイコートエクセレント荻窪 6階/東京都杉並区荻窪5丁目
取扱い店舗 スカイコートエクセレント荻窪 6階/東京都杉並区荻窪5丁目
-
株式会社タウンハウジング東京 三鷹店
お問合せ番号:R01105-101338
国土交通大臣免許(1)第9926号- 東京都武蔵野市西久保1-1-1 井野ビル1階
- 総武線 /三鷹駅
- 営業時間:10:00~19:00
- 定休日:水曜日
メールでお問合せする 電話でお問合せ
0422-53-9070
選択した物件をまとめて
建物ごとに探す
スカイコートエクセレント荻窪 6階と同じ最寄り駅にある物件
スカイコートエクセレント荻窪 6階と同じエリアにある物件
設備・条件から杉並区の物件を再検索
設備・条件から荻窪駅の物件を再検索
設備・条件から西荻窪駅の物件を再検索
設備・条件から阿佐ケ谷駅の物件を再検索
































一人暮らしの女性に嬉しいポイントはこちら!