メインステージ立川III 3階/東京都立川市錦町2丁目(立川駅)の賃貸物件詳細
- 新着
- 即入居可
-
空室状況を
聞いてみる -
電話でお問合せ
042-500-5700
- お部屋の状況を確認する(無料)
-
電話でお問合せ
042-500-5700
保証金 --/--
償却 1ヶ月/--
南武線 / 立川駅 徒歩8分
多摩都市モノレール / 立川南駅 徒歩7分
- お部屋探しはタウンハウジング昭島店にお任せください
女性におすすめのポイント メインステージ立川III 3階/東京都立川市錦町2丁目
このお部屋は、中央線立川駅から徒歩8分に位置するマンションです。また、立川駅や、立川南駅などの複数駅が利用できるのでアクセスも便利です!
このお部屋はお風呂とトイレが別なので、それぞれ清潔&おしゃれにこだわることができます。また2階以上にあるお部屋で、路面から室内が見られないので女性の一人暮らしでも少し安心。
この建物はオートロックがあるので基本的には住人以外は入れないので安心ですね!
嬉しいのがこのお部屋はネットの料金が無料なところ。動画なども見放題ですね!
スーパーやコンビニが徒歩分圏内に3件あるので一人暮らしに便利。最も近いのは徒歩4分の所にある、セブンイレブン立川錦町2丁目店!
もっと見る ▼
-
即入居 -
女子割 -
バス・
トイレ別 -
独立
洗面台 -
オートロック -
2階以上 -
システム
キッチン -
コンロ
二口 -
クロー
ゼット -
室内洗濯
機置き場
この物件に無料でお問合せ お問合せ内容を選択してね!
-
電話でお問合せ
042-500-5700 -
株式会社タウンハウジング東京
昭島店
営業時間:10:00~19:00
基本物件情報 メインステージ立川III 3階/東京都立川市錦町2丁目
- 家賃/管理費
- 8.5万円/13,000円
- 敷金(保証金)/ 礼金(償却)
- --(--)/1ヶ月(--)
- 初期費用が気になる方は
お気軽にお問合せください! -
初期費用を株式会社タウンハウジング東京昭島店に聞いてみる!
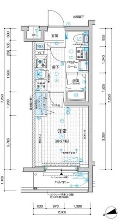
- 間取り/面積
-
1K
/21.02㎡
- 築年
- 2020年07月(築5年)
- 交通
-
中央線 / 立川駅 徒歩8分
南武線 / 立川駅 徒歩8分
多摩都市モノレール / 立川南駅 徒歩7分
- 所在地
-
東京都 立川市 錦町 2丁目
地図・周辺情報を見る
- 階数/方位
- 3階(5階建て)
/西向き
- 空室数
- 同じ建物に空室があと4件あります
空室を見る
- 種別/構造
- マンション/鉄筋コンクリート造
-
電話でお問合せ
042-500-5700
こだわり設備・特徴 メインステージ立川III 3階/東京都立川市錦町2丁目
- 入居時期・条件
-
即入居
/
保証人不要
/
ペット相談可
/
独身可
- キッチン
- システムキッチン / コンロ2口以上
- セキュリティ
- 24時間緊急通報システム / オートロック / 防犯カメラ / 宅配ボックス / セキュリティー会社加入済 / ダブルロックキー / TVモニターフォン / ディンプルキー / インターホン
- 周辺環境
- 平坦地 / 駅まで平坦 / 3沿線利用可 / 緑豊かな住宅地 / 閑静な住宅地 / 2駅利用可
- 収納
- シューズボックス1ヵ所 / クローゼット1ヵ所
- 放送・通信
-
※BS受信可
/
インターネット接続(月額利用料無料)
/
※CS受信可
/
光ファイバー
※インターネット接続環境、BS受信可、CATV、CS受信可について…利用料金は、共益費に含まれるタイプや個別に契約するタイプなど物件により異なります。詳しくは、物件お取り扱い不動産会社にお問合せください。
- その他設備・サービス
- 給湯 / 室内物干し設備 / 24時間ゴミ出し可 / 室内洗濯機置場 / 冷房 / 玄関ホール / 通風良好 / 眺望良好 / 都市ガス / 陽当り良好 / バルコニー / エレベーター1基 / 公営上水道 / 風除室 / エアコン1台 / 24時間換気システム / 敷地内ごみ置き場 / ダウンライト / 複層ガラス / 全居室フローリング
- 建物タイプ・デザイン
- 外壁タイル張り / 分譲賃貸 / デザイナーズ
- 駐輪・駐車
- 自転車置き場 / バイク置場
- 家賃保証会社など
- 保証会社必加入(その他:0.5ヶ月)※初回賃料総額50%~
- 保険
- 損害保険加入要。
- 備考
- お部屋探しはタウンハウジング昭島店へ!♪
- その他諸費用
- その他費用(鍵交換:27500円) / その他費用(室内清掃費用:55000円)
- 契約期間
- 一般契約:2年0ヶ月間
- 更新料
- 1ヶ月
- 取引形態
- 一般媒介
- 物件管理コード
- C01008907-000001099057266-0001
- 情報更新日
- 2025/12/20
- 次回更新予定日
- 2026/01/12
この物件に無料でお問合せ お問合せ内容を選択してね!
-
電話でお問合せ
042-500-5700 -
株式会社タウンハウジング東京
昭島店
営業時間:10:00~19:00
-
電話でお問合せ
042-500-5700
周辺情報 メインステージ立川III 3階/東京都立川市錦町2丁目
- ショッピングセンター/アウトレットモール
- ショッピングセンター/アウトレットモール(アレアレア2)まで 454m
- ショッピングセンター/アウトレットモール
- ショッピングセンター/アウトレットモール(伊勢丹)まで 937m
- ショッピングセンター/アウトレットモール
- ショッピングセンター/アウトレットモール(ビックカメラ立川店)まで 964m
- スーパー
- スーパー(キッチンコート立川店)まで 554m
- スーパー
- スーパー(いなげや立川南口店)まで 558m
- コンビニ
- コンビニ(セブンイレブン立川錦町2丁目店)まで 293m
- ドラッグストア
- ドラッグストア(サンドラッグ立川南口店)まで 643m
- 小学校
- 小学校(立川市立第七小学校)まで 480m
- 幼稚園/保育園
- 幼稚園/保育園(多摩幼稚園)まで 443m
- 病院
- 病院(立川相互病院)まで 609m
物件についてお問合せ メインステージ立川III 3階/東京都立川市錦町2丁目
【掲載物件情報について】
Woman.CHINTAIでは安心してお部屋探しのできるサイトを目指して、物件情報の精度向上に努めております。Woman.CHINTAIに掲載されている物件情報について万が一相違がございましたら、以下のページからご連絡ください
お問い合わせページ同じ建物の空室情報一覧 メインステージ立川III 3階/東京都立川市錦町2丁目
取扱い店舗 メインステージ立川III 3階/東京都立川市錦町2丁目
-
株式会社タウンハウジング東京 昭島店
お問合せ番号:R01099-057266
国土交通大臣免許(1)第9926号- 東京都昭島市昭和町2-2-11 瀧澤ビル1階
- 青梅線 /昭島駅
- 営業時間:10:00~19:00
- 定休日:水曜日
メールでお問合せする 電話でお問合せ
042-500-5700
選択した物件をまとめて
建物ごとに探す
メインステージ立川III 3階と同じ最寄り駅にある物件
メインステージ立川III 3階と同じエリアにある物件
設備・条件から立川市の物件を再検索
設備・条件から立川駅の物件を再検索



























一人暮らしの女性に嬉しいポイントはこちら!