HF駒沢公園レジデンスタワー 1階/東京都世田谷区駒沢2丁目(駒沢大学駅)の賃貸物件詳細
-
空室状況を
聞いてみる -
電話でお問合せ
03-3425-4888
- お部屋の状況を確認する(無料)
-
電話でお問合せ
03-3425-4888
保証金 1ヶ月/--
償却 --/--
東急世田谷線 / 松陰神社前駅 徒歩19分
東急田園都市線 / 桜新町駅 徒歩18分
東急世田谷線 / 西太子堂駅 徒歩22分
- ★タウンハウジングにお任せ下さい★2023年度全国仲介件数第2位(全国賃貸新聞2024掲載)★
女性におすすめのポイント HF駒沢公園レジデンスタワー 1階/東京都世田谷区駒沢2丁目
このお部屋は、東急田園都市線駒沢大学駅から徒歩2分に位置する駅近のマンションです。また、駒沢大学駅や、松陰神社前駅などの複数駅が利用できるのでアクセスも便利です!
このお部屋はお風呂とトイレが別なので、それぞれ清潔&おしゃれにこだわることができます。また独立洗面台があって収納やコンセントも使えるので、女性の身支度にはとても便利!
この建物はオートロックがあるので基本的には住人以外は入れないので安心ですね!
嬉しいのがこのお部屋は礼金がないところ。初期費用が抑えられますね!
スーパーやコンビニが徒歩分圏内に4件あるので一人暮らしに便利。最も近いのは徒歩3分の所にある、セブンイレブン!
もっと見る ▼
-
即入居 -
女子割 -
バス・
トイレ別 -
独立
洗面台 -
オートロック -
2階以上 -
システム
キッチン -
コンロ
二口 -
クロー
ゼット -
室内洗濯
機置き場
この物件に無料でお問合せ お問合せ内容を選択してね!
-
電話でお問合せ
03-3425-4888 -
株式会社タウンハウジング東京
経堂店
基本物件情報 HF駒沢公園レジデンスタワー 1階/東京都世田谷区駒沢2丁目
- 家賃/管理費
- 23.7万円/8,000円
- 敷金(保証金)/ 礼金(償却)
- 1ヶ月(--)/--(--)
- 初期費用が気になる方は
お気軽にお問合せください! -
初期費用を株式会社タウンハウジング東京経堂店に聞いてみる!
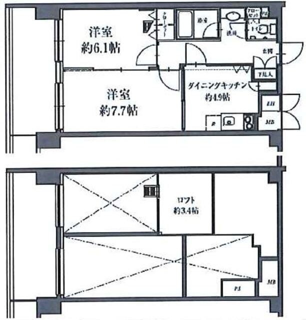
- 間取り/面積
-
1LDK
/44.62㎡
- 築年
- 2001年01月(築24年)
- 交通
-
東急田園都市線 / 駒沢大学駅 徒歩2分
東急世田谷線 / 松陰神社前駅 徒歩19分
東急田園都市線 / 桜新町駅 徒歩18分
東急世田谷線 / 西太子堂駅 徒歩22分
- 所在地
-
東京都 世田谷区 駒沢 2丁目
地図・周辺情報を見る
- 階数/方位
- 1階(30階建て)
/西向き
- 空室数
- 同じ建物に空室があと7件あります
空室を見る
- 種別/構造
- マンション/鉄筋コンクリート造
-
電話でお問合せ
03-3425-4888
こだわり設備・特徴 HF駒沢公園レジデンスタワー 1階/東京都世田谷区駒沢2丁目
- 入居時期・条件
-
応相談※詳細はお問い合わせください
/
保証人不要
/
二人入居可
/
独身可
- バス・トイレ
- 洗面台 / 洗面化粧台 / 暖房便座 / バス・トイレ別 / 温水洗浄便座 / シャワー
- キッチン
- ディスポーザー / システムキッチン / コンロ3口 / IHクッキングヒーター付 / コンロ2口以上 / 浄水器
- セキュリティ
- 24時間有人管理 / 24時間緊急通報システム / オートロック / 防犯カメラ / 宅配ボックス / TVモニターフォン / インターホン
- 周辺環境
- 駅まで平坦 / 駅前 / 2沿線利用可
- 収納
- シューズボックス1ヵ所 / クローゼット1ヵ所
- 放送・通信
-
※BS受信可
/
インターネット接続(月額利用料無料)
/
※CS受信可
※インターネット接続環境、BS受信可、CATV、CS受信可について…利用料金は、共益費に含まれるタイプや個別に契約するタイプなど物件により異なります。詳しくは、物件お取り扱い不動産会社にお問合せください。
- その他設備・サービス
- 給湯 / 24時間ゴミ出し可 / 室内洗濯機置場 / 玄関ホール / 通風良好 / 眺望良好 / オール電化 / バルコニー / 集会場 / エレベーター1基 / 乾燥機付 / ゲストルーム / フロントサービス / 公営上水道 / エアコン1台 / 敷地内ごみ置き場 / 全居室フローリング / LDK12畳以上
- 建物タイプ・デザイン
- 外壁タイル張り / タワーマンション
- 駐輪・駐車
-
有料駐車場1 台(37,800円/月)
※駐車場の金額表示は1台分の表示となります。
- 家賃保証会社など
- 保証会社必加入(その他:0.4ヶ月)※実費/初回保証料:賃料等の40%/貸主指定の保証会社
- 保険
- 損害保険加入要。
- 備考
- ★お部屋探しは地域密着のタウンハウジングにお任せ下さい★毎日新着情報更新中★タウンハウジングはオンラインでご対応可能!★初期費用・諸条件お気軽にご相談下さい★
- その他諸費用
- その他費用(鍵交換:19800円) / その他費用(安心入居サポート:16200円)
- 契約期間
- 一般契約:2年0ヶ月間
- 更新料
- 1ヶ月
- 取引形態
- 一般媒介
- 物件管理コード
- C01008888-000001094078346-0001
- 情報更新日
- 2025/12/08
- 次回更新予定日
- 2025/12/22
この物件に無料でお問合せ お問合せ内容を選択してね!
-
電話でお問合せ
03-3425-4888 -
株式会社タウンハウジング東京
経堂店
-
電話でお問合せ
03-3425-4888
物件についてお問合せ HF駒沢公園レジデンスタワー 1階/東京都世田谷区駒沢2丁目
【掲載物件情報について】
Woman.CHINTAIでは安心してお部屋探しのできるサイトを目指して、物件情報の精度向上に努めております。Woman.CHINTAIに掲載されている物件情報について万が一相違がございましたら、以下のページからご連絡ください
お問い合わせページ同じ建物の空室情報一覧 HF駒沢公園レジデンスタワー 1階/東京都世田谷区駒沢2丁目
取扱い店舗 HF駒沢公園レジデンスタワー 1階/東京都世田谷区駒沢2丁目
-
株式会社タウンハウジング東京 経堂店
お問合せ番号:R01094-078346
国土交通大臣免許(1)第9926号女性スタッフ対応- 東京都世田谷区経堂1-24-16
- 小田急小田原線 /経堂駅
メールでお問合せする 電話でお問合せ
03-3425-4888
選択した物件をまとめて
建物ごとに探す
HF駒沢公園レジデンスタワー 1階と同じ最寄り駅にある物件
HF駒沢公園レジデンスタワー 1階と同じエリアにある物件
設備・条件から世田谷区の物件を再検索
設備・条件から駒沢大学駅の物件を再検索
設備・条件から松陰神社前駅の物件を再検索
設備・条件から桜新町駅の物件を再検索
設備・条件から西太子堂駅の物件を再検索




















一人暮らしの女性に嬉しいポイントはこちら!