ラフィスタ錦糸町II 2階/東京都江東区毛利2丁目(錦糸町駅)の賃貸物件詳細
-
空室状況を
聞いてみる -
電話でお問合せ
03-3689-1511
- お部屋の状況を確認する(無料)
-
電話でお問合せ
03-3689-1511
保証金 1ヶ月/--
償却 1ヶ月/--
都営新宿線 / 住吉駅 徒歩7分
都営新宿線 / 西大島駅 徒歩15分
東武亀戸線 / 亀戸駅 徒歩15分
- 情報量ナンバーワンのタウンハウジング西葛西店にお任せ下さい!
女性におすすめのポイント ラフィスタ錦糸町II 2階/東京都江東区毛利2丁目
このお部屋は、総武線錦糸町駅から徒歩7分に位置するマンションです。また、錦糸町駅や、住吉駅などの複数駅が利用できるのでアクセスも便利です!
このお部屋はお風呂とトイレが別なので、それぞれ清潔&おしゃれにこだわることができます。また2階以上にあるお部屋で、路面から室内が見られないので女性の一人暮らしでも少し安心。
この建物はオートロックがあるので基本的には住人以外は入れないので安心ですね!
嬉しいのがこのお部屋はネットの料金が無料なところ。動画なども見放題ですね!
スーパーやコンビニが徒歩分圏内に5件あるので一人暮らしに便利。最も近いのは徒歩5分の所にある、セブンイレブン墨田江東橋4丁目店!
もっと見る ▼
-
即入居 -
女子割 -
バス・
トイレ別 -
独立
洗面台 -
オートロック -
2階以上 -
システム
キッチン -
コンロ
二口 -
クロー
ゼット -
室内洗濯
機置き場
この物件に無料でお問合せ お問合せ内容を選択してね!
-
電話でお問合せ
03-3689-1511 -
株式会社タウンハウジング東京
西葛西店
営業時間:10:00~19:00
基本物件情報 ラフィスタ錦糸町II 2階/東京都江東区毛利2丁目
- 家賃/管理費
- 10.4万円/15,000円
- 敷金(保証金)/ 礼金(償却)
- 1ヶ月(--)/1ヶ月(--)
- 初期費用が気になる方は
お気軽にお問合せください! -
初期費用を株式会社タウンハウジング東京西葛西店に聞いてみる!
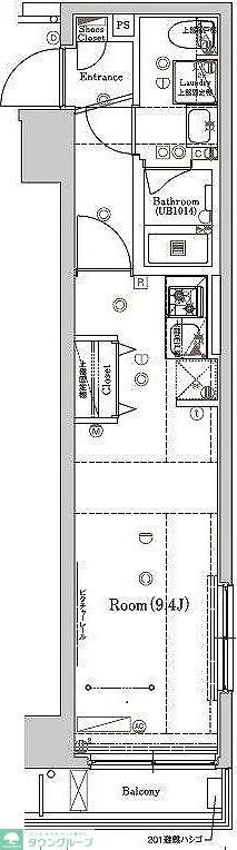
- 間取り/面積
-
1R
/25.71㎡
- 築年
- 2019年07月(築6年)
- 交通
-
総武線 / 錦糸町駅 徒歩7分
都営新宿線 / 住吉駅 徒歩7分
都営新宿線 / 西大島駅 徒歩15分
東武亀戸線 / 亀戸駅 徒歩15分
- 所在地
-
東京都 江東区 毛利 2丁目
地図・周辺情報を見る
- 階数/方位
- 2階(7階建て)
/西向き
- 空室数
- 同じ建物に空室があと10件あります
空室を見る
- 種別/構造
- マンション/鉄筋コンクリート造
-
電話でお問合せ
03-3689-1511
こだわり設備・特徴 ラフィスタ錦糸町II 2階/東京都江東区毛利2丁目
- 入居時期・条件
-
空予定(2026年01月下旬)
/
保証人不要
/
独身可
- 周辺環境
- 駅まで平坦 / 3沿線利用可 / 2駅利用可
- 収納
- 全居室収納 / 玄関収納 / シューズボックス1ヵ所 / クローゼット1ヵ所
- 位置
- 角部屋
- 放送・通信
-
※BS受信可
/
インターネット接続(月額利用料無料)
/
※CS受信可
/
マルチメディアコンセント
/
LAN対応
※インターネット接続環境、BS受信可、CATV、CS受信可について…利用料金は、共益費に含まれるタイプや個別に契約するタイプなど物件により異なります。詳しくは、物件お取り扱い不動産会社にお問合せください。
- その他設備・サービス
- 給湯 / 24時間ゴミ出し可 / 室内洗濯機置場 / 冷房 / 通風良好 / 都市ガス / バルコニー / エレベーター1基 / 南西角住戸 / 2面採光 / 全室2面採光 / 照明1台 / 24時間換気システム / 全室エアコン / 敷地内ごみ置き場 / 人感照明センサー / 全居室フローリング
- 建物タイプ・デザイン
- 外壁タイル張り / 分譲賃貸 / デザイナーズ
- 駐輪・駐車
- バイク置場
- 家賃保証会社など
- 保証会社任意加入(その他:0.5ヶ月)※初回保証料:総賃料50%
- 保険
- 損害保険加入要。
- 備考
- 江戸川区・江東区・市川市・浦安市 情報量ナンバーワン!東京メトロ東西線 都営新宿線 JR京葉線でのお部屋探しはタウンハウジング西葛西店にお任せ下さい!ステキなお部屋探しを全力でサポート致します!
- その他諸費用
- その他費用(鍵交換:22000円) / その他費用(契約事務手数料:11000円) / その他費用(室内抗菌処理代:17600円) / その他費用(入居中サポート:21450円)
- 契約期間
- 一般契約:2年0ヶ月間
- 更新料
- 142500円
- 取引形態
- 一般媒介
- 物件管理コード
- C01008704-000000512142524-0001
- 情報更新日
- 2025/12/07
- 次回更新予定日
- 2025/12/21
この物件に無料でお問合せ お問合せ内容を選択してね!
-
電話でお問合せ
03-3689-1511 -
株式会社タウンハウジング東京
西葛西店
営業時間:10:00~19:00
-
電話でお問合せ
03-3689-1511
周辺情報 ラフィスタ錦糸町II 2階/東京都江東区毛利2丁目
物件についてお問合せ ラフィスタ錦糸町II 2階/東京都江東区毛利2丁目
【掲載物件情報について】
Woman.CHINTAIでは安心してお部屋探しのできるサイトを目指して、物件情報の精度向上に努めております。Woman.CHINTAIに掲載されている物件情報について万が一相違がございましたら、以下のページからご連絡ください
お問い合わせページ同じ建物の空室情報一覧 ラフィスタ錦糸町II 2階/東京都江東区毛利2丁目
-
- 1階 103号室
- 家賃
-
9.9
万円
(管理費等 15,000円)
- 管理費
- 15,000円
- 敷金/保証金
- 99,000円/--
- 礼金/償却
- 99,000円/--
- 間取り
- 1R
- 専有面積
- 25.59㎡
- その他
- 西向き
-
- 1階 103号室
- 家賃
-
9.9
万円
(管理費等 15,000円)
- 管理費
- 15,000円
- 敷金/保証金
- 99,000円/--
- 礼金/償却
- 99,000円/--
- 間取り
- 1R
- 専有面積
- 25.59㎡
- その他
- 西向き
-
- 1階 103号室
- 家賃
-
9.9
万円
(管理費等 15,000円)
- 管理費
- 15,000円
- 敷金/保証金
- 99,000円/--
- 礼金/償却
- 99,000円/--
- 間取り
- 1R
- 専有面積
- 25.59㎡
- その他
- 西向き
-
- 2階 201号室
- 家賃
-
10.4
万円
(管理費等 15,000円)
- 管理費
- 15,000円
- 敷金/保証金
- 1ヶ月/--
- 礼金/償却
- 1ヶ月/--
- 間取り
- 1R
- 専有面積
- 25.71㎡
- その他
- 西向き
-
- 2階 201号室
- 家賃
-
10.4
万円
(管理費等 15,000円)
- 管理費
- 15,000円
- 敷金/保証金
- 1ヶ月/--
- 礼金/償却
- 1ヶ月/--
- 間取り
- 1R
- 専有面積
- 25.71㎡
- その他
- 西向き
-
- 2階 201号室
- 家賃
-
10.4
万円
(管理費等 15,000円)
- 管理費
- 15,000円
- 敷金/保証金
- 1ヶ月/--
- 礼金/償却
- 1ヶ月/--
- 間取り
- 1R
- 専有面積
- 25.71㎡
- その他
- 西向き
取扱い店舗 ラフィスタ錦糸町II 2階/東京都江東区毛利2丁目
-
株式会社タウンハウジング東京 西葛西店
お問合せ番号:R00512-142524
国土交通大臣免許(1)第9926号- 東京都江戸川区西葛西5丁目6-8
- 東西線 /西葛西駅
- 営業時間:10:00~19:00
- 定休日:水曜日
選択した物件をまとめて
建物ごとに探す
ラフィスタ錦糸町II 2階と同じ最寄り駅にある物件
ラフィスタ錦糸町II 2階と同じエリアにある物件
設備・条件から江東区の物件を再検索
設備・条件から錦糸町駅の物件を再検索
設備・条件から住吉駅の物件を再検索
設備・条件から西大島駅の物件を再検索






















一人暮らしの女性に嬉しいポイントはこちら!