ARCOBALENO TAKENOTSUKA 7階/東京都足立区竹の塚2丁目(竹ノ塚駅)の賃貸物件詳細
- 新着
- 即入居可
-
空室状況を
聞いてみる -
電話でお問合せ
03-5629-3801
- お部屋の状況を確認する(無料)
-
電話でお問合せ
03-5629-3801
保証金 --/--
償却 --/--
東武伊勢崎線・スカイツリーライン / 西新井駅 徒歩21分
東武大師線 / 大師前駅 徒歩28分
- 情報量ナンバーワンのタウンハウジング西新井店にお任せ下さい!
女性におすすめのポイント ARCOBALENO TAKENOTSUKA 7階/東京都足立区竹の塚2丁目
このお部屋は、東武伊勢崎線・スカイツリーライン竹ノ塚駅から徒歩9分に位置するマンションです。また、竹ノ塚駅や、西新井駅などの複数駅が利用できるのでアクセスも便利です!
このお部屋はお風呂とトイレが別なので、それぞれ清潔&おしゃれにこだわることができます。また2階以上にあるお部屋で、路面から室内が見られないので女性の一人暮らしでも少し安心。
この建物はオートロックがあるので基本的には住人以外は入れないので安心ですね!
嬉しいのがこのお部屋は礼金がないところ。初期費用が抑えられますね!
スーパーやコンビニが徒歩分圏内に6件あるので一人暮らしに便利。最も近いのは徒歩4分の所にある、ローソン!
もっと見る ▼
-
即入居 -
女子割 -
バス・
トイレ別 -
独立
洗面台 -
オートロック -
2階以上 -
システム
キッチン -
コンロ
二口 -
クロー
ゼット -
室内洗濯
機置き場
この物件に無料でお問合せ お問合せ内容を選択してね!
-
電話でお問合せ
03-5629-3801 -
株式会社タウンハウジング東京
青砥店
営業時間:10:00~19:00
基本物件情報 ARCOBALENO TAKENOTSUKA 7階/東京都足立区竹の塚2丁目
- 家賃/管理費
- 15.5万円/20,000円
- 敷金(保証金)/ 礼金(償却)
- --(--)/--(--)
- 初期費用が気になる方は
お気軽にお問合せください! -
初期費用を株式会社タウンハウジング東京青砥店に聞いてみる!
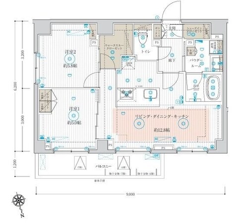
- 間取り/面積
-
2LDK/56.34㎡
- 築年
- 2024年07月(築1年)
- 交通
-
東武伊勢崎線・スカイツリーライン / 竹ノ塚駅 徒歩9分
東武伊勢崎線・スカイツリーライン / 西新井駅 徒歩21分
東武大師線 / 大師前駅 徒歩28分
- 所在地
-
東京都 足立区 竹の塚 2丁目
地図・周辺情報を見る
- 階数/方位
- 7階(9階建て)
/北向き
- 空室数
- 同じ建物に空室があと10件あります
空室を見る
- 種別/構造
- マンション/鉄筋コンクリート造
-
電話でお問合せ
03-5629-3801
こだわり設備・特徴 ARCOBALENO TAKENOTSUKA 7階/東京都足立区竹の塚2丁目
- 入居時期・条件
-
即入居
/
保証人不要
/
ペット相談可
(飼育の場合:敷金1ヶ月増)
- セキュリティ
- オートロック / 防犯カメラ / 宅配ボックス / TVモニターフォン / インターホン
- 周辺環境
- 2沿線利用可 / 2駅利用可
- 収納
- シューズウォークインクローゼット / シューズボックス1ヵ所 / クローゼット2ヵ所 / ウォークインクローゼット1ヵ所
- 放送・通信
- インターネット接続(月額利用料無料)
- その他設備・サービス
- 給湯 / 室内洗濯機置場 / 冷房 / 都市ガス / バルコニー / エレベーター1基 / 追い焚き機能 / 2面採光 / 公営上水道 / エアコン1台 / 全居室フローリング
- 駐輪・駐車
-
近隣駐車場1 台※近隣駐車場距離:200m
※駐車場の金額表示は1台分の表示となります。
- 家賃保証会社など
- 保証会社必加入(その他:実費)※初回保証委託料:月額賃料の50%、継続保証委託料:15,000円/年
- 保険
- 損害保険加入要。
- 備考
- その他インターネット上の物件も取り扱い可能です!まとめてご案内可能ですので是非ご利用下さいませ!WEB相談・WEB内見・IT重説に対応。来店不要でご契約まで可能です。
- その他諸費用
- 敷金積み増し(ペット飼育:1ヶ月) / その他費用(鍵交換:30000円) / その他費用(室内清掃費用:60000円) / その他費用(エアコン内部洗浄代1台につき:15000円) / その他費用(安心入居サポート:15000円)
- 契約期間
- 一般契約:2年0ヶ月間
- 更新料
- 1ヶ月
- 取引形態
- 一般媒介
- 物件管理コード
- C01008700-000000510164057-0001
- 情報更新日
- 2025/12/12
- 次回更新予定日
- 2025/12/26
この物件に無料でお問合せ お問合せ内容を選択してね!
-
電話でお問合せ
03-5629-3801 -
株式会社タウンハウジング東京
青砥店
営業時間:10:00~19:00
-
電話でお問合せ
03-5629-3801
物件についてお問合せ ARCOBALENO TAKENOTSUKA 7階/東京都足立区竹の塚2丁目
【掲載物件情報について】
Woman.CHINTAIでは安心してお部屋探しのできるサイトを目指して、物件情報の精度向上に努めております。Woman.CHINTAIに掲載されている物件情報について万が一相違がございましたら、以下のページからご連絡ください
お問い合わせページ同じ建物の空室情報一覧 ARCOBALENO TAKENOTSUKA 7階/東京都足立区竹の塚2丁目
-
- 1階 104号室
- 家賃
-
7.8
万円
(管理費等 15,000円)
- 管理費
- 15,000円
- 敷金/保証金
- --/--
- 礼金/償却
- --/--
- 間取り
- 2K
- 専有面積
- 25.41㎡
- その他
- 北向き
-
- 1階 104号室
- 家賃
-
7.8
万円
(管理費等 15,000円)
- 管理費
- 15,000円
- 敷金/保証金
- --/--
- 礼金/償却
- --/--
- 間取り
- 2K
- 専有面積
- 25.41㎡
- その他
- 北向き
-
- 1階 104号室
- 家賃
-
7.8
万円
(管理費等 15,000円)
- 管理費
- 15,000円
- 敷金/保証金
- --/--
- 礼金/償却
- --/--
- 間取り
- 2K
- 専有面積
- 25.41㎡
- その他
- 北向き
-
- 5階 501号室
- 家賃
-
15.3
万円
(管理費等 20,000円)
- 管理費
- 20,000円
- 敷金/保証金
- --/--
- 礼金/償却
- --/--
- 間取り
- 2LDK
- 専有面積
- 56.34㎡
- その他
- 北向き
-
- 5階 501号室
- 家賃
-
15.3
万円
(管理費等 20,000円)
- 管理費
- 20,000円
- 敷金/保証金
- --/--
- 礼金/償却
- --/--
- 間取り
- 2LDK
- 専有面積
- 56.34㎡
- その他
- 北向き
-
- 5階 501号室
- 家賃
-
15.3
万円
(管理費等 20,000円)
- 管理費
- 20,000円
- 敷金/保証金
- --/--
- 礼金/償却
- --/--
- 間取り
- 2LDK
- 専有面積
- 56.34㎡
- その他
- 北向き
取扱い店舗 ARCOBALENO TAKENOTSUKA 7階/東京都足立区竹の塚2丁目
-
株式会社タウンハウジング東京 青砥店
お問合せ番号:R00510-164057
国土交通大臣免許(1)第9926号- 東京都葛飾区青戸3-34-6 ソアーハウス1階
- 京成本線 /青砥駅
- 営業時間:10:00~19:00
- 定休日:水曜日
選択した物件をまとめて
建物ごとに探す
沿線・最寄駅から再検索
ARCOBALENO TAKENOTSUKA 7階と同じ最寄り駅にある物件
ARCOBALENO TAKENOTSUKA 7階と同じエリアにある物件
設備・条件から足立区の物件を再検索
設備・条件から竹ノ塚駅の物件を再検索
設備・条件から西新井駅の物件を再検索
設備・条件から大師前駅の物件を再検索

























一人暮らしの女性に嬉しいポイントはこちら!