ステージグランデ秋葉原 3階/東京都台東区台東2丁目(新御徒町駅)の賃貸物件詳細
- 新着
-
空室状況を
聞いてみる -
電話でお問合せ
03-5615-1300
- お部屋の状況を確認する(無料)
-
電話でお問合せ
03-5615-1300
保証金 1ヶ月/--
償却 1ヶ月/1ヶ月
山手線 / 秋葉原駅 徒歩11分
銀座線 / 末広町駅 徒歩9分
総武線 / 浅草橋駅 徒歩17分
- お部屋探しは、タウンハウジングにお任せください!お一人お一人様に合ったお部屋をお探し致します。分からないことは何でもご相談くださいませ。
女性におすすめのポイント ステージグランデ秋葉原 3階/東京都台東区台東2丁目
このお部屋は、都営大江戸線新御徒町駅から徒歩8分に位置するマンションです。また、新御徒町駅や、秋葉原駅などの複数駅が利用できるのでアクセスも便利です!
このお部屋はお風呂とトイレが別なので、それぞれ清潔&おしゃれにこだわることができます。また2階以上にあるお部屋で、路面から室内が見られないので女性の一人暮らしでも少し安心。
この建物はオートロックがあるので基本的には住人以外は入れないので安心ですね!
嬉しいのがこのお部屋はネットの料金が無料なところ。動画なども見放題ですね!
スーパーやコンビニが徒歩分圏内に4件あるので一人暮らしに便利。最も近いのは徒歩3分の所にある、ローソン!
もっと見る ▼
-
即入居 -
女子割 -
バス・
トイレ別 -
独立
洗面台 -
オートロック -
2階以上 -
システム
キッチン -
コンロ
二口 -
クロー
ゼット -
室内洗濯
機置き場
この物件に無料でお問合せ お問合せ内容を選択してね!
-
電話でお問合せ
03-5615-1300 -
株式会社タウンハウジング東京
日暮里店
営業時間:10:00~19:00
基本物件情報 ステージグランデ秋葉原 3階/東京都台東区台東2丁目
- 家賃/管理費
- 16.5万円/10,000円
- 敷金(保証金)/ 礼金(償却)
- 1ヶ月(--)/1ヶ月(1ヶ月)
- 初期費用が気になる方は
お気軽にお問合せください! -
初期費用を株式会社タウンハウジング東京日暮里店に聞いてみる!
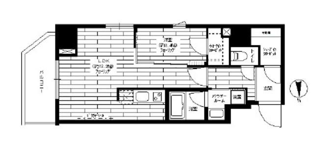
- 間取り/面積
-
1LDK
/41.01㎡
- 築年
- 2018年02月(築7年)
- 交通
-
都営大江戸線 / 新御徒町駅 徒歩8分
山手線 / 秋葉原駅 徒歩11分
銀座線 / 末広町駅 徒歩9分
総武線 / 浅草橋駅 徒歩17分
- 所在地
-
東京都 台東区 台東 2丁目
地図・周辺情報を見る
- 階数/方位
- 3階(13階建て)
/東向き
- 空室数
- 同じ建物に空室があと5件あります
空室を見る
- 種別/構造
- マンション/鉄筋コンクリート造
-
電話でお問合せ
03-5615-1300
こだわり設備・特徴 ステージグランデ秋葉原 3階/東京都台東区台東2丁目
- 入居時期・条件
-
空予定(2025年12月上旬)
/
保証人不要
/
二人入居可
/
独身可
- 収納
- シューズボックス1ヵ所 / クローゼット1ヵ所 / ウォークインクローゼット1ヵ所
- 位置
- 角部屋
- 放送・通信
-
※BS受信可
/
インターネット接続(月額利用料無料)
/
※CS受信可
/
光ファイバー
※インターネット接続環境、BS受信可、CATV、CS受信可について…利用料金は、共益費に含まれるタイプや個別に契約するタイプなど物件により異なります。詳しくは、物件お取り扱い不動産会社にお問合せください。
- その他設備・サービス
- 給湯 / 24時間ゴミ出し可 / 室内洗濯機置場 / 冷房 / 都市ガス / バルコニー / エレベーター1基 / 追い焚き機能 / 2面採光 / 公営上水道 / エアコン1台 / 24時間換気システム / 敷地内ごみ置き場 / 全居室フローリング
- 建物タイプ・デザイン
- 外壁タイル張り / 分譲賃貸
- 家賃保証会社など
- 保証会社必加入(その他:実費)※月額:800円、初回保証料:月額費用の40%(外国籍の方はGTN使用。初回保証料50%~100%月額1,330円)
- 保険
- 損害保険加入要。
- 備考
- ★インターネット上の物件はほぼ全てご紹介可能です★現地待ち合わせ、オンライン内見、オンライン申し込みも対応可能★お気軽にご相談ください♪お部屋探しはタウンハウジング日暮里店にお任せください!★
- その他諸費用
- その他費用(鍵交換:22000円) / その他費用(24時間サポート:19800円)
- 契約期間
- 一般契約:2年0ヶ月間
- 更新料
- 1ヶ月
- 取引形態
- 一般媒介
- 物件管理コード
- C01008697-000000509139250-0001
- 情報更新日
- 2025/12/03
- 次回更新予定日
- 2025/12/17
この物件に無料でお問合せ お問合せ内容を選択してね!
-
電話でお問合せ
03-5615-1300 -
株式会社タウンハウジング東京
日暮里店
営業時間:10:00~19:00
-
電話でお問合せ
03-5615-1300
周辺情報 ステージグランデ秋葉原 3階/東京都台東区台東2丁目
- ショッピングセンター/アウトレットモール
- ショッピングセンター/アウトレットモール(2k540AKI-OKA ARTISAN)まで 560m
- ショッピングセンター/アウトレットモール
- ショッピングセンター/アウトレットモール(ヨドバシAkiba)まで 890m
- ショッピングセンター/アウトレットモール
- ショッピングセンター/アウトレットモール(アトレ秋葉原2)まで 900m
- スーパー
- スーパー(ライフ神田和泉町店)まで 400m
- スーパー
- スーパー(まいばすけっと仲御徒町店)まで 450m
- コンビニ
- コンビニ(ローソン)まで 200m
- コンビニ
- コンビニ(ファミリーマート台東1丁目店)まで 280m
- ドラッグストア
- ドラッグストア(どらっぐぱぱす台東鳥越店)まで 210m
物件についてお問合せ ステージグランデ秋葉原 3階/東京都台東区台東2丁目
【掲載物件情報について】
Woman.CHINTAIでは安心してお部屋探しのできるサイトを目指して、物件情報の精度向上に努めております。Woman.CHINTAIに掲載されている物件情報について万が一相違がございましたら、以下のページからご連絡ください
お問い合わせページ同じ建物の空室情報一覧 ステージグランデ秋葉原 3階/東京都台東区台東2丁目
-
- 3階 305号室
- 家賃
-
16.5
万円
(管理費等 10,000円)
- 管理費
- 10,000円
- 敷金/保証金
- 1ヶ月/--
- 礼金/償却
- 1ヶ月/--
- 間取り
- 1LDK
- 専有面積
- 41.01㎡
- その他
- 東向き
-
- 3階 305号室
- 家賃
-
16.5
万円
(管理費等 10,000円)
- 管理費
- 10,000円
- 敷金/保証金
- 1ヶ月/--
- 礼金/償却
- 1ヶ月/--
- 間取り
- 1LDK
- 専有面積
- 41.01㎡
- その他
- 東向き
-
- 3階 305号室
- 家賃
-
16.5
万円
(管理費等 10,000円)
- 管理費
- 10,000円
- 敷金/保証金
- 1ヶ月/--
- 礼金/償却
- 1ヶ月/--
- 間取り
- 1LDK
- 専有面積
- 41.01㎡
- その他
- 東向き
取扱い店舗 ステージグランデ秋葉原 3階/東京都台東区台東2丁目
-
株式会社タウンハウジング東京 日暮里店
お問合せ番号:R00509-139250
国土交通大臣免許(1)第9926号- 東京都荒川区東日暮里5-50-11 ザオービル1F
- 山手線 /日暮里駅
- 営業時間:10:00~19:00
- 定休日:水曜日
メールでお問合せする 電話でお問合せ
03-5615-1300
選択した物件をまとめて
建物ごとに探す
ステージグランデ秋葉原 3階と同じ最寄り駅にある物件
ステージグランデ秋葉原 3階と同じエリアにある物件
設備・条件から台東区の物件を再検索
設備・条件から新御徒町駅の物件を再検索
設備・条件から秋葉原駅の物件を再検索
設備・条件から末広町駅の物件を再検索











































一人暮らしの女性に嬉しいポイントはこちら!