ラフィスタ大師前III 3階/東京都足立区西新井本町2丁目(大師前駅)の賃貸物件詳細
- 新着
-
空室状況を
聞いてみる -
電話でお問合せ
03-3881-5700
- お部屋の状況を確認する(無料)
-
電話でお問合せ
03-3881-5700
保証金 1ヶ月/--
償却 1ヶ月/--
都営日暮里・舎人ライナー / 西新井大師西駅 徒歩11分
都営日暮里・舎人ライナー / 江北駅 徒歩12分
- お部屋探しはタウンハウジング北千住店へ!お店は西口徒歩3分
女性におすすめのポイント ラフィスタ大師前III 3階/東京都足立区西新井本町2丁目
このお部屋は、東武大師線大師前駅から徒歩6分に位置するマンションです。また、大師前駅や、西新井大師西駅などの複数駅が利用できるのでアクセスも便利です!
このお部屋はお風呂とトイレが別なので、それぞれ清潔&おしゃれにこだわることができます。また2階以上にあるお部屋で、路面から室内が見られないので女性の一人暮らしでも少し安心。
この建物はオートロックがあるので基本的には住人以外は入れないので安心ですね!
嬉しいのがこのお部屋はネットの料金が無料なところ。動画なども見放題ですね!
スーパーやコンビニが徒歩分圏内に6件あるので一人暮らしに便利。最も近いのは徒歩4分の所にある、ファミリーマート!
もっと見る ▼
-
即入居 -
女子割 -
バス・
トイレ別 -
独立
洗面台 -
オートロック -
2階以上 -
システム
キッチン -
コンロ
二口 -
クロー
ゼット -
室内洗濯
機置き場
この物件に無料でお問合せ お問合せ内容を選択してね!
-
電話でお問合せ
03-3881-5700 -
株式会社タウンハウジング東京
北千住店
営業時間:10:00~19:00
基本物件情報 ラフィスタ大師前III 3階/東京都足立区西新井本町2丁目
- 家賃/管理費
- 7.55万円/15,000円
- 敷金(保証金)/ 礼金(償却)
- 1ヶ月(--)/1ヶ月(--)
- 初期費用が気になる方は
お気軽にお問合せください! -
初期費用を株式会社タウンハウジング東京北千住店に聞いてみる!
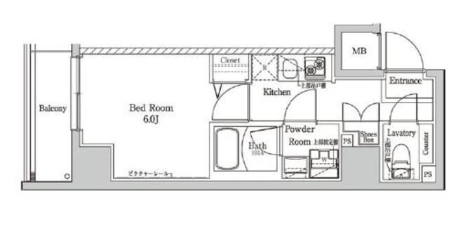
- 間取り/面積
-
1K
/23.6㎡
- 築年
- 2018年01月(築7年)
- 交通
-
東武大師線 / 大師前駅 徒歩6分
都営日暮里・舎人ライナー / 西新井大師西駅 徒歩11分
都営日暮里・舎人ライナー / 江北駅 徒歩12分
- 所在地
-
東京都 足立区 西新井本町 2丁目
地図・周辺情報を見る
- 階数/方位
- 3階(11階建て)
/西向き
- 空室数
- 同じ建物に空室があと9件あります
空室を見る
- 種別/構造
- マンション/鉄筋コンクリート造
-
電話でお問合せ
03-3881-5700
こだわり設備・特徴 ラフィスタ大師前III 3階/東京都足立区西新井本町2丁目
- 入居時期・条件
-
空予定(2026年02月中旬)
/
保証人不要
/
ペット相談可
/
二人入居可
/
独身可
- セキュリティ
- 24時間緊急通報システム / オートロック / 防犯カメラ / 宅配ボックス / TVモニターフォン / インターホン
- 周辺環境
- 平坦地 / 駅まで平坦 / 2沿線利用可 / 閑静な住宅地 / 3駅利用可
- 収納
- 全居室収納 / 玄関収納 / シューズボックス1ヵ所
- 位置
- 角部屋
- 放送・通信
-
※BS受信可
/
インターネット接続(月額利用料無料)
/
※CS受信可
※インターネット接続環境、BS受信可、CATV、CS受信可について…利用料金は、共益費に含まれるタイプや個別に契約するタイプなど物件により異なります。詳しくは、物件お取り扱い不動産会社にお問合せください。
- その他設備・サービス
- 給湯 / 室内洗濯機置場 / 冷房 / 玄関ホール / 都市ガス / バルコニー / エレベーター1基 / 公営上水道 / 照明1台 / 24時間換気システム / 全室エアコン / 敷地内ごみ置き場 / 全居室フローリング
- 建物タイプ・デザイン
- 外壁タイル張り / 分譲賃貸 / デザイナーズ
- 駐輪・駐車
-
近隣駐車場1 台※近隣駐車場距離:200m
自転車置き場 / バイク置場
※駐車場の金額表示は1台分の表示となります。
- 家賃保証会社など
- 保証会社必加入(その他:実費)※実費
- 保険
- 損害保険加入要。
- 備考
- 複数沿線利用可能な北千住駅!都心へのアクセス快適!保証会社利用可能!詳細はご相談ください!お部屋探しはタウンハウジング北千住店へ!
- その他諸費用
- その他費用(鍵交換:22000円) / その他費用(契約事務手数料:11000円) / その他費用(室内抗菌処理代:17600円) / その他費用(入居中サポート:21450円)
- 契約期間
- 一般契約:2年0ヶ月間
- 更新料
- 1.5ヶ月
- 取引形態
- 一般媒介
- 物件管理コード
- C01004166-000000505039038-0001
- 情報更新日
- 2025/12/20
- 次回更新予定日
- 2026/01/12
この物件に無料でお問合せ お問合せ内容を選択してね!
-
電話でお問合せ
03-3881-5700 -
株式会社タウンハウジング東京
北千住店
営業時間:10:00~19:00
-
電話でお問合せ
03-3881-5700
物件についてお問合せ ラフィスタ大師前III 3階/東京都足立区西新井本町2丁目
【掲載物件情報について】
Woman.CHINTAIでは安心してお部屋探しのできるサイトを目指して、物件情報の精度向上に努めております。Woman.CHINTAIに掲載されている物件情報について万が一相違がございましたら、以下のページからご連絡ください
お問い合わせページ同じ建物の空室情報一覧 ラフィスタ大師前III 3階/東京都足立区西新井本町2丁目
取扱い店舗 ラフィスタ大師前III 3階/東京都足立区西新井本町2丁目
-
株式会社タウンハウジング東京 北千住店
お問合せ番号:R00505-039038
国土交通大臣免許(1)第9226号- 東京都足立区千住 2-49 深沢ビル1F
- 日比谷線 /北千住駅
- 営業時間:10:00~19:00
- 定休日:毎水曜日
選択した物件をまとめて
建物ごとに探す
沿線・最寄駅から再検索
ラフィスタ大師前III 3階と同じ最寄り駅にある物件
ラフィスタ大師前III 3階と同じエリアにある物件
設備・条件から足立区の物件を再検索
設備・条件から大師前駅の物件を再検索
設備・条件から西新井大師西駅の物件を再検索


























一人暮らしの女性に嬉しいポイントはこちら!