S-RESIDENCE日本橋馬喰町 4階/東京都中央区日本橋馬喰町1丁目(馬喰町駅)の賃貸物件詳細
- 即入居可
- 仲介手数料家賃の55%以下
-
空室状況を
聞いてみる -
電話でお問合せ
03-5833-8871
- お部屋の状況を確認する(無料)
-
電話でお問合せ
03-5833-8871
保証金 --/--
償却 21万/--
都営新宿線 / 馬喰横山駅 徒歩4分
都営浅草線 / 東日本橋駅 徒歩7分
- 南東角部屋。広々45㎡。3口システムキッチン。駅近。生活環境良好。久しぶりに空きました。退室時清掃料71,500円。
女性におすすめのポイント S-RESIDENCE日本橋馬喰町 4階/東京都中央区日本橋馬喰町1丁目
このお部屋は、総武線馬喰町駅から徒歩2分に位置する駅近のマンションです。また、馬喰町駅や、馬喰横山駅などの複数駅が利用できるのでアクセスも便利です!
このお部屋はお風呂とトイレが別なので、それぞれ清潔&おしゃれにこだわることができます。また2階以上にあるお部屋で、路面から室内が見られないので女性の一人暮らしでも少し安心。
この建物はオートロックがあるので基本的には住人以外は入れないので安心ですね!
嬉しいのがこのお部屋はネットの料金が無料なところ。動画なども見放題ですね!
スーパーやコンビニが徒歩分圏内に6件あるので一人暮らしに便利。最も近いのは徒歩1分の所にある、ローソン!
もっと見る ▼
-
即入居 -
バス・
トイレ別 -
独立
洗面台 -
オートロック -
2階以上 -
システム
キッチン -
コンロ
二口 -
クロー
ゼット -
室内洗濯
機置き場
この物件に無料でお問合せ お問合せ内容を選択してね!
-
電話でお問合せ
03-5833-8871 -
株式会社エイブル
浅草橋店
営業時間:10:00~18:30
基本物件情報 S-RESIDENCE日本橋馬喰町 4階/東京都中央区日本橋馬喰町1丁目
- 家賃/管理費
- 21万円/20,000円
- 敷金(保証金)/ 礼金(償却)
- --(--)/21万(--)
- 初期費用が気になる方は
お気軽にお問合せください! -
初期費用を株式会社エイブル浅草橋店に聞いてみる!
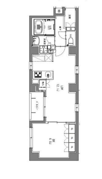
- 間取り/面積
-
1LDK
(洋室6・LDK12.1)/45.12㎡
- 築年
- 2019年01月(築7年)
- 交通
-
総武線 / 馬喰町駅 徒歩2分
都営新宿線 / 馬喰横山駅 徒歩4分
都営浅草線 / 東日本橋駅 徒歩7分
- 所在地
-
東京都 中央区 日本橋馬喰町 1丁目
地図・周辺情報を見る
- 階数/方位
- 4階(10階建て)
/南東向き
- 空室数
- 同じ建物に空室があと10件あります
空室を見る
- 種別/構造
- マンション/鉄筋コンクリート造
-
電話でお問合せ
03-5833-8871
こだわり設備・特徴 S-RESIDENCE日本橋馬喰町 4階/東京都中央区日本橋馬喰町1丁目
- 入居時期・条件
-
即入居
/
ペット相談可
(飼育の場合:敷金1ヶ月増)
/
友人同士可
/
外国人可
/
家賃保証会社利用必須
/
独身可
- セキュリティ
- オートロック / 防犯カメラ / 宅配ボックス / TVモニターフォン
- 収納
- クローゼット / シューズボックス
- 放送・通信
- インターネット接続(月額利用料無料) / 地上デジタル
- その他設備・サービス
- 給湯 / 室内洗濯機置場 / エアコン / 電気 / エレベーター / ベランダ / フローリング / 都市ガス / バルコニー / 下水道 / 公営上水道 / 敷地内ごみ置き場 / 集合郵便受け
- 駐輪・駐車
- 自転車置き場 / バイク置場
- 家賃保証会社など
- 保証会社必加入(120,000円)
- 保険
- 損害保険加入要。
- 備考
- 仲介手数料家賃の55% / 保証会社加入要(賃料+管理費の50%)。
- その他初期費用
- 契約時必須(消毒(抗菌費):25300円) / 契約時必須(消火剤・防災グッズ代:22330円) / 契約時必須(入居者サポート費用:22000円)
- その他諸費用
- 付属設備(バイク置き場:3300円)
- 契約期間
- 一般契約:2年間
- 更新料
- 1ヶ月
- 取引形態
- 媒介
- 物件管理コード
- 000000256-000000000792272-0032
- 情報更新日
- 2026/05/10
- 次回更新予定日
- 2026/05/24
この物件に無料でお問合せ お問合せ内容を選択してね!
-
電話でお問合せ
03-5833-8871 -
株式会社エイブル
浅草橋店
営業時間:10:00~18:30
-
電話でお問合せ
03-5833-8871
物件についてお問合せ S-RESIDENCE日本橋馬喰町 4階/東京都中央区日本橋馬喰町1丁目
【掲載物件情報について】
Woman.CHINTAIでは安心してお部屋探しのできるサイトを目指して、物件情報の精度向上に努めております。Woman.CHINTAIに掲載されている物件情報について万が一相違がございましたら、以下のページからご連絡ください
お問い合わせページ同じ建物の空室情報一覧 S-RESIDENCE日本橋馬喰町 4階/東京都中央区日本橋馬喰町1丁目
-
- 4階 404号室
- 家賃
-
21
万円
(管理費等 20,000円)
- 管理費
- 20,000円
- 敷金/保証金
- --/--
- 礼金/償却
- 1ヶ月/--
- 間取り
- 1LDK
- 専有面積
- 45.12㎡
- その他
- 南東向き
-
- 4階 404号室
- 家賃
-
21
万円
(管理費等 20,000円)
- 管理費
- 20,000円
- 敷金/保証金
- --/--
- 礼金/償却
- 1ヶ月/--
- 間取り
- 1LDK
- 専有面積
- 45.12㎡
- その他
- 南東向き
-
- 4階 404号室
- 家賃
-
21
万円
(管理費等 20,000円)
- 管理費
- 20,000円
- 敷金/保証金
- --/--
- 礼金/償却
- 1ヶ月/--
- 間取り
- 1LDK
- 専有面積
- 45.12㎡
- その他
- 南東向き
-
- 4階 404号室
- 家賃
-
21
万円
(管理費等 20,000円)
- 管理費
- 20,000円
- 敷金/保証金
- --/--
- 礼金/償却
- 1ヶ月/--
- 間取り
- 1LDK
- 専有面積
- 45.12㎡
- その他
- 南東向き
-
- 4階 404号室
- 家賃
-
21
万円
(管理費等 20,000円)
- 管理費
- 20,000円
- 敷金/保証金
- --/--
- 礼金/償却
- 1ヶ月/--
- 間取り
- 1LDK
- 専有面積
- 45.12㎡
- その他
- 南東向き
-
- 4階 404号室
- 家賃
-
21
万円
(管理費等 20,000円)
- 管理費
- 20,000円
- 敷金/保証金
- --/--
- 礼金/償却
- 1ヶ月/--
- 間取り
- 1LDK
- 専有面積
- 45.12㎡
- その他
- 南東向き
-
- 4階 404号室
- 家賃
-
21
万円
(管理費等 20,000円)
- 管理費
- 20,000円
- 敷金/保証金
- --/--
- 礼金/償却
- 1ヶ月/--
- 間取り
- 1LDK
- 専有面積
- 45.12㎡
- その他
- 南東向き
-
- 4階 404号室
- 家賃
-
21
万円
(管理費等 20,000円)
- 管理費
- 20,000円
- 敷金/保証金
- --/--
- 礼金/償却
- 1ヶ月/--
- 間取り
- 1LDK
- 専有面積
- 45.12㎡
- その他
- 南東向き
取扱い店舗 S-RESIDENCE日本橋馬喰町 4階/東京都中央区日本橋馬喰町1丁目
-
株式会社エイブル 浅草橋店
お問合せ番号:256792272404
国土交通大臣(7)第5338号女性スタッフ対応- 東京都台東区浅草橋1-9-13 第111東京ビル3F
- 総武線 /浅草橋駅
- 営業時間:10:00~18:30
- 定休日:年末年始(2025/12/27~2026/1/3)
-
株式会社エイブル 人形町店
お問合せ番号:651792272404
国土交通大臣(7)第5338号女性スタッフ対応- 東京都中央区日本橋人形町2-6-1 柴川ビル3F
- 日比谷線 /人形町駅
- 営業時間:月曜~木曜 13:00~18:30 金曜~日曜 10:00~18:30
- 定休日:年末年始(2025/12/27~2026/1/3)
選択した物件をまとめて
建物ごとに探す
S-RESIDENCE日本橋馬喰町 4階と同じ最寄り駅にある物件
S-RESIDENCE日本橋馬喰町 4階と同じエリアにある物件
設備・条件から中央区の物件を再検索
設備・条件から馬喰町駅の物件を再検索
設備・条件から馬喰横山駅の物件を再検索
LINEで聞いてみる
一人暮らしの女性に嬉しいポイントはこちら!