エテルナコート総持寺 1階/大阪府茨木市三島町(JR総持寺駅)の賃貸物件詳細
- 即入居可
- 仲介手数料家賃の55%以下
-
空室状況を
聞いてみる -
電話でお問合せ
0120-948-985
- お部屋の状況を確認する(無料)
-
電話でお問合せ
0120-948-985
保証金 --/--
償却 2ヶ月/--
阪急京都線 / 総持寺駅 徒歩13分
阪急京都線 / 富田駅 徒歩19分
東海道本線<琵琶湖線・JR京都線> / 摂津富田駅 徒歩22分
- 駅徒歩10分以内なので、通勤通学やお買い物に大変便利です。
女性におすすめのポイント エテルナコート総持寺 1階/大阪府茨木市三島町
このお部屋は、東海道本線<琵琶湖線・JR京都線>JR総持寺駅から徒歩7分に位置するアパートです。また、JR総持寺駅や、総持寺駅などの複数駅が利用できるのでアクセスも便利です!
このお部屋はお風呂とトイレが別なので、それぞれ清潔&おしゃれにこだわることができます。また独立洗面台があって収納やコンセントも使えるので、女性の身支度にはとても便利!
この建物はオートロックがあるので基本的には住人以外は入れないので安心ですね!
嬉しいのがこのお部屋はネットの料金が無料なところ。動画なども見放題ですね!
スーパーやコンビニが徒歩分圏内に2件あるので一人暮らしに便利。最も近いのは徒歩10分の所にある、ファミリーマート茨木三島中学校南店!
もっと見る ▼
-
即入居 -
女子割 -
バス・
トイレ別 -
独立
洗面台 -
オートロック -
2階以上 -
システム
キッチン -
コンロ
二口 -
クロー
ゼット -
室内洗濯
機置き場
この物件に無料でお問合せ お問合せ内容を選択してね!
-
電話でお問合せ
0120-948-985 -
株式会社エリッツ
阪急淡路店
営業時間:10:00~19:00
基本物件情報 エテルナコート総持寺 1階/大阪府茨木市三島町
- 家賃/管理費
- 7.9万円/6,000円
- 敷金(保証金)/ 礼金(償却)
- --(--)/2ヶ月(--)
- 初期費用が気になる方は
お気軽にお問合せください! -
初期費用を株式会社エリッツ阪急淡路店に聞いてみる!
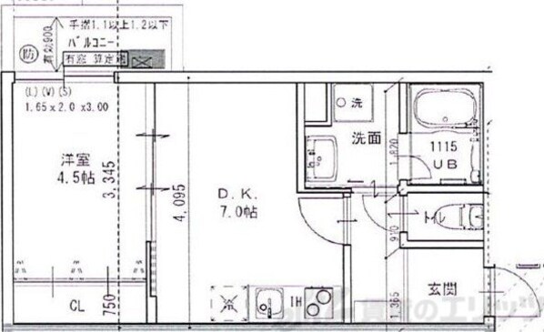
- 間取り/面積
-
1LDK
/31.67㎡
- 築年
- 2025年10月(1年未満)
- 交通
-
東海道本線<琵琶湖線・JR京都線> / JR総持寺駅 徒歩7分
阪急京都線 / 総持寺駅 徒歩13分
阪急京都線 / 富田駅 徒歩19分
東海道本線<琵琶湖線・JR京都線> / 摂津富田駅 徒歩22分
- 所在地
-
大阪府 茨木市 三島町
地図・周辺情報を見る
- 階数/方位
- 1階(3階建て)
/北向き
- 空室数
- 同じ建物に空室があと10件あります
空室を見る
- 種別/構造
- アパート/木造
-
電話でお問合せ
0120-948-985
こだわり設備・特徴 エテルナコート総持寺 1階/大阪府茨木市三島町
- 入居時期・条件
-
即入居
/
保証人不要
/
二人入居可
/
外国人可
- キッチン
- IHクッキングヒーター付 / コンロ2口以上
- セキュリティ
- オートロック / 防犯カメラ / 宅配ボックス / TVモニターフォン
- 周辺環境
- 2沿線利用可
- 収納
- シューズボックス1ヵ所
- 位置
- 角部屋
- 放送・通信
-
インターネット接続(月額利用料無料)
/
※CATV
/
ネット専用回線
※インターネット接続環境、BS受信可、CATV、CS受信可について…利用料金は、共益費に含まれるタイプや個別に契約するタイプなど物件により異なります。詳しくは、物件お取り扱い不動産会社にお問合せください。
- その他設備・サービス
- 給湯 / 室内洗濯機置場 / ベランダ / フローリング / 都市ガス / バルコニー / 追い焚き機能 / 公営上水道 / エアコン1台
- 駐輪・駐車
-
有料駐車場1 台(11,000円/月)
自転車置き場 / バイク置場
※駐車場の金額表示は1台分の表示となります。
- 家賃保証会社など
- 保証会社必加入(全保連:実費)※初回保証料:総賃料の50% 引落手数料:550円 年間保証料:12,000円
- 保険
- 損害保険加入要。
- 備考
- 仲介手数料家賃の55% / 駅徒歩10分以内なので、通勤通学やお買い物に大変便利です。
- その他諸費用
- 付属設備(駐輪場代金:330円)※月あたり料金 / 付属設備(バイク置き場:3300円)※月あたり料金 / その他費用(鍵交換:33000円) / その他費用(室内清掃費用:38500円) / その他費用(契約事務手数料 契約時:22000円) / その他費用(駐輪場利用料:330円) / その他費用(バイク置場利用料:3300円)
- 契約期間
- 一般契約:2年0ヶ月間
- 取引形態
- 一般媒介
- 物件管理コード
- C01010614-000002727004159-0001
- 情報更新日
- 2025/12/12
- 次回更新予定日
- 2025/12/26
この物件に無料でお問合せ お問合せ内容を選択してね!
-
電話でお問合せ
0120-948-985 -
株式会社エリッツ
阪急淡路店
営業時間:10:00~19:00
-
電話でお問合せ
0120-948-985
物件についてお問合せ エテルナコート総持寺 1階/大阪府茨木市三島町
【掲載物件情報について】
Woman.CHINTAIでは安心してお部屋探しのできるサイトを目指して、物件情報の精度向上に努めております。Woman.CHINTAIに掲載されている物件情報について万が一相違がございましたら、以下のページからご連絡ください
お問い合わせページ同じ建物の空室情報一覧 エテルナコート総持寺 1階/大阪府茨木市三島町
取扱い店舗 エテルナコート総持寺 1階/大阪府茨木市三島町
-
株式会社エリッツ 阪急淡路店
お問合せ番号:R02727-004159
国土交通大臣免許(7)第005206号- 大阪府大阪市東淀川区淡路4丁目 9-13 ハセガワビル 1階
- 阪急京都線 /淡路駅
- 営業時間:10:00~19:00
- 定休日:火曜日(祝日を除く) ※部屋探しのお問い合わせは無休
メールでお問合せする 電話でお問合せ
0120-948-985
選択した物件をまとめて
建物ごとに探す
エテルナコート総持寺 1階と同じ最寄り駅にある物件
エテルナコート総持寺 1階と同じエリアにある物件
設備・条件から茨木市の物件を再検索
設備・条件からJR総持寺駅の物件を再検索
設備・条件から総持寺駅の物件を再検索
設備・条件から富田駅の物件を再検索
設備・条件から摂津富田駅の物件を再検索


















一人暮らしの女性に嬉しいポイントはこちら!