エスリード姫路 13階/兵庫県姫路市東駅前町(姫路駅)の賃貸物件詳細
- 即入居可
-
空室状況を
聞いてみる -
電話でお問合せ
079-224-6600
- お部屋の状況を確認する(無料)
-
電話でお問合せ
079-224-6600
保証金 2ヶ月/--
償却 2ヶ月/--
山陽電気鉄道本線 / 山陽姫路駅 徒歩4分
播但線 / 京口駅 徒歩18分
- 姫路駅前の分譲マンションです!都市ガスで経済的♪最上階!
女性におすすめのポイント エスリード姫路 13階/兵庫県姫路市東駅前町
このお部屋は、東海道本線・山陽本線
このお部屋はお風呂とトイレが別なので、それぞれ清潔&おしゃれにこだわることができます。また2階以上にあるお部屋で、路面から室内が見られないので女性の一人暮らしでも少し安心。
この建物はオートロックがあるので基本的には住人以外は入れないので安心ですね!
-
即入居 -
女子割 -
バス・
トイレ別 -
独立
洗面台 -
オートロック -
2階以上 -
システム
キッチン -
コンロ
二口 -
クロー
ゼット -
室内洗濯
機置き場
この物件に無料でお問合せ お問合せ内容を選択してね!
-
電話でお問合せ
079-224-6600 -
株式会社家ログ
本店
営業時間:10時~20時
基本物件情報 エスリード姫路 13階/兵庫県姫路市東駅前町
- 家賃/管理費
- 18万円/--円
- 敷金(保証金)/ 礼金(償却)
- 2ヶ月(--)/2ヶ月(--)
- 初期費用が気になる方は
お気軽にお問合せください! -
初期費用を株式会社家ログ本店に聞いてみる!
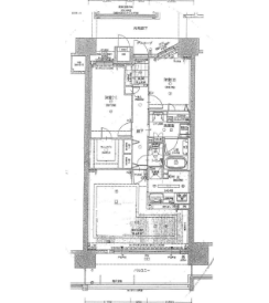
- 間取り/面積
-
2LDK(LDK15.50・洋室7.00・洋室6.00・K3.20)/73.07㎡
- 築年
- 2015年02月(築10年)
- 交通
-
東海道本線・山陽本線<JR神戸線> / 姫路駅 徒歩4分
山陽電気鉄道本線 / 山陽姫路駅 徒歩4分
播但線 / 京口駅 徒歩18分
- 所在地
-
兵庫県 姫路市 東駅前町
地図・周辺情報を見る
- 階数/方位
- 13階(13階建て)
/北向き
- 空室数
- 同じ建物に空室があと10件あります
空室を見る
- 種別/構造
- マンション/鉄筋コンクリート造
-
電話でお問合せ
079-224-6600
こだわり設備・特徴 エスリード姫路 13階/兵庫県姫路市東駅前町
- 入居時期・条件
-
即入居
/
二人入居可
/
家賃保証会社利用必須
/
シニア相談可
- セキュリティ
- オートロック / 防犯カメラ / 宅配ボックス / セキュリティー会社加入済 / TVモニターフォン / ディンプルキー
- 周辺環境
- 3沿線利用可 / 閑静な住宅地 / 3駅利用可
- 収納
- 収納
- 位置
- 最上階 / 角部屋
- 放送・通信
-
インターネット接続設備あり
/
※BS受信可
/
※CS受信可
/
光ファイバー
/
※CATV
※インターネット接続環境、BS受信可、CATV、CS受信可について…利用料金は、共益費に含まれるタイプや個別に契約するタイプなど物件により異なります。詳しくは、物件お取り扱い不動産会社にお問合せください。
- その他設備・サービス
- 給湯 / 室内洗濯機置場 / 電気 / エレベーター / フローリング / 都市ガス / 陽当り良好 / バルコニー / 下水道 / 追い焚き機能 / 床暖房 / 公営上水道 / 24時間換気システム / LDK15畳以上
- 建物タイプ・デザイン
- 分譲賃貸 / デザイナーズ
- 駐輪・駐車
- 自転車置き場 / バイク可
- 家賃保証会社など
- 保証会社必加入(オリコフォレントインシュア:実費)※初回保証料 家賃総額の50% 更新料1万円/年
- 保険
- 損害保険加入要。※11000円/2年
- 備考
- 初期費用の分割可能!クレジットカード決済可(分割最大24回払いOK)退去時クリーニング費77,000円 / 姫路駅前の分譲マンションです!都市ガスで経済的♪最上階!
- 契約期間
- 一般契約:2年間
- 取引形態
- 一般媒介
- 物件管理コード
- C01010606-000000000105834-0428
- 情報更新日
- 2025/12/13
- 次回更新予定日
- 2026/01/05
この物件に無料でお問合せ お問合せ内容を選択してね!
-
電話でお問合せ
079-224-6600 -
株式会社家ログ
本店
営業時間:10時~20時
-
電話でお問合せ
079-224-6600
物件についてお問合せ エスリード姫路 13階/兵庫県姫路市東駅前町
【掲載物件情報について】
Woman.CHINTAIでは安心してお部屋探しのできるサイトを目指して、物件情報の精度向上に努めております。Woman.CHINTAIに掲載されている物件情報について万が一相違がございましたら、以下のページからご連絡ください
お問い合わせページ同じ建物の空室情報一覧 エスリード姫路 13階/兵庫県姫路市東駅前町
-
- 3階 303号室
- 家賃
-
14.8
万円
(管理費等 10,000円)
- 管理費
- 10,000円
- 敷金/保証金
- 1ヶ月/--
- 礼金/償却
- 2ヶ月/--
- 間取り
- 3LDK
- 専有面積
- 67.35㎡
- その他
- 東向き
-
- 3階 303号室
- 家賃
-
14.8
万円
(管理費等 10,000円)
- 管理費
- 10,000円
- 敷金/保証金
- 1ヶ月/--
- 礼金/償却
- 2ヶ月/--
- 間取り
- 3LDK
- 専有面積
- 67.35㎡
- その他
- 東向き
-
- 3階 303号室
- 家賃
-
14.8
万円
(管理費等 10,000円)
- 管理費
- 10,000円
- 敷金/保証金
- 1ヶ月/--
- 礼金/償却
- 2ヶ月/--
- 間取り
- 3LDK
- 専有面積
- 67.35㎡
- その他
- 東向き
取扱い店舗 エスリード姫路 13階/兵庫県姫路市東駅前町
-
株式会社家ログ 本店
お問合せ番号:1058340428
兵庫県知事免許(1)第451795号- 兵庫県姫路市久保町155番地
- 東海道本線・山陽本線<JR神戸線> /姫路駅
- 営業時間:10時~20時
- 定休日:不定休
選択した物件をまとめて
建物ごとに探す
エスリード姫路 13階と同じ最寄り駅にある物件
エスリード姫路 13階と同じエリアにある物件
設備・条件から姫路市の物件を再検索
設備・条件から姫路駅の物件を再検索
設備・条件から山陽姫路駅の物件を再検索
設備・条件から京口駅の物件を再検索



























一人暮らしの女性に嬉しいポイントはこちら!