Quintet Minami Fukuoka 3階/福岡県福岡市博多区三筑2丁目(雑餉隈駅)の賃貸物件詳細

家賃:8.2万円 (管理費:6,000円)1LDK31.84㎡
敷金/
保証金
--/--
礼金/
償却
1ヶ月/--
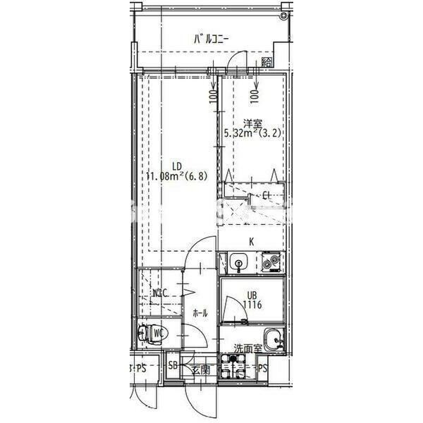
間取り 1LDK
広さ 31.84㎡
3階(8階建て)
築年数 築3年
種別 マンション
住所 福岡県福岡市博多区三筑2丁目
交通 西鉄天神大牟田線 / 雑餉隈駅 徒歩10分
鹿児島本線 / 笹原駅 徒歩14分
鹿児島本線 / 南福岡駅 徒歩16分
  • エレベーター 日当たり良好 防犯カメラ 独立洗面所

女性におすすめのポイント Quintet Minami Fukuoka 3階/福岡県福岡市博多区三筑2丁目

一人暮らしの女性に嬉しいポイントはこちら!

このお部屋は、西鉄天神大牟田線雑餉隈駅から徒歩10分に位置するマンションです。また、雑餉隈駅や、笹原駅などの複数駅が利用できるのでアクセスも便利です!
このお部屋はお風呂とトイレが別なので、それぞれ清潔&おしゃれにこだわることができます。また2階以上にあるお部屋で、路面から室内が見られないので女性の一人暮らしでも少し安心。
この建物は築10年以内の新しい物件!きれいなお部屋はあこがれますよね!
嬉しいのがこのお部屋は敷金がないところ。初期費用が抑えられますね!
もっと見る 

  • 即入居
    即入居
  • バス・<br/>トイレ別
    バス・
    トイレ別
  • 独立<br/>洗面台
    独立
    洗面台
  • オートロック
    オートロック
  • 2階以上
    2階以上
  • システム<br/>キッチン
    システム
    キッチン
  • コンロ<br/>二口
    コンロ
    二口
  • クロー<br/>ゼット
    クロー
    ゼット
  • 室内洗濯<br/>機置き場
    室内洗濯
    機置き場

この物件に無料でお問合せ お問合せ内容を選択してね!

  • 電話でお問合せ
    092-260-9086
  • ショーケン株式会社  川端支店
    営業時間:10時~19時

基本物件情報 Quintet Minami Fukuoka 3階/福岡県福岡市博多区三筑2丁目

家賃/管理費
8.2万円/6,000円
敷金(保証金)/ 礼金(償却)
--(--)/1ヶ月(--)
初期費用が気になる方は
お気軽にお問合せください!
初期費用をショーケン株式会社川端支店に聞いてみる!

初期費用が気になる方は、

お気軽にお問合せください!

間取り/面積
1LDK /31.84㎡
築年
2023年01月(築3年)
交通
西鉄天神大牟田線 / 雑餉隈駅 徒歩10分
鹿児島本線 / 笹原駅 徒歩14分
鹿児島本線 / 南福岡駅 徒歩16分
所在地
福岡県 福岡市博多区 三筑 2丁目
地図・周辺情報を見る
周辺の治安・環境を問合せる
(無料)
階数/方位
3階(8階建て)
空室数
同じ建物に空室があと10件あります
空室を見る
種別/構造
マンション/鉄筋コンクリート造
似た物件を提案してほしい
(無料)

こだわり設備・特徴 Quintet Minami Fukuoka 3階/福岡県福岡市博多区三筑2丁目

入居時期・条件
応相談※応相談 / 家賃保証会社利用必須
いつから内見できるか聞く
(無料)
バス・トイレ
洗面台 / 洗面化粧台 / バス・トイレ別 / 脱衣所 / シャワー / シャワー付洗面化粧台 / トイレ / シャワールーム
キッチン
システムキッチン / コンロ2口 / ガスコンロ付 / コンロ2口以上
セキュリティ
防犯カメラ / TVモニターフォン
周辺環境
2沿線利用可 / 2駅利用可
収納
クローゼット / シューズボックス
その他設備・サービス
給湯  / 室内洗濯機置場 / 冷房 / 電気 / エレベーター / フローリング / バルコニー / 下水道 / 公営上水道
建物タイプ・デザイン
デザイナーズ
駐輪・駐車
自転車置き場 / バイク可 / バイク置場
家賃保証会社など
保証会社必加入(その他:実費)※※契約者や条件によっては、内容が変更になる場合があります。 加入必須
保険
損害保険加入要。
備考
町費500円(月額) ★ お部屋探しはショーケン ★ 公式LINEでの相談・契約も可能 ★ お客様の約8割がLINEで相談されます ★ オンライン内覧OK ★気になる物件お気軽に問い合わせください !!
契約期間
一般契約:2年間
取引形態
一般媒介
物件管理コード
C01010564-168189000941327-0001
情報更新日
2026/04/20
次回更新予定日
2026/05/04

この物件に無料でお問合せ お問合せ内容を選択してね!

  • 電話でお問合せ
    092-260-9086
  • ショーケン株式会社  川端支店
    営業時間:10時~19時

周辺情報 Quintet Minami Fukuoka 3階/福岡県福岡市博多区三筑2丁目

物件の位置に戻る

地図アプリで見る

その他飲食(ファミレスなど)
その他飲食(ファミレスなど)(資さんうどん諸岡店)まで 1019m
その他飲食(ファミレスなど)
その他飲食(ファミレスなど)(清香園大野城店)まで 1766m
その他飲食(ファミレスなど)
その他飲食(ファミレスなど)(ウエスト麦野店)まで 614m
ファストフード
ファストフード(マクドナルド 桜ヶ丘店)まで 1698m
ファストフード
ファストフード(モスバーガー春日桜ケ丘店)まで 1670m
その他飲食(ファミレスなど)
その他飲食(ファミレスなど)(ガスト 春日桜ヶ丘店(から好し取扱店))まで 1847m
その他飲食(ファミレスなど)
その他飲食(ファミレスなど)(ドミノ・ピザ 板付筑紫通り店)まで 906m
その他飲食(ファミレスなど)
その他飲食(ファミレスなど)(とんかつ濱かつ福岡諸岡店)まで 1406m
その他飲食(ファミレスなど)
その他飲食(ファミレスなど)(リンガーハット 福岡諸岡店)まで 1439m
エニタイムフィットネス 麦野店まで 578m

物件についてお問合せ Quintet Minami Fukuoka 3階/福岡県福岡市博多区三筑2丁目

お問合せ店舗:ショーケン株式会社 川端支店
お名前【必須】
お名前(カナ)
ご連絡先【いずれか必須】

メールアドレス

電話番号

※メール受信制限をしている方は、@chintai.co.jpからのメールを受信できるよう設定の変更をお願い致します。

メールアドレス/電話番号【いずれか必須】
  • @gmail.com
  • @ezweb.ne.jp
  • @au.com
  • @i.softbank.jp
  • @yahoo.co.jp
  • @docomo.ne.jp
  • @softbank.ne.jp

※メール受信制限をしている方は、@chintai.co.jpからのメールを受信できるよう設定の変更をお願い致します。

お問い合わせ内容【必須】
    • 下記より重視する条件を選択してください(複数選択可)

下記より重視する条件を選択してください(複数選択可)

コメント【任意】
もっと詳細な問合せ情報を入力する(任意)

お引越し予定日、希望するお部屋の条件など、ご自由に記入してください

個人情報の扱いについて同意のうえ、「お問合せを完了する」ボタンを押してください。

本サービスは、CHINTAIが窓口となり、お客様からのお問合せについて、情報提供元の不動産会社に対して仲介・転送を行うものです。

ご入力いただいた個人情報は、CHINTAIからお問合せ先の不動産会社へ提供し、資料送付・お知らせの電子メール送信・電話連絡等の目的で各不動産会社が保管します。

お問合せ先不動産会社が保管する個人情報の取扱いについては、各不動産会社に直接お問合せください。

CHINTAIは本サービスを円滑に運用するため、お預かりした個人情報を一定期間保管します。

CHINTAIにおける個人情報の取扱いについては、こちらをご覧ください。

必須項目に未入力・エラーがあります

入力内容をお確かめください。

必須項目にエラーがあります

【掲載物件情報について】

Woman.CHINTAIでは安心してお部屋探しのできるサイトを目指して、物件情報の精度向上に努めております。Woman.CHINTAIに掲載されている物件情報について万が一相違がございましたら、以下のページからご連絡ください

お問い合わせページ

同じ建物の空室情報一覧 Quintet Minami Fukuoka 3階/福岡県福岡市博多区三筑2丁目

もっと見る

選択した物件をまとめて問合せる

取扱い店舗 Quintet Minami Fukuoka 3階/福岡県福岡市博多区三筑2丁目

選択した物件をまとめて

住所から再検索

Quintet Minami Fukuoka 3階と同じ最寄り駅にある物件

Quintet Minami Fukuoka 3階と同じエリアにある物件