コンシェリア芝公園D's 5階/東京都港区新橋6丁目(御成門駅)の賃貸物件詳細
-
空室状況を
聞いてみる -
電話でお問合せ
03-6228-4882
- お部屋の状況を確認する(無料)
-
電話でお問合せ
03-6228-4882
保証金 130,000円/--
償却 260,000円/130,000円
都営浅草線 / 新橋駅 徒歩10分
都営大江戸線 / 大門駅 徒歩9分
都営大江戸線 / 汐留駅 徒歩17分
- 御成門駅徒歩3分 角部屋2面採光 分譲賃貸マンション オートロック 宅配ボックス 24Hゴミ出し可
女性におすすめのポイント コンシェリア芝公園D's 5階/東京都港区新橋6丁目
このお部屋は、都営三田線御成門駅から徒歩3分に位置する駅近のマンションです。また、御成門駅や、新橋駅などの複数駅が利用できるのでアクセスも便利です!
このお部屋はお風呂とトイレが別なので、それぞれ清潔&おしゃれにこだわることができます。また2階以上にあるお部屋で、路面から室内が見られないので女性の一人暮らしでも少し安心。
この建物はオートロックがあるので基本的には住人以外は入れないので安心ですね!
スーパーやコンビニが徒歩分圏内に2件あるので一人暮らしに便利。最も近いのは徒歩1分の所にある、セブンイレブン御成門駅北店!
もっと見る ▼
-
即入居 -
女子割 -
バス・
トイレ別 -
独立
洗面台 -
オートロック -
2階以上 -
システム
キッチン -
コンロ
二口 -
クロー
ゼット -
室内洗濯
機置き場
この物件に無料でお問合せ お問合せ内容を選択してね!
-
電話でお問合せ
03-6228-4882 -
スタートライン
MINATO浜松町店
営業時間:10:00 - 19:00
基本物件情報 コンシェリア芝公園D's 5階/東京都港区新橋6丁目
- 家賃/管理費
- 13万円/15,000円
- 敷金(保証金)/ 礼金(償却)
- 130,000円(--)/260,000円(130,000円)
- 初期費用が気になる方は
お気軽にお問合せください! -
初期費用をスタートラインMINATO浜松町店に聞いてみる!
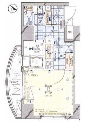
- 間取り/面積
-
1K
/25.8㎡
- 築年
- 2012年05月(築13年)
- 交通
-
都営三田線 / 御成門駅 徒歩3分
都営浅草線 / 新橋駅 徒歩10分
都営大江戸線 / 大門駅 徒歩9分
都営大江戸線 / 汐留駅 徒歩17分
- 所在地
-
東京都 港区 新橋 6丁目
地図・周辺情報を見る
- 階数/方位
- 5階(15階建て)
/南西向き
- 種別/構造
- マンション/鉄骨鉄筋コンクリート造
-
電話でお問合せ
03-6228-4882
こだわり設備・特徴 コンシェリア芝公園D's 5階/東京都港区新橋6丁目
- 入居時期・条件
-
応相談※詳細はお問い合わせください
/
保証人不要
- キッチン
- システムキッチン / IHクッキングヒーター付 / コンロ2口以上
- セキュリティ
- オートロック / 防犯カメラ / 宅配ボックス / TVモニターフォン
- 周辺環境
- 3沿線利用可 / 3駅利用可
- 収納
- シューズボックス1ヵ所 / クローゼット1ヵ所
- 位置
- 角部屋
- 放送・通信
- 光ファイバー
- その他設備・サービス
- 24時間ゴミ出し可 / 室内洗濯機置場 / 冷房 / 都市ガス / バルコニー / エレベーター1基 / 2面採光 / 公営上水道 / エアコン1台 / 24時間換気システム / 敷地内ごみ置き場 / 全居室フローリング
- 建物タイプ・デザイン
- 分譲賃貸
- 家賃保証会社など
- 保証会社必加入(その他:実費)※初回月額賃料等の50%、2年目以降10000円、口座振替手数料:440円
- 保険
- 損害保険加入要。
- 備考
- 保証金償却:解約時13万円
- その他諸費用
- その他費用(鍵交換:33000円)
- 契約期間
- 一般契約:2年0ヶ月間
- 更新料
- 1ヶ月
- 取引形態
- 一般媒介
- 物件管理コード
- C01010519-000002130017222-0001
- 情報更新日
- 2025/12/05
- 次回更新予定日
- 2025/12/19
この物件に無料でお問合せ お問合せ内容を選択してね!
-
電話でお問合せ
03-6228-4882 -
スタートライン
MINATO浜松町店
営業時間:10:00 - 19:00
-
電話でお問合せ
03-6228-4882
物件についてお問合せ コンシェリア芝公園D's 5階/東京都港区新橋6丁目
【掲載物件情報について】
Woman.CHINTAIでは安心してお部屋探しのできるサイトを目指して、物件情報の精度向上に努めております。Woman.CHINTAIに掲載されている物件情報について万が一相違がございましたら、以下のページからご連絡ください
お問い合わせページ取扱い店舗 コンシェリア芝公園D's 5階/東京都港区新橋6丁目
-
スタートライン MINATO浜松町店
お問合せ番号:R02130-017222
東京都知事免許(6)第76891号- 東京都港区芝大門 1-16-3芝大門116ビル1F
- 山手線 /浜松町駅
- 営業時間:10:00 - 19:00
- 定休日:毎週水曜日
選択した物件をまとめて
建物ごとに探す
コンシェリア芝公園D's 5階と同じ最寄り駅にある物件
コンシェリア芝公園D's 5階と同じエリアにある物件
設備・条件から港区の物件を再検索
設備・条件から御成門駅の物件を再検索
設備・条件から新橋駅の物件を再検索
設備・条件から大門駅の物件を再検索
設備・条件から汐留駅の物件を再検索































一人暮らしの女性に嬉しいポイントはこちら!