エスレジデンス新宿御苑(S-RESIDENCE新宿御苑) 3階/東京都新宿区四谷4丁目(新宿御苑前駅)の賃貸物件詳細
-
空室状況を
聞いてみる -
電話でお問合せ
03-6228-4882
- お部屋の状況を確認する(無料)
-
電話でお問合せ
03-6228-4882
保証金 1ヶ月/--
償却 --/--
丸ノ内線 / 四谷三丁目駅 徒歩9分
副都心線 / 新宿三丁目駅 徒歩12分
都営新宿線 / 曙橋駅 徒歩11分
- 築浅賃貸物件 新宿御苑前駅徒歩5分 好立地 オートロック インターネット無料 宅配ボックス WIC
女性におすすめのポイント エスレジデンス新宿御苑(S-RESIDENCE新宿御苑) 3階/東京都新宿区四谷4丁目
このお部屋は、丸ノ内線新宿御苑前駅から徒歩5分に位置する駅近のマンションです。また、新宿御苑前駅や、四谷三丁目駅などの複数駅が利用できるのでアクセスも便利です!
このお部屋はお風呂とトイレが別なので、それぞれ清潔&おしゃれにこだわることができます。また2階以上にあるお部屋で、路面から室内が見られないので女性の一人暮らしでも少し安心。
この建物はオートロックがあるので基本的には住人以外は入れないので安心ですね!
嬉しいのがこのお部屋は礼金がないところ。初期費用が抑えられますね!
スーパーやコンビニが徒歩分圏内に2件あるので一人暮らしに便利。最も近いのは徒歩2分の所にある、セブンイレブン新宿御苑前本通り店!
もっと見る ▼
-
即入居 -
女子割 -
バス・
トイレ別 -
独立
洗面台 -
オートロック -
2階以上 -
システム
キッチン -
コンロ
二口 -
クロー
ゼット -
室内洗濯
機置き場
この物件に無料でお問合せ お問合せ内容を選択してね!
-
電話でお問合せ
03-6228-4882 -
スタートライングループ株式会社
四谷店
営業時間:10:00 - 19:00
基本物件情報 エスレジデンス新宿御苑(S-RESIDENCE新宿御苑) 3階/東京都新宿区四谷4丁目
- 家賃/管理費
- 24.5万円/15,000円
- 敷金(保証金)/ 礼金(償却)
- 1ヶ月(--)/--(--)
- 初期費用が気になる方は
お気軽にお問合せください! -
初期費用をスタートライングループ株式会社四谷店に聞いてみる!
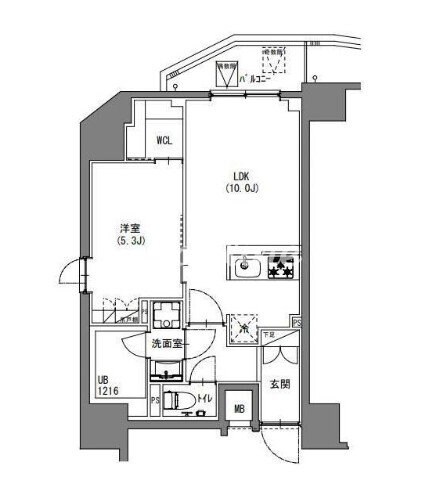
- 間取り/面積
-
1LDK
/41.31㎡
- 築年
- 2023年08月(築2年)
- 交通
-
丸ノ内線 / 新宿御苑前駅 徒歩5分
丸ノ内線 / 四谷三丁目駅 徒歩9分
副都心線 / 新宿三丁目駅 徒歩12分
都営新宿線 / 曙橋駅 徒歩11分
- 所在地
-
東京都 新宿区 四谷 4丁目
地図・周辺情報を見る
- 階数/方位
- 3階(15階建て)
/北向き
- 空室数
- 同じ建物に空室があと3件あります
空室を見る
- 種別/構造
- マンション/鉄筋コンクリート造
-
電話でお問合せ
03-6228-4882
こだわり設備・特徴 エスレジデンス新宿御苑(S-RESIDENCE新宿御苑) 3階/東京都新宿区四谷4丁目
- 入居時期・条件
-
応相談※詳細はお問い合わせください
/
保証人不要
/
ペット相談可
(飼育の場合:敷金1ヶ月増)
- セキュリティ
- オートロック / 防犯カメラ / 宅配ボックス / TVモニターフォン
- 周辺環境
- 2沿線利用可 / 3駅利用可
- 収納
- 全居室収納 / 玄関収納 / シューズボックス1ヵ所 / クローゼット1ヵ所 / ウォークインクローゼット1ヵ所
- 位置
- 角部屋
- 放送・通信
-
※BS受信可
/
インターネット接続(月額利用料無料)
/
光ファイバー
※インターネット接続環境、BS受信可、CATV、CS受信可について…利用料金は、共益費に含まれるタイプや個別に契約するタイプなど物件により異なります。詳しくは、物件お取り扱い不動産会社にお問合せください。
- その他設備・サービス
- 24時間ゴミ出し可 / 室内洗濯機置場 / 冷房 / 都市ガス / バルコニー / エレベーター1基 / 追い焚き機能 / 2面採光 / 公営上水道 / 照明1台 / エアコン1台 / 24時間換気システム / 敷地内ごみ置き場 / 全居室フローリング / Pタイル
- 建物タイプ・デザイン
- 外壁タイル張り
- 家賃保証会社など
- 保証会社必加入(その他:実費)※初回保証料・賃料等の50%、年間保証料・12000円/年、口座振替手数料:330円/月
- 保険
- 損害保険加入要。
- 備考
- ペット飼育時:小型犬または猫1匹(敷金1カ月積み増し) 1年未満解約時賃料等1ヶ月の違約金有り
- その他諸費用
- 敷金積み増し(ペット飼育:1ヶ月) / その他費用(鍵交換:33000円) / その他費用(室内清掃費用:71500円) / その他費用(エアコン清掃費/台:16500円)
- 契約期間
- 一般契約:2年0ヶ月間
- 更新料
- 1ヶ月
- 取引形態
- 一般媒介
- 物件管理コード
- C01010507-000002138008814-0001
- 情報更新日
- 2025/12/02
- 次回更新予定日
- 2025/12/16
この物件に無料でお問合せ お問合せ内容を選択してね!
-
電話でお問合せ
03-6228-4882 -
スタートライングループ株式会社
四谷店
営業時間:10:00 - 19:00
-
電話でお問合せ
03-6228-4882
物件についてお問合せ エスレジデンス新宿御苑(S-RESIDENCE新宿御苑) 3階/東京都新宿区四谷4丁目
【掲載物件情報について】
Woman.CHINTAIでは安心してお部屋探しのできるサイトを目指して、物件情報の精度向上に努めております。Woman.CHINTAIに掲載されている物件情報について万が一相違がございましたら、以下のページからご連絡ください
お問い合わせページ同じ建物の空室情報一覧 エスレジデンス新宿御苑(S-RESIDENCE新宿御苑) 3階/東京都新宿区四谷4丁目
-
- 12階 1203号室
- 家賃
-
19.6
万円
(管理費等 10,000円)
- 管理費
- 10,000円
- 敷金/保証金
- 1ヶ月/--
- 礼金/償却
- --/--
- 間取り
- 1DK
- 専有面積
- 29.13㎡
- その他
- 北向き
-
- 13階 1302号室
- 家賃
-
19.7
万円
(管理費等 10,000円)
- 管理費
- 10,000円
- 敷金/保証金
- 1ヶ月/--
- 礼金/償却
- --/--
- 間取り
- 1DK
- 専有面積
- 29.13㎡
- その他
- 北向き
-
- 14階 1403号室
- 家賃
-
18.4
万円
(管理費等 10,000円)
- 管理費
- 10,000円
- 敷金/保証金
- 1ヶ月/--
- 礼金/償却
- --/--
- 間取り
- 1DK
- 専有面積
- 29.13㎡
- その他
- 北向き
取扱い店舗 エスレジデンス新宿御苑(S-RESIDENCE新宿御苑) 3階/東京都新宿区四谷4丁目
-
スタートライングループ株式会社 四谷店
お問合せ番号:R02138-008814
東京都知事免許(6)第076891号- 東京都新宿区 四谷1-18-4フランセビル2階
- 中央線 /四ツ谷駅
- 営業時間:10:00 - 19:00
- 定休日:毎週水曜日
選択した物件をまとめて
建物ごとに探す
エスレジデンス新宿御苑(S-RESIDENCE新宿御苑) 3階と同じ最寄り駅にある物件
エスレジデンス新宿御苑(S-RESIDENCE新宿御苑) 3階と同じエリアにある物件
設備・条件から新宿区の物件を再検索
設備・条件から新宿御苑前駅の物件を再検索
設備・条件から四谷三丁目駅の物件を再検索
設備・条件から新宿三丁目駅の物件を再検索


























一人暮らしの女性に嬉しいポイントはこちら!