フェニックス西蒲田 1階/東京都大田区西蒲田3丁目(蓮沼駅)の賃貸物件詳細
- 新着
-
空室状況を
聞いてみる -
電話でお問合せ
03-6228-4882
- お部屋の状況を確認する(無料)
-
電話でお問合せ
03-6228-4882
保証金 --/--
償却 1ヶ月/--
京浜東北線・根岸線 / 浦和駅 徒歩14分
東急池上線 / 池上駅 徒歩10分
東急多摩川線 / 矢口渡駅 徒歩15分
- 蓮沼駅徒歩5分 広々ガーデンテラスつき ペット相談 温水洗浄便座 浴室乾燥 室内洗濯機 オートロック
女性におすすめのポイント フェニックス西蒲田 1階/東京都大田区西蒲田3丁目
このお部屋は、東急池上線蓮沼駅から徒歩5分に位置する駅近のマンションです。また、蓮沼駅や、浦和駅などの複数駅が利用できるのでアクセスも便利です!
このお部屋はお風呂とトイレが別なので、それぞれ清潔&おしゃれにこだわることができます。また独立洗面台があって収納やコンセントも使えるので、女性の身支度にはとても便利!
この建物はオートロックがあるので基本的には住人以外は入れないので安心ですね!
嬉しいのがこのお部屋は敷金がないところ。初期費用が抑えられますね!
スーパーやコンビニが徒歩分圏内に2件あるので一人暮らしに便利。最も近いのは徒歩5分の所にある、ファミリーマート蓮沼駅西店!
もっと見る ▼
-
即入居 -
女子割 -
バス・
トイレ別 -
独立
洗面台 -
オートロック -
2階以上 -
システム
キッチン -
コンロ
二口 -
クロー
ゼット -
室内洗濯
機置き場
この物件に無料でお問合せ お問合せ内容を選択してね!
-
電話でお問合せ
03-6228-4882 -
スタートライン
大森店
営業時間:10:00 - 19:00
基本物件情報 フェニックス西蒲田 1階/東京都大田区西蒲田3丁目
- 家賃/管理費
- 8.9万円/10,000円
- 敷金(保証金)/ 礼金(償却)
- --(--)/1ヶ月(--)
- 初期費用が気になる方は
お気軽にお問合せください! -
初期費用をスタートライン大森店に聞いてみる!
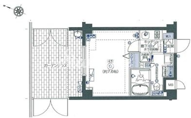
- 間取り/面積
-
1K
/23.8㎡
- 築年
- 2011年09月(築14年)
- 交通
-
東急池上線 / 蓮沼駅 徒歩5分
京浜東北線・根岸線 / 浦和駅 徒歩14分
東急池上線 / 池上駅 徒歩10分
東急多摩川線 / 矢口渡駅 徒歩15分
- 所在地
-
東京都 大田区 西蒲田 3丁目
地図・周辺情報を見る
- 階数/方位
- 1階(6階建て)
/北向き
- 空室数
- 同じ建物に空室があと1件あります
空室を見る
- 種別/構造
- マンション/鉄筋コンクリート造
-
電話でお問合せ
03-6228-4882
こだわり設備・特徴 フェニックス西蒲田 1階/東京都大田区西蒲田3丁目
- 入居時期・条件
-
応相談※詳細はお問い合わせください
/
ペット相談可
- セキュリティ
- オートロック / 防犯カメラ / 宅配ボックス / TVモニターフォン
- 収納
- 玄関収納 / シューズボックス1ヵ所 / クローゼット1ヵ所
- 放送・通信
- 光ファイバー
- その他設備・サービス
- 給湯 / 室内洗濯機置場 / 冷房 / 都市ガス / テラス / エレベーター1基 / 公営上水道 / エアコン1台 / 24時間換気システム / 全居室フローリング
- 建物タイプ・デザイン
- 分譲賃貸
- 駐輪・駐車
- 自転車置き場 / バイク置場
- 家賃保証会社など
- 保証会社必加入(その他:実費)※初回:総賃料等の50% 月額:総賃料の1.1%
- 保険
- --
- 備考
- 更新事務手数料0.25ヶ月(税抜き)、1年未満解約違約金有り(1ヶ月)、解約予告2か月前
- その他諸費用
- 退去時必須(エアコン清掃費:16500円) / その他費用(鍵交換:33000円) / その他費用(室内清掃費用:44000円) / その他費用(24時間緊急対応費:2200円) / その他費用(60歳以上見守りサービス:1650円)
- 契約期間
- 一般契約:2年0ヶ月間
- 更新料
- 1ヶ月
- 取引形態
- 一般媒介
- 物件管理コード
- C01010498-000002133011301-0001
- 情報更新日
- 2025/12/03
- 次回更新予定日
- 2025/12/17
この物件に無料でお問合せ お問合せ内容を選択してね!
-
電話でお問合せ
03-6228-4882 -
スタートライン
大森店
営業時間:10:00 - 19:00
-
電話でお問合せ
03-6228-4882
物件についてお問合せ フェニックス西蒲田 1階/東京都大田区西蒲田3丁目
【掲載物件情報について】
Woman.CHINTAIでは安心してお部屋探しのできるサイトを目指して、物件情報の精度向上に努めております。Woman.CHINTAIに掲載されている物件情報について万が一相違がございましたら、以下のページからご連絡ください
お問い合わせページ同じ建物の空室情報一覧 フェニックス西蒲田 1階/東京都大田区西蒲田3丁目
取扱い店舗 フェニックス西蒲田 1階/東京都大田区西蒲田3丁目
-
スタートライン 大森店
お問合せ番号:R02133-011301
東京都知事免許(6)第76891号- 東京都品川区南大井6丁目 27-28
- 京浜東北線・根岸線 /大森駅
- 営業時間:10:00 - 19:00
- 定休日:毎週水曜日
選択した物件をまとめて
建物ごとに探す
フェニックス西蒲田 1階と同じ最寄り駅にある物件
フェニックス西蒲田 1階と同じエリアにある物件
設備・条件から大田区の物件を再検索
設備・条件から蓮沼駅の物件を再検索
設備・条件から浦和駅の物件を再検索
設備・条件から池上駅の物件を再検索
設備・条件から矢口渡駅の物件を再検索




一人暮らしの女性に嬉しいポイントはこちら!