エステムコート新大阪Ⅸグランブライト 4階/大阪府大阪市東淀川区東中島2丁目(新大阪駅)の賃貸物件詳細

家賃:6.7万円 (管理費:11,000円)1K21.54㎡
  • 即入居可
敷金/
保証金
--/--
礼金/
償却
1ヶ月/--
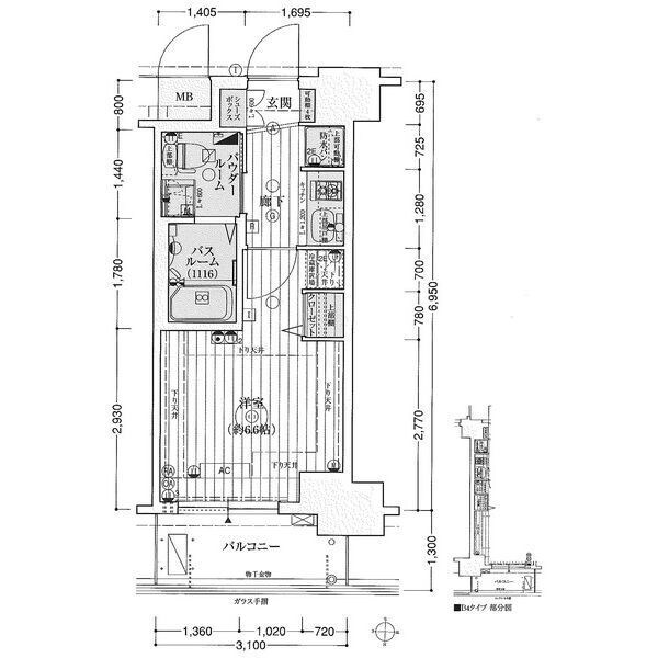
間取り 1K
広さ 21.54㎡
4階(11階建て)
築年数 築12年
種別 マンション
住所 大阪府大阪市東淀川区東中島2丁目
交通 東海道本線<琵琶湖線・JR京都線> / 新大阪駅 徒歩10分
大阪メトロ御堂筋線 / 新大阪駅 徒歩10分
阪急京都線 / 崇禅寺駅 徒歩9分
  • 弊社管理の家具家電付物件(家具家電無契約も可)★インターネット・Wi-Fi無料+毎月50Gまで外出先でも使えるポケットWi-Fi付★初期費用クレジット決済可★ベッド、洗濯機、冷蔵庫、掃除機、テレビ、デスク、照明、カーテン等の生活必需品が揃っています♪人気の分譲マンション♪

女性におすすめのポイント エステムコート新大阪Ⅸグランブライト 4階/大阪府大阪市東淀川区東中島2丁目

一人暮らしの女性に嬉しいポイントはこちら!

このお部屋は、東海道本線<琵琶湖線・JR京都線>新大阪駅から徒歩10分に位置するマンションです。また、新大阪駅や、崇禅寺駅などの複数駅が利用できるのでアクセスも便利です!
このお部屋はお風呂とトイレが別なので、それぞれ清潔&おしゃれにこだわることができます。また2階以上にあるお部屋で、路面から室内が見られないので女性の一人暮らしでも少し安心。
この建物はオートロックがあるので基本的には住人以外は入れないので安心ですね!
嬉しいのがこのお部屋はネットの料金が無料なところ。動画なども見放題ですね!
スーパーやコンビニが徒歩分圏内に2件あるので一人暮らしに便利。最も近いのは徒歩3分の所にある、ローソン東淀川東中島二丁目店!
もっと見る 

  • 即入居
    即入居
  • バス・<br/>トイレ別
    バス・
    トイレ別
  • 独立<br/>洗面台
    独立
    洗面台
  • オートロック
    オートロック
  • 2階以上
    2階以上
  • システム<br/>キッチン
    システム
    キッチン
  • コンロ<br/>二口
    コンロ
    二口
  • クロー<br/>ゼット
    クロー
    ゼット
  • 室内洗濯<br/>機置き場
    室内洗濯
    機置き場

この物件に無料でお問合せ お問合せ内容を選択してね!

  • 電話でお問合せ
    06-6347-0505
  • 株式会社リブマックスリーシング  リブマックス梅田店
    営業時間:AM9時~PM19時

基本物件情報 エステムコート新大阪Ⅸグランブライト 4階/大阪府大阪市東淀川区東中島2丁目

家賃/管理費
6.7万円/11,000円
敷金(保証金)/ 礼金(償却)
--(--)/1ヶ月(--)
初期費用が気になる方は
お気軽にお問合せください!
初期費用を株式会社リブマックスリーシングリブマックス梅田店に聞いてみる!

初期費用が気になる方は、

お気軽にお問合せください!

間取り/面積
1K (洋室6.6)/21.54㎡
築年
2013年10月(築12年)
交通
東海道本線<琵琶湖線・JR京都線> / 新大阪駅 徒歩10分
大阪メトロ御堂筋線 / 新大阪駅 徒歩10分
阪急京都線 / 崇禅寺駅 徒歩9分
所在地
大阪府 大阪市東淀川区 東中島 2丁目
地図・周辺情報を見る
周辺の治安・環境を問合せる
(無料)
階数/方位
4階(11階建て) /北向き
空室数
同じ建物に空室があと10件あります
空室を見る
種別/構造
マンション/鉄筋コンクリート造
似た物件を提案してほしい
(無料)

360°パノラマ画像 エステムコート新大阪Ⅸグランブライト 4階/大阪府大阪市東淀川区東中島2丁目

こだわり設備・特徴 エステムコート新大阪Ⅸグランブライト 4階/大阪府大阪市東淀川区東中島2丁目

入居時期・条件
即入居 / 保証人不要
すぐ内見出来るか聞く
(無料)
バス・トイレ
洗面所独立 / バス・トイレ別 / 脱衣所 / 温水洗浄便座 / トイレ / 浴室乾燥機
キッチン
システムキッチン / コンロ2口 / ガスコンロ付 / コンロ2口以上
セキュリティ
24時間緊急通報システム / オートロック / 管理人有り / 防犯カメラ / 宅配ボックス / TVモニターフォン
周辺環境
駅まで平坦 / 3沿線利用可 / 閑静な住宅地 / 3駅利用可
収納
クローゼット / シューズボックス
放送・通信
※BS受信可 / インターネット接続(月額利用料無料) / ※CS受信可 / 高速ネット対応
※インターネット接続環境、BS受信可、CATV、CS受信可について…利用料金は、共益費に含まれるタイプや個別に契約するタイプなど物件により異なります。詳しくは、物件お取り扱い不動産会社にお問合せください。
その他設備・サービス
耐火構造 / 耐震構造 / 24時間ゴミ出し可 / 室内洗濯機置場 / 照明器具付 / エアコン / 電気 / エレベーター / 都市ガス / 陽当り良好 / バルコニー / 下水道 / 公営上水道 / 家具・家電付き ※家具・家電付き / 24時間換気システム / 敷地内ごみ置き場 / 人感照明センサー / 全居室フローリング
建物タイプ・デザイン
外壁タイル張り / 分譲賃貸
駐輪・駐車
有料駐車場1 台(16,000円/月)
自転車置き場 / バイク可 / バイク置場
※駐車場の金額表示は1台分の表示となります。
家賃保証会社など
保証会社必加入(その他:実費)※ 初回保証料:総賃料の100%
保険
損害保険加入要。
備考
仲介手数料は一般的な賃料の1ヶ月分でなく0.55ヶ月分です★初期費用クレジット決済可★★ペット可★お洒落で人気のエステムシリーズ分譲マンションです♪3点セパレートの分譲賃貸がリーズナブルな賃料ですよー♪ / 弊社管理の家具家電付物件(家具家電無契約も可)★インターネット・Wi-Fi無料+毎月50Gまで外出先でも使えるポケットWi-Fi付★初期費用クレジット決済可★ベッド、洗濯機、冷蔵庫、掃除機、テレビ、デスク、照明、カーテン等の生活必需品が揃っています♪人気の分譲マンション♪
契約期間
一般契約:2年間
取引形態
一般媒介
物件管理コード
C01009989-110968006349996-0001
情報更新日
2026/05/12
次回更新予定日
2026/05/26

この物件に無料でお問合せ お問合せ内容を選択してね!

  • 電話でお問合せ
    06-6347-0505
  • 株式会社リブマックスリーシング  リブマックス梅田店
    営業時間:AM9時~PM19時

周辺情報 エステムコート新大阪Ⅸグランブライト 4階/大阪府大阪市東淀川区東中島2丁目

物件の位置に戻る

地図アプリで見る

公園
公園(南方公園)まで 110m
コンビニ
コンビニ(ローソン東淀川東中島二丁目店)まで 237m
警察署/交番
警察署/交番(新大阪駅東交番)まで 687m
病院
病院(淀川キリスト教病院)まで 805m
スーパー
スーパー(グルメシティ南方店)まで 833m
ショッピングセンター/アウトレットモール
ショッピングセンター/アウトレットモール(エキマルシェ新大阪)まで 1107m

物件についてお問合せ エステムコート新大阪Ⅸグランブライト 4階/大阪府大阪市東淀川区東中島2丁目

お問合せ店舗:株式会社リブマックスリーシング リブマックス梅田店
お名前【必須】
お名前(カナ)
ご連絡先【いずれか必須】

メールアドレス

電話番号

※メール受信制限をしている方は、@chintai.co.jpからのメールを受信できるよう設定の変更をお願い致します。

メールアドレス/電話番号【いずれか必須】
  • @gmail.com
  • @ezweb.ne.jp
  • @au.com
  • @i.softbank.jp
  • @yahoo.co.jp
  • @docomo.ne.jp
  • @softbank.ne.jp

※メール受信制限をしている方は、@chintai.co.jpからのメールを受信できるよう設定の変更をお願い致します。

お問い合わせ内容【必須】
    • 下記より重視する条件を選択してください(複数選択可)

下記より重視する条件を選択してください(複数選択可)

コメント【任意】
もっと詳細な問合せ情報を入力する(任意)

お引越し予定日、希望するお部屋の条件など、ご自由に記入してください

個人情報の扱いについて同意のうえ、「お問合せを完了する」ボタンを押してください。

本サービスは、CHINTAIが窓口となり、お客様からのお問合せについて、情報提供元の不動産会社に対して仲介・転送を行うものです。

ご入力いただいた個人情報は、CHINTAIからお問合せ先の不動産会社へ提供し、資料送付・お知らせの電子メール送信・電話連絡等の目的で各不動産会社が保管します。

お問合せ先不動産会社が保管する個人情報の取扱いについては、各不動産会社に直接お問合せください。

CHINTAIは本サービスを円滑に運用するため、お預かりした個人情報を一定期間保管します。

CHINTAIにおける個人情報の取扱いについては、こちらをご覧ください。

必須項目に未入力・エラーがあります

入力内容をお確かめください。

必須項目にエラーがあります

【掲載物件情報について】

Woman.CHINTAIでは安心してお部屋探しのできるサイトを目指して、物件情報の精度向上に努めております。Woman.CHINTAIに掲載されている物件情報について万が一相違がございましたら、以下のページからご連絡ください

お問い合わせページ

同じ建物の空室情報一覧 エステムコート新大阪Ⅸグランブライト 4階/大阪府大阪市東淀川区東中島2丁目

もっと見る

選択した物件をまとめて問合せる

取扱い店舗 エステムコート新大阪Ⅸグランブライト 4階/大阪府大阪市東淀川区東中島2丁目

選択した物件をまとめて

住所から再検索

エステムコート新大阪Ⅸグランブライト 4階と同じ最寄り駅にある物件

エステムコート新大阪Ⅸグランブライト 4階と同じエリアにある物件