AZESTお花茶屋V 3階/東京都葛飾区白鳥4丁目(お花茶屋駅)の賃貸物件詳細
-
空室状況を
聞いてみる -
電話でお問合せ
03-5680-7677
- お部屋の状況を確認する(無料)
-
電話でお問合せ
03-5680-7677
保証金 --/--
償却 1ヶ月/--
京成押上線 / 青砥駅 徒歩18分
京成押上線 / 京成立石駅 徒歩21分
常磐線 / 亀有駅 徒歩24分
- 2025年3月完成予定新築★ペットご相談・分譲賃貸マンション
女性におすすめのポイント AZESTお花茶屋V 3階/東京都葛飾区白鳥4丁目
このお部屋は、京成本線お花茶屋駅から徒歩11分に位置するマンションです。また、お花茶屋駅や、青砥駅などの複数駅が利用できるのでアクセスも便利です!
このお部屋はお風呂とトイレが別なので、それぞれ清潔&おしゃれにこだわることができます。また2階以上にあるお部屋で、路面から室内が見られないので女性の一人暮らしでも少し安心。
この建物はオートロックがあるので基本的には住人以外は入れないので安心ですね!
嬉しいのがこのお部屋はネットの料金が無料なところ。動画なども見放題ですね!
スーパーやコンビニが徒歩分圏内に2件あるので一人暮らしに便利。最も近いのは徒歩3分の所にある、ローソン白鳥4丁目店!
もっと見る ▼
-
即入居 -
女子割 -
バス・
トイレ別 -
独立
洗面台 -
オートロック -
2階以上 -
システム
キッチン -
コンロ
二口 -
クロー
ゼット -
室内洗濯
機置き場
この物件に無料でお問合せ お問合せ内容を選択してね!
-
電話でお問合せ
03-5680-7677 -
株式会社タウンハウジング東京
綾瀬店
基本物件情報 AZESTお花茶屋V 3階/東京都葛飾区白鳥4丁目
- 家賃/管理費
- 9.35万円/--円
- 敷金(保証金)/ 礼金(償却)
- --(--)/1ヶ月(--)
- 初期費用が気になる方は
お気軽にお問合せください! -
初期費用を株式会社タウンハウジング東京綾瀬店に聞いてみる!
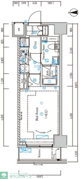
- 間取り/面積
-
1K
/25.57㎡
- 築年
- 2025年03月(1年未満)
- 交通
-
京成本線 / お花茶屋駅 徒歩11分
京成押上線 / 青砥駅 徒歩18分
京成押上線 / 京成立石駅 徒歩21分
常磐線 / 亀有駅 徒歩24分
- 所在地
-
東京都 葛飾区 白鳥 4丁目
地図・周辺情報を見る
- 階数/方位
- 3階(9階建て)
/西向き
- 空室数
- 同じ建物に空室があと4件あります
空室を見る
- 種別/構造
- マンション/鉄筋コンクリート造
-
電話でお問合せ
03-5680-7677
こだわり設備・特徴 AZESTお花茶屋V 3階/東京都葛飾区白鳥4丁目
- 入居時期・条件
-
応相談※詳細はお問い合わせください
/
保証人不要
/
ペット相談可
/
独身可
- 周辺環境
- 2沿線利用可 / 2駅利用可
- 収納
- シューズボックス1ヵ所 / クローゼット1ヵ所
- 放送・通信
-
インターネット接続(月額利用料無料)
/
※CATV
/
マルチメディアコンセント
※インターネット接続環境、BS受信可、CATV、CS受信可について…利用料金は、共益費に含まれるタイプや個別に契約するタイプなど物件により異なります。詳しくは、物件お取り扱い不動産会社にお問合せください。
- その他設備・サービス
- 給湯 / 室内洗濯機置場 / 通風良好 / フローリング / 都市ガス / バルコニー / エレベーター1基 / 2面採光 / 公営上水道 / エアコン1台 / 24時間換気システム
- 建物タイプ・デザイン
- 分譲賃貸
- 駐輪・駐車
- 自転車置き場 / バイク置場
- 家賃保証会社など
- 保証会社必加入(その他:実費)※初回50% 月額800円
- 保険
- 損害保険加入要。
- 備考
- ★インターネット上の物件はほぼ全てご紹介可能★京成本線・京成押上線快速特急停車駅の好立地♪【タウンハウジング青砥店】にてご対応★現地待ち合わせ、オンライン内見、オンライン申し込みも対応可能★
- その他諸費用
- その他費用(鍵交換:33000円) / その他費用(安心サポート:16500円) / その他費用(契約事務手数料:11000円) / その他費用(抗菌消臭:16500円) / その他費用(24時間サポート費用:1000円)
- 契約期間
- 一般契約:2年0ヶ月間
- 更新料
- 1.5ヶ月
- 取引形態
- 一般媒介
- 物件管理コード
- C01009436-000001360094916-0001
- 情報更新日
- 2025/12/02
- 次回更新予定日
- 2025/12/16
この物件に無料でお問合せ お問合せ内容を選択してね!
-
電話でお問合せ
03-5680-7677 -
株式会社タウンハウジング東京
綾瀬店
-
電話でお問合せ
03-5680-7677
物件についてお問合せ AZESTお花茶屋V 3階/東京都葛飾区白鳥4丁目
【掲載物件情報について】
Woman.CHINTAIでは安心してお部屋探しのできるサイトを目指して、物件情報の精度向上に努めております。Woman.CHINTAIに掲載されている物件情報について万が一相違がございましたら、以下のページからご連絡ください
お問い合わせページ同じ建物の空室情報一覧 AZESTお花茶屋V 3階/東京都葛飾区白鳥4丁目
取扱い店舗 AZESTお花茶屋V 3階/東京都葛飾区白鳥4丁目
-
株式会社タウンハウジング東京 綾瀬店
お問合せ番号:R01360-094916
国土交通大臣免許(1)第009926号- 東京都葛飾区小菅4丁目 11-1 ライオンズ綾瀬ステーションレジデンス1階
- 千代田線 /綾瀬駅
選択した物件をまとめて
建物ごとに探す
AZESTお花茶屋V 3階と同じ最寄り駅にある物件
AZESTお花茶屋V 3階と同じエリアにある物件
設備・条件から葛飾区の物件を再検索
設備・条件からお花茶屋駅の物件を再検索
設備・条件から青砥駅の物件を再検索
設備・条件から京成立石駅の物件を再検索






















一人暮らしの女性に嬉しいポイントはこちら!